Your email has been sent.
Park Highlights
- Five modern buildings in one convenient location.
- Candid Office Complex is a great midway point between Hartford and Stamford, as well as Boston and NYC.
- Located on Route 5 with direct access to I-91 (Exits 11 and 12) and Route 15/Merritt Parkway.
- Features include on-site management, 24/7 building access, and conference rooms for tenant-use.
- Walking distance to shopping, dining, banking, and other retail conveniences amenities.
- All standard health and safety features, including UVC bulbs and MERV-14 filters within HVAC Systems.
Park Facts
| Total Space Available | 34,451 SF | Park Type | Office Park |
| Min. Divisible | 835 SF | Features | Property Manager on Site |
| Total Space Available | 34,451 SF |
| Min. Divisible | 835 SF |
| Park Type | Office Park |
| Features | Property Manager on Site |
All Available Spaces(7)
Display Rental Rate as
- Space
- Size
- Term
- Rental Rate
- Space Use
- Build-Out
- Available
Although below grade, this space still offers excellent natural like with glass exterior and sunken garden view
- Fully Built-Out as Standard Office
- Fits 6 - 18 People
- 1 Conference Room
- Central Air Conditioning
- Mostly Open Floor Plan Layout
- 4 Private Offices
- Space is in Excellent Condition
Large conference room with two small offices attached.
- Rate includes utilities, building services and property expenses
- Mostly Open Floor Plan Layout
- 2 Private Offices
- Fully Built-Out as Standard Office
- Fits 3 - 7 People
- Space is in Excellent Condition
- Rate includes utilities, building services and property expenses
- Mostly Open Floor Plan Layout
- 5 Private Offices
- Fully Built-Out as Standard Office
- Fits 10 - 31 People
- Rate includes utilities, building services and property expenses
- Mostly Open Floor Plan Layout
- 10 Private Offices
- Fully Built-Out as Standard Office
- Fits 39 - 124 People
- 1 Conference Room
| Space | Size | Term | Rental Rate | Space Use | Build-Out | Available |
| Lower Level | 2,174 SF | Negotiable | Upon Request Upon Request Upon Request Upon Request | Office | Full Build-Out | Now |
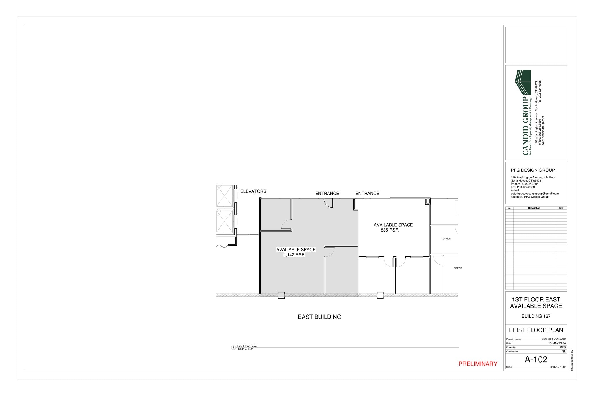
| 1st Floor, Ste East Building | 835 SF | Negotiable | $36.98 CAD/SF/YR $3.08 CAD/SF/MO $30,880 CAD/YR $2,573 CAD/MO | Office | Full Build-Out | Now |
| 1st Floor, Ste West Building | 3,800 SF | 5 Years | $34.24 CAD/SF/YR $2.85 CAD/SF/MO $130,122 CAD/YR $10,844 CAD/MO | Office | Full Build-Out | Now |
| 4th Floor | 15,402 SF | 5 Years | $34.24 CAD/SF/YR $2.85 CAD/SF/MO $527,407 CAD/YR $43,951 CAD/MO | Office | Full Build-Out | Now |
127 Washington Ave - Lower Level
127 Washington Ave - 1st Floor - Ste East Building
127 Washington Ave - 1st Floor - Ste West Building
127 Washington Ave - 4th Floor
- Space
- Size
- Term
- Rental Rate
- Space Use
- Build-Out
- Available
Space can be built out for tenant.
- Rate includes utilities, building services and property expenses
- Mostly Open Floor Plan Layout
- 2 Private Offices
- Reception Area
- Fully Built-Out as Standard Office
- Fits 8 - 48 People
- 1 Conference Room
- Fully Built-Out as Standard Office
- Fits 10 - 32 People
- Mostly Open Floor Plan Layout
- Rate includes utilities, building services and property expenses
- Mostly Open Floor Plan Layout
- Fully Built-Out as Standard Office
- Fits 6 - 18 People
| Space | Size | Term | Rental Rate | Space Use | Build-Out | Available |
| 1st Floor | 3,000-6,000 SF | 5 Years | $35.61 CAD/SF/YR $2.97 CAD/SF/MO $213,675 CAD/YR $17,806 CAD/MO | Office | Full Build-Out | Now |
| 1st Floor | 4,000 SF | Negotiable | Upon Request Upon Request Upon Request Upon Request | Office | Full Build-Out | Now |
| 2nd Floor | 2,240 SF | Negotiable | $32.87 CAD/SF/YR $2.74 CAD/SF/MO $73,636 CAD/YR $6,136 CAD/MO | Office | Full Build-Out | Now |
116 Washington Ave - 1st Floor
116 Washington Ave - 1st Floor
116 Washington Ave - 2nd Floor
127 Washington Ave - Lower Level
| Size | 2,174 SF |
| Term | Negotiable |
| Rental Rate | Upon Request |
| Space Use | Office |
| Build-Out | Full Build-Out |
| Available | Now |
Although below grade, this space still offers excellent natural like with glass exterior and sunken garden view
- Fully Built-Out as Standard Office
- Mostly Open Floor Plan Layout
- Fits 6 - 18 People
- 4 Private Offices
- 1 Conference Room
- Space is in Excellent Condition
- Central Air Conditioning
127 Washington Ave - 1st Floor - Ste East Building
| Size | 835 SF |
| Term | Negotiable |
| Rental Rate | $36.98 CAD/SF/YR |
| Space Use | Office |
| Build-Out | Full Build-Out |
| Available | Now |
Large conference room with two small offices attached.
- Rate includes utilities, building services and property expenses
- Fully Built-Out as Standard Office
- Mostly Open Floor Plan Layout
- Fits 3 - 7 People
- 2 Private Offices
- Space is in Excellent Condition
127 Washington Ave - 1st Floor - Ste West Building
| Size | 3,800 SF |
| Term | 5 Years |
| Rental Rate | $34.24 CAD/SF/YR |
| Space Use | Office |
| Build-Out | Full Build-Out |
| Available | Now |
- Rate includes utilities, building services and property expenses
- Fully Built-Out as Standard Office
- Mostly Open Floor Plan Layout
- Fits 10 - 31 People
- 5 Private Offices
127 Washington Ave - 4th Floor
| Size | 15,402 SF |
| Term | 5 Years |
| Rental Rate | $34.24 CAD/SF/YR |
| Space Use | Office |
| Build-Out | Full Build-Out |
| Available | Now |
- Rate includes utilities, building services and property expenses
- Fully Built-Out as Standard Office
- Mostly Open Floor Plan Layout
- Fits 39 - 124 People
- 10 Private Offices
- 1 Conference Room
116 Washington Ave - 1st Floor
| Size | 3,000-6,000 SF |
| Term | 5 Years |
| Rental Rate | $35.61 CAD/SF/YR |
| Space Use | Office |
| Build-Out | Full Build-Out |
| Available | Now |
Space can be built out for tenant.
- Rate includes utilities, building services and property expenses
- Fully Built-Out as Standard Office
- Mostly Open Floor Plan Layout
- Fits 8 - 48 People
- 2 Private Offices
- 1 Conference Room
- Reception Area
116 Washington Ave - 1st Floor
| Size | 4,000 SF |
| Term | Negotiable |
| Rental Rate | Upon Request |
| Space Use | Office |
| Build-Out | Full Build-Out |
| Available | Now |
- Fully Built-Out as Standard Office
- Mostly Open Floor Plan Layout
- Fits 10 - 32 People
116 Washington Ave - 2nd Floor
| Size | 2,240 SF |
| Term | Negotiable |
| Rental Rate | $32.87 CAD/SF/YR |
| Space Use | Office |
| Build-Out | Full Build-Out |
| Available | Now |
- Rate includes utilities, building services and property expenses
- Fully Built-Out as Standard Office
- Mostly Open Floor Plan Layout
- Fits 6 - 18 People
Park Overview
Candid Office Complex has five (5) modern buildings in one convenient location with the flexibility and room for your company’s growth. North Haven is only 10 minutes from New Haven and is a great midway point between Hartford and Stamford. Candid Office Complex is close to shopping, dining, banking, and public transportation. Building services include on-site management, on-site maintenance, 24/7 access control, and conference rooms. Additionally, each building is equipped with UVC bulbs and Merv-14 filters to provide high-quality health benefits and comfort.
- Property Manager on Site
Presented by
Candid Office Complex | North Haven, CT 06473
Hmm, there seems to have been an error sending your message. Please try again.
Thanks! Your message was sent.










