Log In/Sign Up
Your email has been sent.
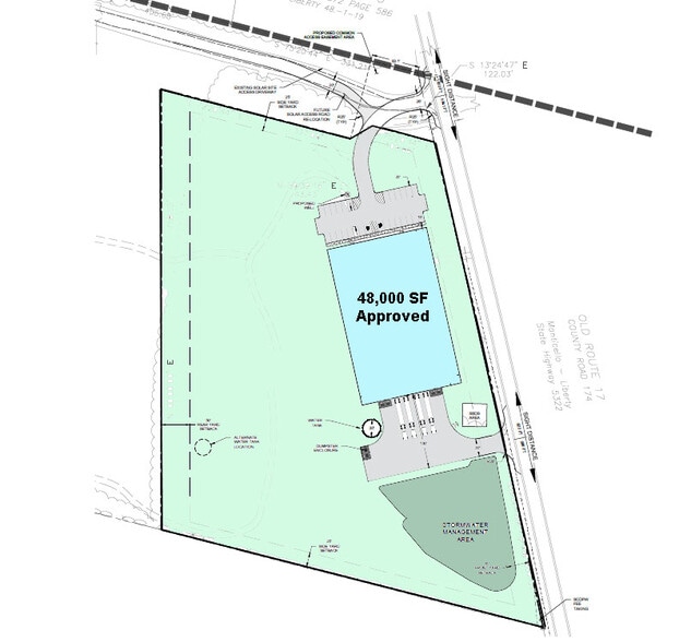
Investment Highlights
- Conditional approval in place
- 10 acre site
- Designed for 48,000 sqft warehouse
Executive Summary
This newly formed (via subdivision) 10 acre parcel has conditional final approval for a 48,000 sqft industrial building. Plans provide for 4 loading docks and abundant 28 car parking lot. Well and septic design has been completed along with design for a water storage tank to provide sprinklers for the building to be constructed. 35' building height. Possible build to suit. The building design easily provides for 2 divisible spaces of 24,000 sqft. each.
Property Facts
| Price | $1,643,652 CAD | Property Subtype | Commercial |
| Sale Type | Investment or Owner User | Proposed Use | Warehouse |
| No. Lots | 1 | Total Lot Size | 10.00 AC |
| Property Type | Land | ||
| Zoning | CI | ||
| Price | $1,643,652 CAD |
| Sale Type | Investment or Owner User |
| No. Lots | 1 |
| Property Type | Land |
| Property Subtype | Commercial |
| Proposed Use | Warehouse |
| Total Lot Size | 10.00 AC |
| Zoning | CI |
1 Lot Available
Lot
| Price | $1,643,652 CAD | Lot Size | 10.00 AC |
| Price Per AC | $164,365.20 CAD |
| Price | $1,643,652 CAD |
| Price Per AC | $164,365.20 CAD |
| Lot Size | 10.00 AC |
This newly formed (via subdivision) 10 acre parcel has conditional final approval for a 48,000 sqft industrial building.
1 1
Not walkable
10/100
Exceptionally drivable
100/100
Somewhat bikeable
30/100
Property Taxes
| Parcel Number | 4689-001-0-0001-003-000 | Improvements Assessment | $0 CAD |
| Land Assessment | $63,039 CAD | Total Assessment | $63,039 CAD |
Property Taxes
Parcel Number
4689-001-0-0001-003-000
Land Assessment
$63,039 CAD
Improvements Assessment
$0 CAD
Total Assessment
$63,039 CAD
1 of 20
Videos
Matterport 3D Exterior
Matterport 3D Tour
Photos
Street View
Street
Map
1 of 1
Presented by
1283 Old Route 17
Already a member? Log In
Hmm, there seems to have been an error sending your message. Please try again.
Thanks! Your message was sent.



