Your email has been sent.
13 Bis Boulevard Haussmann 6,674 SF of Office Space Available in 75009 Paris



Some information has been automatically translated.
Highlights
- Site clos avec accès poids lourds, parking privatif et espace extérieur dédié
- Très bonne accessibilité via axes routiers majeurs et transports en commun
- Bâtiment opérationnel : 6 m HSP, 3T/m², climatisation, bureaux équipés
All Available Space(1)
Display Rental Rate as
- Space
- Size
- Term
-
Rental Rate
- Space Use
- Build-Out
- Available
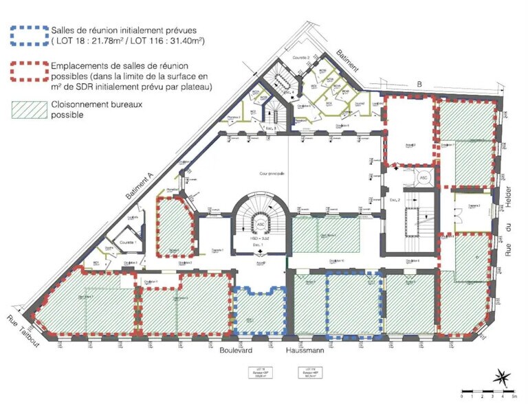
Cet espace de 619 m² offre un plateau de bureaux entièrement rénové, bénéficiant de prestations haut de gamme et d’une conception permettant d’accueillir environ 70 postes de travail dans un cadre élégant et fonctionnel. Les aménagements intérieurs incluent un parquet en point de Hongrie, des faux plafonds acoustiques, une très belle hauteur sous plafond supérieure à 3 mètres et un balcon filant apportant lumière naturelle et caractère à l’ensemble. Le plateau se prête aisément à différents modes d’organisation grâce à la possibilité de combiner open spaces, bureaux de direction et salles de réunion. Les performances techniques sont assurées par une climatisation moderne ainsi que par le raccordement aux réseaux CPCU et Fraîcheur de Paris, garantissant un confort thermique optimal en toute saison. L’immeuble de standing, certifié HQE Très Performant, offre également des services complémentaires tels qu’un local vélo, plusieurs caves, des emplacements de parking ainsi que des parties communes prestigieuses. L’ensemble constitue une opportunité rare pour une entreprise souhaitant s’implanter dans un cadre de travail d’exception.
- Agency Fee: 15.00% of annual rent
- Security Deposit: 3 months of rent
- Mostly Open Floor Plan Layout
- Space is in Excellent Condition
- Elevator Access
- High Ceilings
- Natural Light
- Common Parts WC Facilities
- Hardwood Floors
- Environ 70 postes, adaptable ope space
-
Rental Charges: $11.60 CAD/SF/YR $0.97 CAD/SF/MO $77,424 CAD/YR $6,452 CAD/MO
- Fully Built-Out as Standard Office
- Partitioned Offices
- Central Air Conditioning
- Balcony
- Drop Ceilings
- Bicycle Storage
- Open-Plan
- Parquet, plafond acoustique, hauteur +3 m
- Climatisation moderne, CPCU, Immeuble HQE
| Space | Size | Term | Rental Rate | Space Use | Build-Out | Available |
| 3rd Floor | 6,674 SF | 3/6/9 | $135.60 CAD/SF/YR HT-HC $11.30 CAD/SF/MO HT-HC $904,960 CAD/YR HT-HC $75,413 CAD/MO HT-HC | Office | Full Build-Out | 2026-07-01 |
3rd Floor
| Size |
| 6,674 SF |
| Term |
| 3/6/9 |
|
Rental Rate
|
| $135.60 CAD/SF/YR HT-HC $11.30 CAD/SF/MO HT-HC $904,960 CAD/YR HT-HC $75,413 CAD/MO HT-HC |
| Space Use |
| Office |
| Build-Out |
| Full Build-Out |
| Available |
| 2026-07-01 |
3rd Floor
| Size | 6,674 SF |
| Term | 3/6/9 |
|
Rental Rate
|
$135.60 CAD/SF/YR HT-HC |
| Space Use | Office |
| Build-Out | Full Build-Out |
| Available | 2026-07-01 |
Cet espace de 619 m² offre un plateau de bureaux entièrement rénové, bénéficiant de prestations haut de gamme et d’une conception permettant d’accueillir environ 70 postes de travail dans un cadre élégant et fonctionnel. Les aménagements intérieurs incluent un parquet en point de Hongrie, des faux plafonds acoustiques, une très belle hauteur sous plafond supérieure à 3 mètres et un balcon filant apportant lumière naturelle et caractère à l’ensemble. Le plateau se prête aisément à différents modes d’organisation grâce à la possibilité de combiner open spaces, bureaux de direction et salles de réunion. Les performances techniques sont assurées par une climatisation moderne ainsi que par le raccordement aux réseaux CPCU et Fraîcheur de Paris, garantissant un confort thermique optimal en toute saison. L’immeuble de standing, certifié HQE Très Performant, offre également des services complémentaires tels qu’un local vélo, plusieurs caves, des emplacements de parking ainsi que des parties communes prestigieuses. L’ensemble constitue une opportunité rare pour une entreprise souhaitant s’implanter dans un cadre de travail d’exception.
- Agency Fee: 15.00% of annual rent
-
Rental Charges: $11.60 CAD/SF/YR $0.97 CAD/SF/MO $77,424 CAD/YR $6,452 CAD/MO
- Security Deposit: 3 months of rent
- Fully Built-Out as Standard Office
- Mostly Open Floor Plan Layout
- Partitioned Offices
- Space is in Excellent Condition
- Central Air Conditioning
- Elevator Access
- Balcony
- High Ceilings
- Drop Ceilings
- Natural Light
- Bicycle Storage
- Common Parts WC Facilities
- Open-Plan
- Hardwood Floors
- Parquet, plafond acoustique, hauteur +3 m
- Environ 70 postes, adaptable ope space
- Climatisation moderne, CPCU, Immeuble HQE
Property Overview
Savills is offering two office floors for rent, measuring 619 m² and 658 m², located on the prestigious Boulevard Haussmann in the 9th arrondissement of Paris, just steps away from the Opéra. The building, certified HQE (High Environmental Quality) "Very High Performance," features modern air conditioning and is connected to the CPCU and Fraîcheur de Paris networks, ensuring comfort and energy efficiency year-round. These spaces, fully renovated by the owner, boast premium finishes: Hungarian point parquet flooring, acoustic drop ceilings, and impressive ceiling heights. They also feature a continuous balcony overlooking Boulevard Haussmann, bringing natural light and prestige to your office environment. Each floor is designed to accommodate approximately 70 workstations and offers flexible layouts, including open spaces, executive offices, and meeting rooms. Availability: July 2026 Commercial lease: 6-9 years
- Courtyard
- Skylights
- Balcony
Property Facts
Presented by
13 Bis Boulevard Haussmann
Hmm, there seems to have been an error sending your message. Please try again.
Thanks! Your message was sent.



