Your email has been sent.
13 Railroad St 975 SF of Flex Space Available in Hood River, OR 97031



All Available Space(1)
Display Rental Rate as
- Space
- Size
- Term
- Rental Rate
- Space Use
- Build-Out
- Available
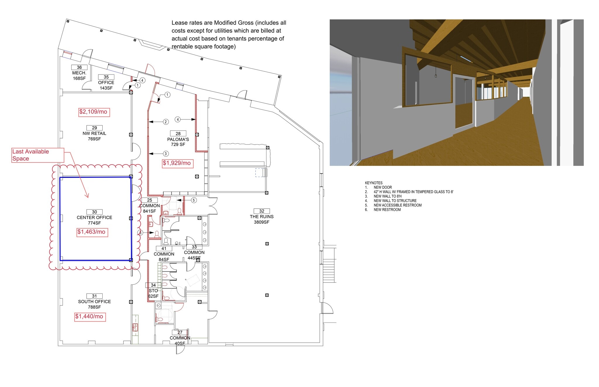
Studio/Flex Space | Available Immediately **Size: 975 SF rentable (774 SF usable + pro rata share of common areas) Asking Rent: $18.00/SF/Year (Modified Gross) | $1,463/month CAM: $0.00/SF/Year Use Type: Flex Lease Term: Negotiable Build-Out: Full build-out in place Zoning: Confirm permitted uses with Hood River zoning code — flexible commercial zoning supports a variety of uses Building Details: Originally constructed early 1900s; fully remodeled 2018 Newer roof with upgraded insulation Upgraded HVAC, plumbing, and electrical systems Amenities: Central heating, exposed ceiling, high ceilings, plug & play, Wi-Fi, after-hours HVAC, emergency lighting, DDA compliant, demised WC facilities Parking: Adjacent paid public parking lot Location: East end of downtown Hood River. Walking distance to downtown retail, dining, and services. Easy access to I-84 and Hwy. 35. Notable: Space is located immediately adjacent to an established concert and event venue, providing consistent foot traffic and visibility. Current tenant mix includes visual artists and creative professionals. Please contact owner for more details and to arrange a tour.
- Listed rate may not include certain utilities, building services and property expenses
- Wi-Fi Connectivity
- Plug & Play
- Private Restrooms
- After Hours HVAC Available
- Established creative tenant community
- Central Heating System
- Emergency Lighting
- DDA Compliant
- High Ceilings
- Exposed Ceiling
| Space | Size | Term | Rental Rate | Space Use | Build-Out | Available |
| 1st Floor - 30 | 975 SF | Negotiable | $24.56 CAD/SF/YR $2.05 CAD/SF/MO $23,942 CAD/YR $1,995 CAD/MO | Flex | Full Build-Out | Now |
1st Floor - 30
| Size |
| 975 SF |
| Term |
| Negotiable |
| Rental Rate |
| $24.56 CAD/SF/YR $2.05 CAD/SF/MO $23,942 CAD/YR $1,995 CAD/MO |
| Space Use |
| Flex |
| Build-Out |
| Full Build-Out |
| Available |
| Now |
1st Floor - 30
| Size | 975 SF |
| Term | Negotiable |
| Rental Rate | $24.56 CAD/SF/YR |
| Space Use | Flex |
| Build-Out | Full Build-Out |
| Available | Now |
Studio/Flex Space | Available Immediately **Size: 975 SF rentable (774 SF usable + pro rata share of common areas) Asking Rent: $18.00/SF/Year (Modified Gross) | $1,463/month CAM: $0.00/SF/Year Use Type: Flex Lease Term: Negotiable Build-Out: Full build-out in place Zoning: Confirm permitted uses with Hood River zoning code — flexible commercial zoning supports a variety of uses Building Details: Originally constructed early 1900s; fully remodeled 2018 Newer roof with upgraded insulation Upgraded HVAC, plumbing, and electrical systems Amenities: Central heating, exposed ceiling, high ceilings, plug & play, Wi-Fi, after-hours HVAC, emergency lighting, DDA compliant, demised WC facilities Parking: Adjacent paid public parking lot Location: East end of downtown Hood River. Walking distance to downtown retail, dining, and services. Easy access to I-84 and Hwy. 35. Notable: Space is located immediately adjacent to an established concert and event venue, providing consistent foot traffic and visibility. Current tenant mix includes visual artists and creative professionals. Please contact owner for more details and to arrange a tour.
- Listed rate may not include certain utilities, building services and property expenses
- Central Heating System
- Wi-Fi Connectivity
- Emergency Lighting
- Plug & Play
- DDA Compliant
- Private Restrooms
- High Ceilings
- After Hours HVAC Available
- Exposed Ceiling
- Established creative tenant community
Property Facts
| Total Space Available | 975 SF | Building Size | 13,000 SF |
| Property Type | Specialty | Year Built/Renovated | 1915/2008 |
| Property Subtype | Winery/Vineyard |
| Total Space Available | 975 SF |
| Property Type | Specialty |
| Property Subtype | Winery/Vineyard |
| Building Size | 13,000 SF |
| Year Built/Renovated | 1915/2008 |
Presented by
13 Railroad St
Hmm, there seems to have been an error sending your message. Please try again.
Thanks! Your message was sent.


