Your email has been sent.
Highlights
- Property is situated off Ygnacio Valley Road in the heart of Walnut Creek
- Suite 207-208: ±900 SF - ±1,958 SF
- Very affluent region with good demographics
- Adjacent to John Muir Hospital and close proximity to blood draw clinics and imaging centers
- Walking distance to many retail amenities
- Call listing brokers for more information
All Available Spaces(2)
Display Rental Rate as
- Space
- Size
- Term
- Rental Rate
- Space Use
- Condition
- Available
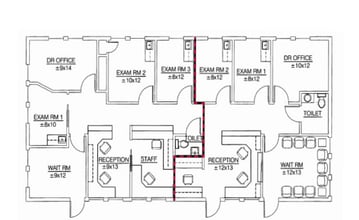
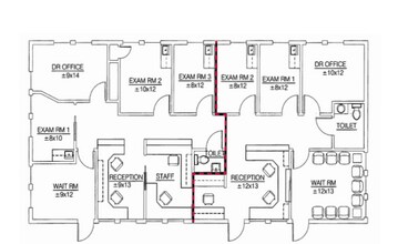
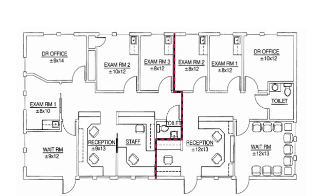
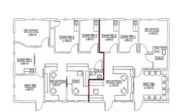
Suite 207 is part of the flexible medical office offering at 130 La Casa Via and can be configured as a standalone suite with approximately 900 square feet. This space is ideal for a smaller medical practice or specialty clinic seeking an efficient layout. The suite can include a combination of 5 exam rooms, 3 doctor’s office, 2 waiting/reception areas, and multiple private restrooms. Its design supports streamlined patient flow and provides privacy for both staff and visitors. The proximity to John Muir Hospital and nearby medical amenities makes Suite 207 a convenient choice for healthcare providers looking to serve the Walnut Creek community.
- Lease rate does not include utilities, property expenses or building services
- Fits 3 - 8 People
- Reception Area
- Can be combined with suite 208 for 1,958 SF
- Office intensive layout
- Can be combined with additional space(s) for up to 1,958 SF of adjacent space
- Private Restrooms
- Call listing brokers for more information
Suite 208 can be leased individually or combined with Suite 207 for a larger footprint, offering up to 1,958 square feet. As a standalone suite, Suite 208 is well-suited for a mid-sized medical practice requiring multiple exam rooms and offices. The space features a thoughtfully designed floor plan with dedicated areas for patient care, administrative work, and staff collaboration. When combined with suite 207 there are a total of 5 exam rooms, 3 doctor’s office, 2 waiting/reception areas, and multiple private restrooms. Its design supports streamlined patient flow and provides privacy for both staff and visitors. The proximity to John Muir Hospital and nearby medical amenities makes Suite 207 a convenient choice for healthcare providers looking to serve the Walnut Creek community.
- Lease rate does not include utilities, property expenses or building services
- Fits 3 - 9 People
- Reception Area
- Can be combined with suite 207 for 1,958 SF
- Office intensive layout
- Can be combined with additional space(s) for up to 1,958 SF of adjacent space
- Private Restrooms
- Call listing brokers for more information
| Space | Size | Term | Rental Rate | Space Use | Condition | Available |
| 2nd Floor, Ste 207 | 900 SF | Negotiable | $37.28 CAD/SF/YR $3.11 CAD/SF/MO $33,551 CAD/YR $2,796 CAD/MO | Office | Full Build-Out | Now |
| 2nd Floor, Ste 208 | 1,058 SF | Negotiable | $37.28 CAD/SF/YR $3.11 CAD/SF/MO $39,441 CAD/YR $3,287 CAD/MO | Office | Full Build-Out | Now |
2nd Floor, Ste 207
| Size |
| 900 SF |
| Term |
| Negotiable |
| Rental Rate |
| $37.28 CAD/SF/YR $3.11 CAD/SF/MO $33,551 CAD/YR $2,796 CAD/MO |
| Space Use |
| Office |
| Condition |
| Full Build-Out |
| Available |
| Now |
2nd Floor, Ste 208
| Size |
| 1,058 SF |
| Term |
| Negotiable |
| Rental Rate |
| $37.28 CAD/SF/YR $3.11 CAD/SF/MO $39,441 CAD/YR $3,287 CAD/MO |
| Space Use |
| Office |
| Condition |
| Full Build-Out |
| Available |
| Now |
2nd Floor, Ste 207
| Size | 900 SF |
| Term | Negotiable |
| Rental Rate | $37.28 CAD/SF/YR |
| Space Use | Office |
| Condition | Full Build-Out |
| Available | Now |
Suite 207 is part of the flexible medical office offering at 130 La Casa Via and can be configured as a standalone suite with approximately 900 square feet. This space is ideal for a smaller medical practice or specialty clinic seeking an efficient layout. The suite can include a combination of 5 exam rooms, 3 doctor’s office, 2 waiting/reception areas, and multiple private restrooms. Its design supports streamlined patient flow and provides privacy for both staff and visitors. The proximity to John Muir Hospital and nearby medical amenities makes Suite 207 a convenient choice for healthcare providers looking to serve the Walnut Creek community.
- Lease rate does not include utilities, property expenses or building services
- Office intensive layout
- Fits 3 - 8 People
- Can be combined with additional space(s) for up to 1,958 SF of adjacent space
- Reception Area
- Private Restrooms
- Can be combined with suite 208 for 1,958 SF
- Call listing brokers for more information
2nd Floor, Ste 208
| Size | 1,058 SF |
| Term | Negotiable |
| Rental Rate | $37.28 CAD/SF/YR |
| Space Use | Office |
| Condition | Full Build-Out |
| Available | Now |
Suite 208 can be leased individually or combined with Suite 207 for a larger footprint, offering up to 1,958 square feet. As a standalone suite, Suite 208 is well-suited for a mid-sized medical practice requiring multiple exam rooms and offices. The space features a thoughtfully designed floor plan with dedicated areas for patient care, administrative work, and staff collaboration. When combined with suite 207 there are a total of 5 exam rooms, 3 doctor’s office, 2 waiting/reception areas, and multiple private restrooms. Its design supports streamlined patient flow and provides privacy for both staff and visitors. The proximity to John Muir Hospital and nearby medical amenities makes Suite 207 a convenient choice for healthcare providers looking to serve the Walnut Creek community.
- Lease rate does not include utilities, property expenses or building services
- Office intensive layout
- Fits 3 - 9 People
- Can be combined with additional space(s) for up to 1,958 SF of adjacent space
- Reception Area
- Private Restrooms
- Can be combined with suite 207 for 1,958 SF
- Call listing brokers for more information
Property Overview
130 La Casa Via offers 900 to 1,958 square feet of medical office space for lease in the heart of Walnut Creek, CA. Located adjacent to John Muir Hospital, this property provides an ideal setting for medical professionals seeking proximity to major healthcare facilities, blood draw clinics, and imaging centers. The building is nestled in an affluent region with strong demographics and is within walking distance to a variety of retail amenities. The property features a modern, two-story design surrounded by mature trees, creating a welcoming and professional environment for both staff and patients. With a competitive lease rate of $2.25 per square foot plus NNN (only $0.65/SF/month), this space is well-suited for medical practices looking to establish or expand their presence in a thriving community.
- 24 Hour Access
- Courtyard
- Signage
- Kitchen
- Central Heating
- Natural Light
- Partitioned Offices
- Reception
- Drop Ceiling
- Wi-Fi
- Hardwood Floors
- Air Conditioning
- Balcony
Property Facts
Select Tenants
- Floor
- Tenant Name
- Industry
- 1st
- Balanced Pain Management: Leslie Delaney, Md
- Health Care and Social Assistance
- 2nd
- Fred Nachtwey MD
- Health Care and Social Assistance
- 1st
- Gerald Tarder MD
- Health Care and Social Assistance
- 2nd
- Joseph A. Mele III
- Health Care and Social Assistance
- 1st
- Metro Infusion Center
- Health Care and Social Assistance
- 2nd
- Respiratory Medical Group Inc
- Health Care and Social Assistance
Presented by
130 La Casa Via
Hmm, there seems to have been an error sending your message. Please try again.
Thanks! Your message was sent.







