Your email has been sent.
Highlights
- Fully Renovated Two-Level Commercial Space with Historic Character
- Historically accurate brand new tin ceilings.
- Rare opportunity to lease a two-level commercial space
- The space is offered at $2.00 per square foot per month, with an owner build-out allowance available for tenants committing to a minimum 3 year lease
All Available Spaces(2)
Display Rental Rate as
- Space
- Size
- Term
- Rental Rate
- Space Use
- Build-Out
- Available
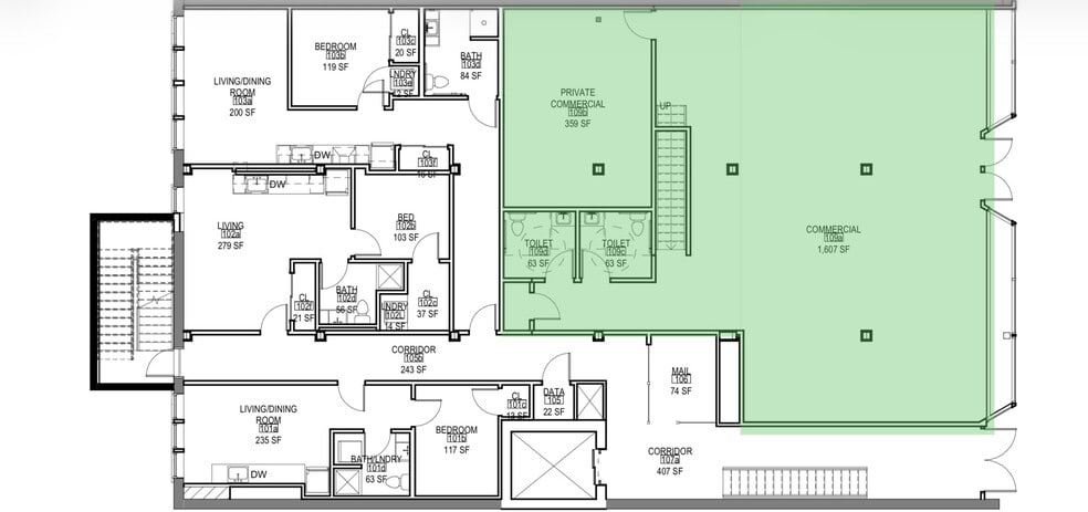
Fully Renovated Two-Level Commercial Space with Historic Character Rare opportunity to lease a two-level commercial space totaling approximately 3,200 SF, thoughtfully restored and fully modernized while preserving its historic integrity. The first floor offers 2,200 SF with striking 14-foot ceilings and expansive floor-to-ceiling windows, providing exceptional natural light and a strong street presence. The garden level adds an additional 1,000 SF, enhanced by shared light windows, making it ideal for seating, office space, studio use, or support areas. This property has undergone a complete gut renovation, including brand-new HVAC, plumbing, and electrical systems, while maintaining its architectural heritage. Exterior improvements feature a restored historic white terracotta façade, a grand new entrance, and 18+ new windows. Interior details include historically accurate, brand-new tin ceilings, blending timeless design with modern construction. The space is offered at $2.00 per square foot per month, with an owner build-out allowance available for tenants committing to a minimum three-year lease, allowing customization to suit your business needs. With its flexibility, light-filled layout, and prominent presence, this space is perfect for a restaurant, coffee shop, gallery, creative studio, or professional office use. A unique opportunity to secure a character-rich, move-in-ready commercial space that combines historic charm with modern infrastructure Two floors of commercial space available. First floor space is 2,200 sf. 1000SF on garden level $2.00 a sf. per month Owner build out allowance included with a min of a 3 year lease. 14" ceilings, floor to ceiling windows Restored historic white terracotta facade. Historically accurate brand new tin ceilings. Shared light windows into garden level. Perfect for a restaurant, coffee shop, Gallery, or office space.
- Listed rate may not include certain utilities, building services and property expenses
- Can be combined with additional space(s) for up to 3,200 SF of adjacent space
- Fits 3 - 8 People
- Fully Renovated Two-Level Commercial Space
Fully Renovated Two-Level Commercial Space with Historic Character Rare opportunity to lease a two-level commercial space totaling approximately 3,200 SF, thoughtfully restored and fully modernized while preserving its historic integrity. The first floor offers 2,200 SF with striking 14-foot ceilings and expansive floor-to-ceiling windows, providing exceptional natural light and a strong street presence. The garden level adds an additional 1,000 SF, enhanced by shared light windows, making it ideal for seating, office space, studio use, or support areas. This property has undergone a complete gut renovation, including brand-new HVAC, plumbing, and electrical systems, while maintaining its architectural heritage. Exterior improvements feature a restored historic white terracotta façade, a grand new entrance, and 18+ new windows. Interior details include historically accurate, brand-new tin ceilings, blending timeless design with modern construction. The space is offered at $2.00 per square foot per month, with an owner build-out allowance available for tenants committing to a minimum three-year lease, allowing customization to suit your business needs. With its flexibility, light-filled layout, and prominent presence, this space is perfect for a restaurant, coffee shop, gallery, creative studio, or professional office use. A unique opportunity to secure a character-rich, move-in-ready commercial space that combines historic charm with modern infrastructure Two floors of commercial space available. First floor space is 2,200 sf. 1000SF on garden level $2.00 a sf. per month Owner build out allowance included with a min of a 3 year lease. 14" ceilings, floor to ceiling windows Restored historic white terracotta facade. Historically accurate brand new tin ceilings. Shared light windows into garden level. Perfect for a restaurant, coffee shop, Gallery, or office space.
- Listed rate may not include certain utilities, building services and property expenses
- Can be combined with additional space(s) for up to 3,200 SF of adjacent space
- Fits 6 - 18 People
- Fully Renovated Two-Level Commercial Space
| Space | Size | Term | Rental Rate | Space Use | Build-Out | Available |
| Basement | 1,000 SF | 3-10 Years | $32.84 CAD/SF/YR $2.74 CAD/SF/MO $32,844 CAD/YR $2,737 CAD/MO | Office/Retail | - | Now |
| 1st Floor, Ste 132 | 2,200 SF | 3-10 Years | Upon Request Upon Request Upon Request Upon Request | Office/Retail | - | Now |
Basement
| Size |
| 1,000 SF |
| Term |
| 3-10 Years |
| Rental Rate |
| $32.84 CAD/SF/YR $2.74 CAD/SF/MO $32,844 CAD/YR $2,737 CAD/MO |
| Space Use |
| Office/Retail |
| Build-Out |
| - |
| Available |
| Now |
1st Floor, Ste 132
| Size |
| 2,200 SF |
| Term |
| 3-10 Years |
| Rental Rate |
| Upon Request Upon Request Upon Request Upon Request |
| Space Use |
| Office/Retail |
| Build-Out |
| - |
| Available |
| Now |
Basement
| Size | 1,000 SF |
| Term | 3-10 Years |
| Rental Rate | $32.84 CAD/SF/YR |
| Space Use | Office/Retail |
| Build-Out | - |
| Available | Now |
Fully Renovated Two-Level Commercial Space with Historic Character Rare opportunity to lease a two-level commercial space totaling approximately 3,200 SF, thoughtfully restored and fully modernized while preserving its historic integrity. The first floor offers 2,200 SF with striking 14-foot ceilings and expansive floor-to-ceiling windows, providing exceptional natural light and a strong street presence. The garden level adds an additional 1,000 SF, enhanced by shared light windows, making it ideal for seating, office space, studio use, or support areas. This property has undergone a complete gut renovation, including brand-new HVAC, plumbing, and electrical systems, while maintaining its architectural heritage. Exterior improvements feature a restored historic white terracotta façade, a grand new entrance, and 18+ new windows. Interior details include historically accurate, brand-new tin ceilings, blending timeless design with modern construction. The space is offered at $2.00 per square foot per month, with an owner build-out allowance available for tenants committing to a minimum three-year lease, allowing customization to suit your business needs. With its flexibility, light-filled layout, and prominent presence, this space is perfect for a restaurant, coffee shop, gallery, creative studio, or professional office use. A unique opportunity to secure a character-rich, move-in-ready commercial space that combines historic charm with modern infrastructure Two floors of commercial space available. First floor space is 2,200 sf. 1000SF on garden level $2.00 a sf. per month Owner build out allowance included with a min of a 3 year lease. 14" ceilings, floor to ceiling windows Restored historic white terracotta facade. Historically accurate brand new tin ceilings. Shared light windows into garden level. Perfect for a restaurant, coffee shop, Gallery, or office space.
- Listed rate may not include certain utilities, building services and property expenses
- Fits 3 - 8 People
- Can be combined with additional space(s) for up to 3,200 SF of adjacent space
- Fully Renovated Two-Level Commercial Space
1st Floor, Ste 132
| Size | 2,200 SF |
| Term | 3-10 Years |
| Rental Rate | Upon Request |
| Space Use | Office/Retail |
| Build-Out | - |
| Available | Now |
Fully Renovated Two-Level Commercial Space with Historic Character Rare opportunity to lease a two-level commercial space totaling approximately 3,200 SF, thoughtfully restored and fully modernized while preserving its historic integrity. The first floor offers 2,200 SF with striking 14-foot ceilings and expansive floor-to-ceiling windows, providing exceptional natural light and a strong street presence. The garden level adds an additional 1,000 SF, enhanced by shared light windows, making it ideal for seating, office space, studio use, or support areas. This property has undergone a complete gut renovation, including brand-new HVAC, plumbing, and electrical systems, while maintaining its architectural heritage. Exterior improvements feature a restored historic white terracotta façade, a grand new entrance, and 18+ new windows. Interior details include historically accurate, brand-new tin ceilings, blending timeless design with modern construction. The space is offered at $2.00 per square foot per month, with an owner build-out allowance available for tenants committing to a minimum three-year lease, allowing customization to suit your business needs. With its flexibility, light-filled layout, and prominent presence, this space is perfect for a restaurant, coffee shop, gallery, creative studio, or professional office use. A unique opportunity to secure a character-rich, move-in-ready commercial space that combines historic charm with modern infrastructure Two floors of commercial space available. First floor space is 2,200 sf. 1000SF on garden level $2.00 a sf. per month Owner build out allowance included with a min of a 3 year lease. 14" ceilings, floor to ceiling windows Restored historic white terracotta facade. Historically accurate brand new tin ceilings. Shared light windows into garden level. Perfect for a restaurant, coffee shop, Gallery, or office space.
- Listed rate may not include certain utilities, building services and property expenses
- Fits 6 - 18 People
- Can be combined with additional space(s) for up to 3,200 SF of adjacent space
- Fully Renovated Two-Level Commercial Space
About the Property
Fully Renovated Two-Level Commercial Space with Historic Character Rare opportunity to lease a two-level commercial space totaling approximately 3,200 SF, thoughtfully restored and fully modernized while preserving its historic integrity. The first floor offers 2,200 SF with striking 14-foot ceilings and expansive floor-to-ceiling windows, providing exceptional natural light and a strong street presence. The garden level adds an additional 1,000 SF, enhanced by shared light windows, making it ideal for seating, office space, studio use, or support areas. This property has undergone a complete gut renovation, including brand-new HVAC, plumbing, and electrical systems, while maintaining its architectural heritage. Exterior improvements feature a restored historic white terracotta façade, a grand new entrance, and 18+ new windows. Interior details include historically accurate, brand-new tin ceilings, blending timeless design with modern construction. The space is offered at $2.00 per square foot per month, with an owner build-out allowance available for tenants committing to a minimum three-year lease, allowing customization to suit your business needs. With its flexibility, light-filled layout, and prominent presence, this space is perfect for a restaurant, coffee shop, gallery, creative studio, or professional office use. A unique opportunity to secure a character-rich, move-in-ready commercial space that combines historic charm with modern infrastructure Two floors of commercial space available. First floor space is 2,200 sf. 1000SF on garden level $2.00 a sf. per month Owner build out allowance included with a min of a 3 year lease. 14" ceilings, floor to ceiling windows Restored historic white terracotta facade. Historically accurate brand new tin ceilings. Shared light windows into garden level. Perfect for a restaurant, coffee shop, Gallery, or office space.
Property Facts
| Total Space Available | 3,200 SF | Apartment Style | Low-Rise |
| No. Units | 18 | Building Size | 16,220 SF |
| Property Type | Multifamily | Year Built | 2025 |
| Property Subtype | Apartment |
| Total Space Available | 3,200 SF |
| No. Units | 18 |
| Property Type | Multifamily |
| Property Subtype | Apartment |
| Apartment Style | Low-Rise |
| Building Size | 16,220 SF |
| Year Built | 2025 |
Presented by
130 Pearl St
Hmm, there seems to have been an error sending your message. Please try again.
Thanks! Your message was sent.



