Your email has been sent.
1300 S Dixie Hwy - Executive Offices at Seaside Lantana Coworking Space Available in Lantana, FL 33462



Highlights
- Utilities, Phone & Internet Included
- Reception, Conference Rooms, Fully Stocked Break Room/Kitchen
- Great Natural Light from all of the windows and glass doors
All Available Spaces(5)
Display Rental Rate as
- Space
- No. of People
- Size
- Rental Rate
- Space Use
Private full service Executive Offices including furnishings, phone & internet service, receptionist, copy & printing services, fully stocked kitchen and break areas, Free open parking spaces, conference room, flat screen TVs, and dedicated mailbox and address.
-
Term
-
- Space available from coworking provider
- 1 Private Office
- 1 Conference Room
- 1 Workstation
- Plug & Play
- Central Air Conditioning
- Reception Area
- Wi-Fi Connectivity
- Print/Copy Room
- Security System
- Corner Space
- High Ceilings
- Drop Ceilings
- Natural Light
- Smoke Detector
- Wheelchair Accessible
- New Construction with bright and open layout
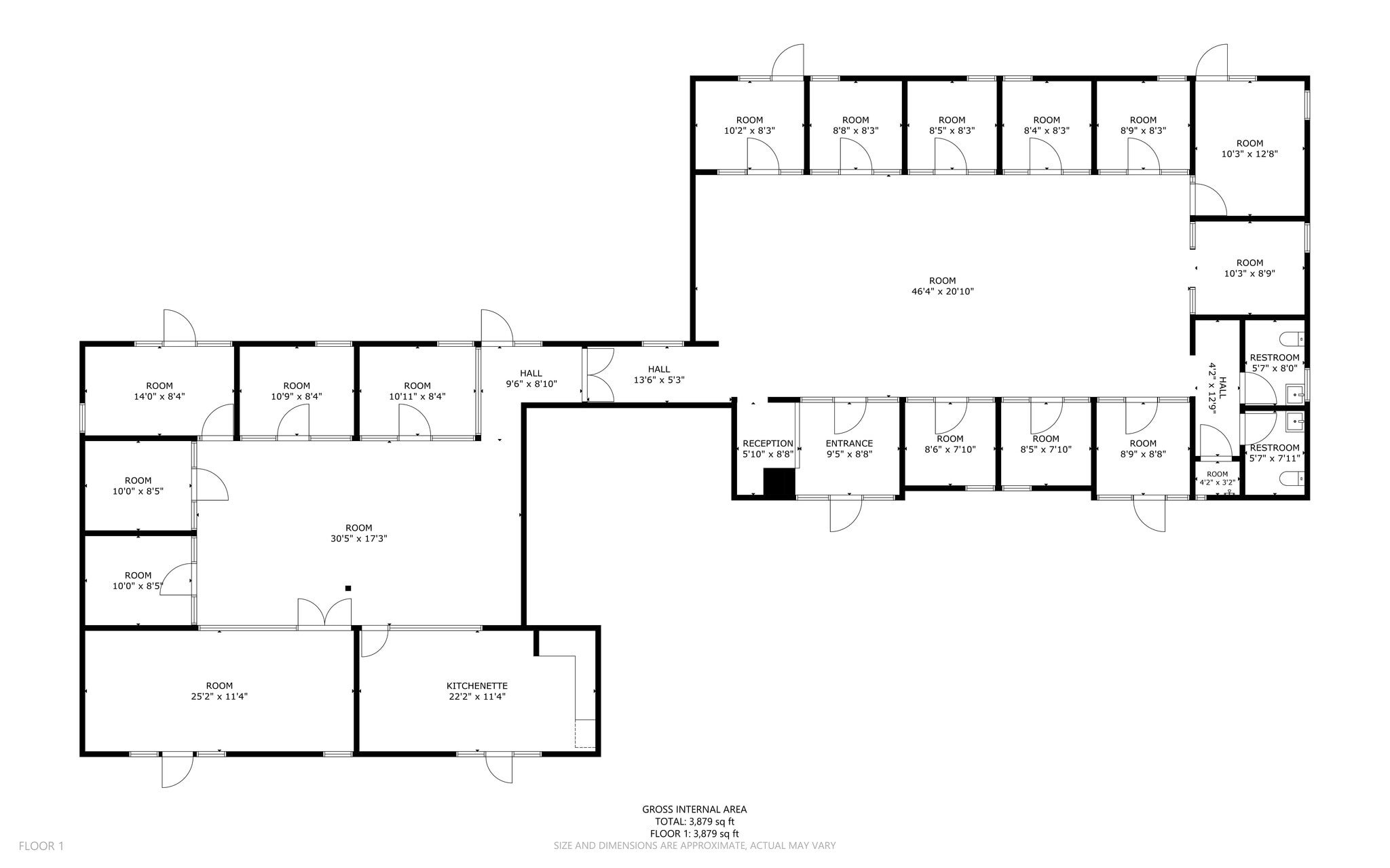
Sleek and modern executive office suites are now Pre-Leasing. Like this, Corner Office next to the conference room on the south side of the layout is #14. Feel free to schedule a walk thru tour (with Ross) and select your exact office or work station. Pricing from $350 to $1500 per month without any long term commitment. Flexible month to month structure that includes everything: Receptionist, Mailbox and dedicated address, Printing and copy services, Conference room access, Free Parking Spaces, All utilities, Phone and internet services, Fully stocked Kitchen and break areas.
-
Term
-
- Space available from coworking provider
- 1 Private Office
- 1 Conference Room
- 1 Workstation
- Plug & Play
- Central Air and Heating
- Reception Area
- Wi-Fi Connectivity
- Print/Copy Room
- Corner Space
- Drop Ceilings
- Natural Light
- After Hours HVAC Available
- Accent Lighting
- Open-Plan
- abundance of natural light
Large Corner Office with private rear entrance on Northwest Corner of the property. Located next to the copy room and close to the restrooms with largest overall sq ft for any of the partitioned executive offices. Could be a great partners office for 2 people and adding workstation #7 would be a great addition for growing companies or teams.
-
Term
-
- Space available from coworking provider
- 1 Private Office
- 1 Conference Room
- 1 Workstation
- Plug & Play
- Central Air and Heating
- Reception Area
- Wi-Fi Connectivity
- Print/Copy Room
- Security System
- Corner Space
- High Ceilings
- Drop Ceilings
- Natural Light
- After Hours HVAC Available
- Bicycle Storage
- Accent Lighting
- Open-Plan
- Wheelchair Accessible
- Private Rear Entrance and big windows.
Corner work station located closest to the Copy room and the Restrooms on the north side of the floor plan.
-
Term
-
- Space available from coworking provider
- 1 Conference Room
- 1 Workstation
- Plug & Play
- Central Air and Heating
- Reception Area
- Wi-Fi Connectivity
- Print/Copy Room
- Corner Space
- High Ceilings
- Drop Ceilings
- Natural Light
- After Hours HVAC Available
- Bicycle Storage
- Accent Lighting
- Open-Plan
- Wheelchair Accessible
- Natural light and location within the office
This Junior Associate work station is a Corner desk next to Executive Office #9 and is well suited for growing teams or an assistant level that works closely with their executive.
-
Term
-
- Space available from coworking provider
- 1 Conference Room
- 1 Workstation
- Plug & Play
- Central Air and Heating
- Reception Area
- Wi-Fi Connectivity
- Print/Copy Room
- Private Restrooms
- Security System
- Corner Space
- High Ceilings
- Natural Light
- Bicycle Storage
- Accent Lighting
- Open-Plan
- Smoke Detector
- Wheelchair Accessible
- Month to month terms to grow or contract as needed
| Space | No. of People | Size | Rental Rate | Space Use |
| 1st Floor, Ste 1 | - | 90 SF | $222.55 CAD/SF/YR $18.55 CAD/SF/MO $20,030 CAD/YR $1,669 CAD/MO | Office |
| 1st Floor, Ste 14 | - | 100 SF | $183.65 CAD/SF/YR $15.30 CAD/SF/MO $18,365 CAD/YR $1,530 CAD/MO | Office |
| 1st Floor, Ste Exec. Office #4 | - | 150 SF | $166.95 CAD/SF/YR $13.91 CAD/SF/MO $25,043 CAD/YR $2,087 CAD/MO | Office |
| 1st Floor, Ste WS #8 | - | 30 SF | $219.71 CAD/SF/YR $18.31 CAD/SF/MO $6,591 CAD/YR $549.28 CAD/MO | Office |
| 1st Floor, Ste WS 1 | - | 30 SF | $219.71 CAD/SF/YR $18.31 CAD/SF/MO $6,591 CAD/YR $549.28 CAD/MO | Office |
1st Floor, Ste 1
| No. of People |
| - |
| Size |
| 90 SF |
| Term |
| - |
| Rental Rate |
| $222.55 CAD/SF/YR $18.55 CAD/SF/MO $20,030 CAD/YR $1,669 CAD/MO |
| Space Use |
| Office |
1st Floor, Ste 14
| No. of People |
| - |
| Size |
| 100 SF |
| Term |
| - |
| Rental Rate |
| $183.65 CAD/SF/YR $15.30 CAD/SF/MO $18,365 CAD/YR $1,530 CAD/MO |
| Space Use |
| Office |
1st Floor, Ste Exec. Office #4
| No. of People |
| - |
| Size |
| 150 SF |
| Term |
| - |
| Rental Rate |
| $166.95 CAD/SF/YR $13.91 CAD/SF/MO $25,043 CAD/YR $2,087 CAD/MO |
| Space Use |
| Office |
1st Floor, Ste WS #8
| No. of People |
| - |
| Size |
| 30 SF |
| Term |
| - |
| Rental Rate |
| $219.71 CAD/SF/YR $18.31 CAD/SF/MO $6,591 CAD/YR $549.28 CAD/MO |
| Space Use |
| Office |
1st Floor, Ste WS 1
| No. of People |
| - |
| Size |
| 30 SF |
| Term |
| - |
| Rental Rate |
| $219.71 CAD/SF/YR $18.31 CAD/SF/MO $6,591 CAD/YR $549.28 CAD/MO |
| Space Use |
| Office |
1st Floor, Ste 1
| No. of People | - |
| Size | 90 SF |
| Term | - |
| Rental Rate | $1,669 CAD/MO |
| Space Use | Office |
Private full service Executive Offices including furnishings, phone & internet service, receptionist, copy & printing services, fully stocked kitchen and break areas, Free open parking spaces, conference room, flat screen TVs, and dedicated mailbox and address.
- Space available from coworking provider
- 1 Private Office
- 1 Conference Room
- 1 Workstation
- Plug & Play
- Central Air Conditioning
- Reception Area
- Wi-Fi Connectivity
- Print/Copy Room
- Security System
- Corner Space
- High Ceilings
- Drop Ceilings
- Natural Light
- Smoke Detector
- Wheelchair Accessible
- New Construction with bright and open layout
1st Floor, Ste 14
| No. of People | - |
| Size | 100 SF |
| Term | - |
| Rental Rate | $1,530 CAD/MO |
| Space Use | Office |
Sleek and modern executive office suites are now Pre-Leasing. Like this, Corner Office next to the conference room on the south side of the layout is #14. Feel free to schedule a walk thru tour (with Ross) and select your exact office or work station. Pricing from $350 to $1500 per month without any long term commitment. Flexible month to month structure that includes everything: Receptionist, Mailbox and dedicated address, Printing and copy services, Conference room access, Free Parking Spaces, All utilities, Phone and internet services, Fully stocked Kitchen and break areas.
- Space available from coworking provider
- 1 Private Office
- 1 Conference Room
- 1 Workstation
- Plug & Play
- Central Air and Heating
- Reception Area
- Wi-Fi Connectivity
- Print/Copy Room
- Corner Space
- Drop Ceilings
- Natural Light
- After Hours HVAC Available
- Accent Lighting
- Open-Plan
- abundance of natural light
1st Floor, Ste Exec. Office #4
| No. of People | - |
| Size | 150 SF |
| Term | - |
| Rental Rate | $2,087 CAD/MO |
| Space Use | Office |
Large Corner Office with private rear entrance on Northwest Corner of the property. Located next to the copy room and close to the restrooms with largest overall sq ft for any of the partitioned executive offices. Could be a great partners office for 2 people and adding workstation #7 would be a great addition for growing companies or teams.
- Space available from coworking provider
- 1 Private Office
- 1 Conference Room
- 1 Workstation
- Plug & Play
- Central Air and Heating
- Reception Area
- Wi-Fi Connectivity
- Print/Copy Room
- Security System
- Corner Space
- High Ceilings
- Drop Ceilings
- Natural Light
- After Hours HVAC Available
- Bicycle Storage
- Accent Lighting
- Open-Plan
- Wheelchair Accessible
- Private Rear Entrance and big windows.
1st Floor, Ste WS #8
| No. of People | - |
| Size | 30 SF |
| Term | - |
| Rental Rate | $549.28 CAD/MO |
| Space Use | Office |
Corner work station located closest to the Copy room and the Restrooms on the north side of the floor plan.
- Space available from coworking provider
- 1 Conference Room
- 1 Workstation
- Plug & Play
- Central Air and Heating
- Reception Area
- Wi-Fi Connectivity
- Print/Copy Room
- Corner Space
- High Ceilings
- Drop Ceilings
- Natural Light
- After Hours HVAC Available
- Bicycle Storage
- Accent Lighting
- Open-Plan
- Wheelchair Accessible
- Natural light and location within the office
1st Floor, Ste WS 1
| No. of People | - |
| Size | 30 SF |
| Term | - |
| Rental Rate | $549.28 CAD/MO |
| Space Use | Office |
This Junior Associate work station is a Corner desk next to Executive Office #9 and is well suited for growing teams or an assistant level that works closely with their executive.
- Space available from coworking provider
- 1 Conference Room
- 1 Workstation
- Plug & Play
- Central Air and Heating
- Reception Area
- Wi-Fi Connectivity
- Print/Copy Room
- Private Restrooms
- Security System
- Corner Space
- High Ceilings
- Natural Light
- Bicycle Storage
- Accent Lighting
- Open-Plan
- Smoke Detector
- Wheelchair Accessible
- Month to month terms to grow or contract as needed
About the Property
Brand new modern and sophisticated, full-service executive office spaces are now pre-leasing in Lantana FL. Come for a walk thru tour today and select a Premium Executive level, Corner office with its own private entrance and pair it with a Junior Associate work station, as you grow your team of professionals. Amazing new construction quality. First of its kind any where in the area. All the conveniences of a Regus or Nexus executive suite from the area's premiere developer (Nasdaq traded company) in their recently completed corporate headquarters.
Features and Amenities
- Courtyard
- Property Manager on Site
- Reception
Select Tenants at This Property
- Floor
- Tenant Name
- Industry
- 2nd
- JFB Construction & Development
- Construction
Presented by
Company Not Provided
1300 S Dixie Hwy - Executive Offices at Seaside Lantana
Hmm, there seems to have been an error sending your message. Please try again.
Thanks! Your message was sent.













