Log In/Sign Up
Your email has been sent.
1304 W Industrial Blvd 15,300 SF Vacant Flex Building Round Rock, TX 78681 $3,994,750 CAD ($261.09 CAD/SF)



Executive Summary
Office/Lab/Flex/Light Manufacturing Space
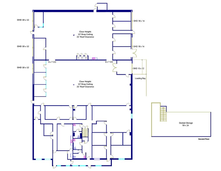
Approximately 6,000 SF Office and 9,300 SF lab space
Features:
• 1,000 amps of 120/240v
• 13' dropped ceiling with 21' clearance
• One dock high door and access to 5 grade level doors
• Small outside storage area in back
• New LED lighting throughout lab space
• 32 dedicated parking spaces, approximately 22 covered
Approximately 6,000 SF Office and 9,300 SF lab space
Features:
• 1,000 amps of 120/240v
• 13' dropped ceiling with 21' clearance
• One dock high door and access to 5 grade level doors
• Small outside storage area in back
• New LED lighting throughout lab space
• 32 dedicated parking spaces, approximately 22 covered
Property Facts
| Price | $3,994,750 CAD | Rentable Building Area | 15,300 SF |
| Price Per SF | $261.09 CAD | No. Stories | 1 |
| Sale Type | Investment or Owner User | Year Built | 1978 |
| Property Type | Flex | Parking Ratio | 1.63/1,000 SF |
| Property Subtype | Light Distribution | Clear Ceiling Height | 13’ |
| Building Class | B | No. Dock-High Doors/Loading | 1 |
| Lot Size | 0.88 AC | No. Drive In / Grade-Level Doors | 6 |
| Zoning | I - Industrial | ||
| Price | $3,994,750 CAD |
| Price Per SF | $261.09 CAD |
| Sale Type | Investment or Owner User |
| Property Type | Flex |
| Property Subtype | Light Distribution |
| Building Class | B |
| Lot Size | 0.88 AC |
| Rentable Building Area | 15,300 SF |
| No. Stories | 1 |
| Year Built | 1978 |
| Parking Ratio | 1.63/1,000 SF |
| Clear Ceiling Height | 13’ |
| No. Dock-High Doors/Loading | 1 |
| No. Drive In / Grade-Level Doors | 6 |
| Zoning | I - Industrial |
Space Availability
- Space
- Size
- Space Use
- Build-Out
- Available
- 1st Floor
- 15,300 SF
- Flex
- -
- Now
| Space | Size | Space Use | Build-Out | Available |
| 1st Floor | 15,300 SF | Flex | - | Now |
1st Floor
| Size |
| 15,300 SF |
| Space Use |
| Flex |
| Build-Out |
| - |
| Available |
| Now |
1 1
Fairly walkable
40/100
Exceptionally drivable
100/100
Fairly bikeable
40/100
Property Taxes
| Parcel Number | R071250 | Improvements Assessment | $3,025,176 CAD |
| Land Assessment | $474,286 CAD | Total Assessment | $3,499,462 CAD |
Property Taxes
Parcel Number
R071250
Land Assessment
$474,286 CAD
Improvements Assessment
$3,025,176 CAD
Total Assessment
$3,499,462 CAD
1 of 19
Videos
Matterport 3D Exterior
Matterport 3D Tour
Photos
Street View
Street
Map
1 of 1
Presented by
1304 W Industrial Blvd
Already a member? Log In
Hmm, there seems to have been an error sending your message. Please try again.
Thanks! Your message was sent.
