Log In/Sign Up
Your email has been sent.
1322 N 61st Ave
Pensacola, FL 32506
Retail Property For Sale


Investment Highlights
- Near major traffic flow areas
- Multiple bays for single or several tenants
- 3-phase electrical
Executive Summary
Freestanding Warehouse / Flex Commercial Property with Owner Financing Available
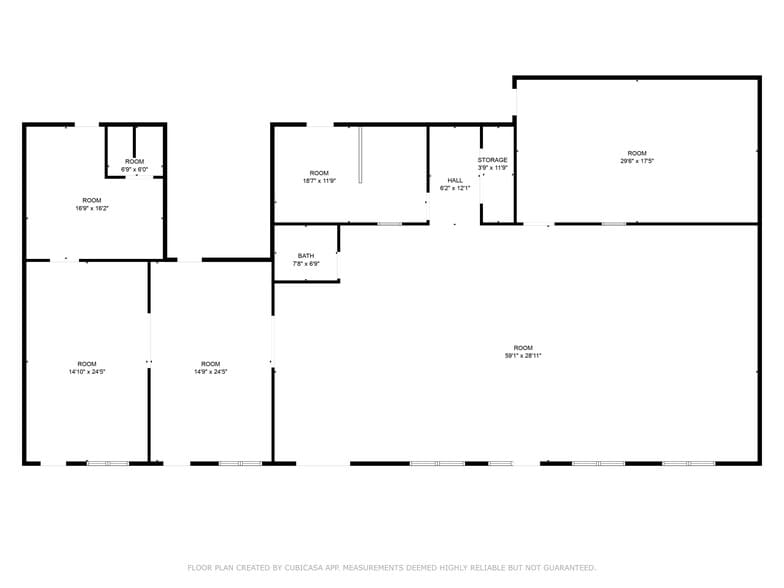
Excellent opportunity to acquire a 3,733 SF freestanding warehouse and flex commercial building in a highly visible West Pensacola location near the Mobile Highway / Fairfield Drive corridor, offering strong traffic exposure between Lillian Highway (±7,800 AADT) and Fairfield Road (±23,500 AADT).
The property is well-suited for owner-users or investors seeking a flexible, functional layout with the ability to replace rent with ownership under attractive seller-provided financing terms. Estimated ownership costs may be below typical area rents, making this a compelling alternative for tenants currently leasing similar warehouse or flex space in the area. (See flyer for owner-financing terms!)
The building features approximately 10-foot wall height, three-phase electrical, and numerous infrastructure upgrades that support a wide range of light industrial, warehouse, and commercial uses. The interior includes a private office and one restroom, with the office benefiting from its own separate rear entrance, allowing for privacy or multi-user functionality.
The layout offers multiple work areas and bays, each with front and rear access, providing efficient circulation for operations such as storage, manufacturing, distribution, shipping, or service-based businesses. An extra-large bay with a roll-up loading door (approximately 28’8” x 58’6”) enhances usability for larger equipment, inventory, or deliveries.
Zoned High Density Mixed Use (HDMU), the property allows for a broad range of potential commercial applications and is ideally configured for single-user occupancy or future multi-tenant conversion, offering attractive upside for investors seeking flexible income potential.
Situated on approximately 0.25 acres, the site offers convenient front parking along 61st Avenue and efficient access for customers, employees, and vendors. The property was previously utilized as a convenience store and has benefited from significant site and building improvements.
Notable updates and improvements (2013) include:
• Three-phase electrical with new wiring and fixtures
• New roof and roof structure
• Added foundation and roof support
• Approximately 10-foot wall height
• New plumbing and sewer line
• Foam insulation
• New asphalt parking area
This versatile commercial property presents a strong opportunity for distribution, contractor operations, small motor repair, retail-flex use, professional services, maintenance facilities, or similar commercial applications, in a well-traveled Pensacola corridor with excellent accessibility and visibility.
Buyer to verify all information.
Excellent opportunity to acquire a 3,733 SF freestanding warehouse and flex commercial building in a highly visible West Pensacola location near the Mobile Highway / Fairfield Drive corridor, offering strong traffic exposure between Lillian Highway (±7,800 AADT) and Fairfield Road (±23,500 AADT).
The property is well-suited for owner-users or investors seeking a flexible, functional layout with the ability to replace rent with ownership under attractive seller-provided financing terms. Estimated ownership costs may be below typical area rents, making this a compelling alternative for tenants currently leasing similar warehouse or flex space in the area. (See flyer for owner-financing terms!)
The building features approximately 10-foot wall height, three-phase electrical, and numerous infrastructure upgrades that support a wide range of light industrial, warehouse, and commercial uses. The interior includes a private office and one restroom, with the office benefiting from its own separate rear entrance, allowing for privacy or multi-user functionality.
The layout offers multiple work areas and bays, each with front and rear access, providing efficient circulation for operations such as storage, manufacturing, distribution, shipping, or service-based businesses. An extra-large bay with a roll-up loading door (approximately 28’8” x 58’6”) enhances usability for larger equipment, inventory, or deliveries.
Zoned High Density Mixed Use (HDMU), the property allows for a broad range of potential commercial applications and is ideally configured for single-user occupancy or future multi-tenant conversion, offering attractive upside for investors seeking flexible income potential.
Situated on approximately 0.25 acres, the site offers convenient front parking along 61st Avenue and efficient access for customers, employees, and vendors. The property was previously utilized as a convenience store and has benefited from significant site and building improvements.
Notable updates and improvements (2013) include:
• Three-phase electrical with new wiring and fixtures
• New roof and roof structure
• Added foundation and roof support
• Approximately 10-foot wall height
• New plumbing and sewer line
• Foam insulation
• New asphalt parking area
This versatile commercial property presents a strong opportunity for distribution, contractor operations, small motor repair, retail-flex use, professional services, maintenance facilities, or similar commercial applications, in a well-traveled Pensacola corridor with excellent accessibility and visibility.
Buyer to verify all information.
Property Facts
Sale Type
Investment or Owner User
Property Type
Building Size
3,733 SF
Building Class
B
Year Built/Renovated
1956/2013
Price
$346,254 CAD
Price Per SF
$92.76 CAD
Percent Leased
Vacant
Tenancy
Multiple
Building Height
1 Story
Building FAR
0.34
Lot Size
0.25 AC
Zoning
HDMU
Parking
10 Spaces (2.67 Spaces per 1,000 SF Leased)
Property Taxes
| Parcel Number | 35-2S-30-2410-000-000 | Improvements Assessment | $83,713 CAD |
| Land Assessment | $20,247 CAD | Total Assessment | $103,960 CAD |
Property Taxes
Parcel Number
35-2S-30-2410-000-000
Land Assessment
$20,247 CAD
Improvements Assessment
$83,713 CAD
Total Assessment
$103,960 CAD
1 of 48
Videos
Matterport 3D Exterior
Matterport 3D Tour
Photos
Street View
Street
Map
