Log In/Sign Up
Your email has been sent.
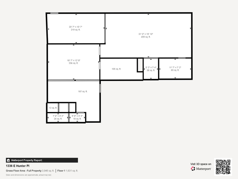
1336 E Hunter Pl 3,976 SF Office Building Moses Lake, WA 98837 $986,370 CAD ($248.08 CAD/SF)



Investment Highlights
- Heavy Street traffic (15k cars per day)
- Could be used for one tenant or multiple
- High visibility
Executive Summary
This commercial building has 2143 sq ft with high ceilings and endless potential, plus an additional 1643 sq ft of unfinished basement w 9 foot ceilings with separate entrance for storage or more? Flexible Single or Multi- Tenant Opportunity business cul-de-sac, just off Pioneer Way(15,000 cars daily) offering exceptional visibility. Adaptability defines this well-appointed office building-ideal for dental, professional, medical, or service-oriented users. Features include 6 private 10 x 10 rooms w large exterior windows, 23 paved & marked parking spaces, new roof in 2018 is pitched metal and welded vinyl flat roof 30 year warranty. New 2019 Trane HVAC. Currently single-tenant but could be multi tenant.
Property Facts
Sale Type
Investment or Owner User
Property Type
Building Size
3,976 SF
Building Class
C
Year Built
1984
Price
$986,370 CAD
Price Per SF
$248.08 CAD
Tenancy
Single
Building Height
1 Story
Typical Floor Size
2,143 SF
Building FAR
0.21
Lot Size
0.44 AC
Zoning
City - Commercial, Office, Retail
Parking
23 Spaces (10.73 Spaces per 1,000 SF Leased)
Amenities
- Signage
- Storage Space
- Air Conditioning
- Fiber Optic Internet
- Smoke Detector
1 1
Fairly walkable
50/100
Very drivable
80/100
Limited public transit
30/100
Fairly bikeable
40/100
Property Taxes
| Parcel Number | 311319000 | Improvements Assessment | $0 CAD |
| Land Assessment | $0 CAD | Total Assessment | $414,171 CAD |
Property Taxes
Parcel Number
311319000
Land Assessment
$0 CAD
Improvements Assessment
$0 CAD
Total Assessment
$414,171 CAD
1 of 58
Videos
Matterport 3D Exterior
Matterport 3D Tour
Photos
Street View
Street
Map
1 of 1
Presented by
1336 E Hunter Pl
Already a member? Log In
Hmm, there seems to have been an error sending your message. Please try again.
Thanks! Your message was sent.
