Log In/Sign Up
Your email has been sent.
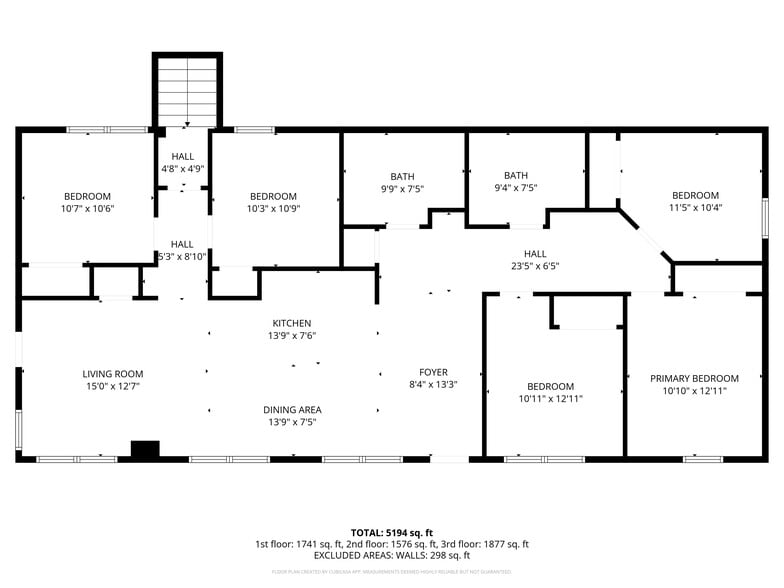
1349 Yorktown Rd 5,719 SF Health Care Building Offered at $3,814,869 CAD in Annapolis, MD 21409



Property Facts
| Price | $3,814,869 CAD | Building Class | C |
| Price Per Bed | $238,429 CAD | Lot Size | 0.88 AC |
| Sale Type | Investment or Owner User | Building Size | 5,719 SF |
| Sale Condition | Business Value Included | No. Beds | 16 |
| Property Type | Health Care | No. Stories | 2 |
| Property Subtype | Assisted Living | Year Built/Renovated | 1990/2026 |
| Zoning | R1 - single-family detached dwellings | ||
| Price | $3,814,869 CAD |
| Price Per Bed | $238,429 CAD |
| Sale Type | Investment or Owner User |
| Sale Condition | Business Value Included |
| Property Type | Health Care |
| Property Subtype | Assisted Living |
| Building Class | C |
| Lot Size | 0.88 AC |
| Building Size | 5,719 SF |
| No. Beds | 16 |
| No. Stories | 2 |
| Year Built/Renovated | 1990/2026 |
| Zoning | R1 - single-family detached dwellings |
1 1
Property Taxes
| Parcel Number | 03-000-90252369 | Improvements Assessment | $0 CAD |
| Land Assessment | $0 CAD | Total Assessment | $920,301 CAD |
Property Taxes
Parcel Number
03-000-90252369
Land Assessment
$0 CAD
Improvements Assessment
$0 CAD
Total Assessment
$920,301 CAD
1 of 37
Videos
Matterport 3D Exterior
Matterport 3D Tour
Photos
Street View
Street
Map
1 of 1
Presented by
1349 Yorktown Rd
Already a member? Log In
Hmm, there seems to have been an error sending your message. Please try again.
Thanks! Your message was sent.
