Log In/Sign Up
Your email has been sent.
Boccardo Family Living Center 13535-13545 Monterey Rd 3,662 SF of Office Space Available in San Martin, CA 95046



Highlights
- On-site and supplemental parking nearby.
All Available Space(1)
Display Rental Rate as
- Space
- Size
- Term
- Rental Rate
- Space Use
- Build-Out
- Available
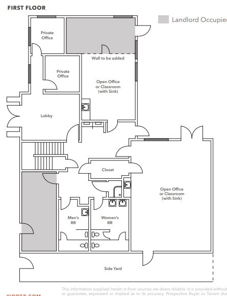
2 story office/classroom. Welcoming lobby/reception area and multiple entrances.
- Listed rate may not include certain utilities, building services and property expenses
- Mostly Open Floor Plan Layout
- 5 Private Offices
- Reception Area
- Secure Storage
- Possible side yard/BBQ area.
- Possible monument signage.
- Fully Built-Out as Standard Office
- Fits 10 - 30 People
- 2 Conference Rooms
- Private Restrooms
- Natural Light
- Combo of open office space and private offices.
| Space | Size | Term | Rental Rate | Space Use | Build-Out | Available |
| 1st Floor, Ste 13545 | 3,662 SF | Negotiable | $24.62 CAD/SF/YR $2.05 CAD/SF/MO $90,153 CAD/YR $7,513 CAD/MO | Office | Full Build-Out | Now |
1st Floor, Ste 13545
| Size |
| 3,662 SF |
| Term |
| Negotiable |
| Rental Rate |
| $24.62 CAD/SF/YR $2.05 CAD/SF/MO $90,153 CAD/YR $7,513 CAD/MO |
| Space Use |
| Office |
| Build-Out |
| Full Build-Out |
| Available |
| Now |
1 of 2
Videos
Matterport 3D Exterior
Matterport 3D Tour
Photos
Street View
Street
Map
1st Floor, Ste 13545
| Size | 3,662 SF |
| Term | Negotiable |
| Rental Rate | $24.62 CAD/SF/YR |
| Space Use | Office |
| Build-Out | Full Build-Out |
| Available | Now |
2 story office/classroom. Welcoming lobby/reception area and multiple entrances.
- Listed rate may not include certain utilities, building services and property expenses
- Fully Built-Out as Standard Office
- Mostly Open Floor Plan Layout
- Fits 10 - 30 People
- 5 Private Offices
- 2 Conference Rooms
- Reception Area
- Private Restrooms
- Secure Storage
- Natural Light
- Possible side yard/BBQ area.
- Combo of open office space and private offices.
- Possible monument signage.
About the Property
Located in San Martin, CA this school/office area has ample parking.
Property Facts
| Total Space Available | 3,662 SF | Building Size | 33,733 SF |
| Property Type | Specialty | Year Built | 1998 |
| Property Subtype | Schools |
| Total Space Available | 3,662 SF |
| Property Type | Specialty |
| Property Subtype | Schools |
| Building Size | 33,733 SF |
| Year Built | 1998 |
Features and Amenities
- Signage
Somewhat walkable
30/100
Exceptionally drivable
100/100
Good public transit
70/100
Fairly bikeable
50/100
1 of 7
Videos
Matterport 3D Exterior
Matterport 3D Tour
Photos
Street View
Street
Map
Presented by
Boccardo Family Living Center | 13535-13545 Monterey Rd
Already a member? Log In
Hmm, there seems to have been an error sending your message. Please try again.
Thanks! Your message was sent.




