Log In/Sign Up
Your email has been sent.
B9 1361 Rocky Point Dr 5,186 SF Industrial Building Oceanside, CA 92056 $2,718,874 CAD ($524.27 CAD/SF)



Investment Highlights
- Turnkey Owner-Occupied Building: Owner invested approximately $200,000 in a high-end office expansion and interior remodel with premium finishes
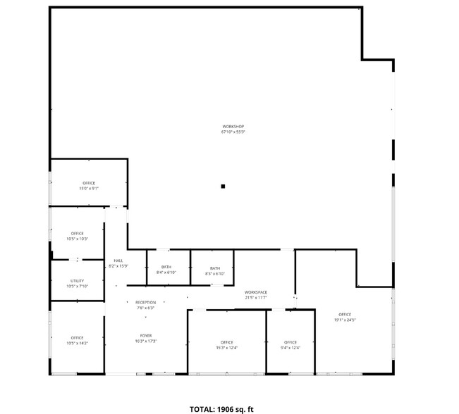
- Functional Layout: Approx. ±1,906 SF office and ±3,280 SF climate-controlled warehouse space with, roll-up door, LED lighting, and private parking.
- Prime Industrial Park Location: Situated in one of San Diego County’s most desirable industrial corridors near major corporate, logistics users
Executive Summary
Beautiful, owner-occupied office/warehouse building located in one of the premier industrial parks in San Diego County. The property is exceptionally well maintained, extremely clean, and positioned in a highly desirable business corridor with immediate access to major transportation routes and nearby amenities. The site benefits from proximity to major regional employers and logistics users, including a large U.S. Post Office facility, a Southern California FedEx operations hub, and well-established corporate and industrial neighbors that contribute to strong area demand.
The property is owned by the original owner, who completed an extensive interior remodel and expansion of approximately $200,000 in 2023. As part of this improvement, the office component was expanded to approximately 1,906 square feet and now features five oversized private offices, a high-end conference room, kitchen, and a welcoming front lobby area. Interior finishes are top-tier throughout, including custom accent lighting, crown molding, upgraded baseboards, and premium flooring. The building design provides abundant natural light, with large windows in every office and select spaces, including the conference room, featuring floor-to-ceiling glass.
Buyer to verify square footage; however, the building is believed to consist of approximately 1,906 square feet of office space and approximately 3,280 square feet of warehouse space. The warehouse is fully climate-controlled with a dedicated heating and air-conditioning unit added as part of the remodel, bright LED lighting throughout for excellent illumination, and a full roll-up door providing functional access and flexibility.
The property includes separate, remodeled, oversized restrooms for men and women, private on-site parking directly in front of and alongside the building, and a layout well suited for a wide range of owner-user or business park occupancies. The current owner operates a business from the property and is seeking a short-term leaseback to allow for an orderly transition. This is a rare opportunity to acquire a high-quality, turnkey building in a core industrial location with strong long-term fundamentals.
The property is owned by the original owner, who completed an extensive interior remodel and expansion of approximately $200,000 in 2023. As part of this improvement, the office component was expanded to approximately 1,906 square feet and now features five oversized private offices, a high-end conference room, kitchen, and a welcoming front lobby area. Interior finishes are top-tier throughout, including custom accent lighting, crown molding, upgraded baseboards, and premium flooring. The building design provides abundant natural light, with large windows in every office and select spaces, including the conference room, featuring floor-to-ceiling glass.
Buyer to verify square footage; however, the building is believed to consist of approximately 1,906 square feet of office space and approximately 3,280 square feet of warehouse space. The warehouse is fully climate-controlled with a dedicated heating and air-conditioning unit added as part of the remodel, bright LED lighting throughout for excellent illumination, and a full roll-up door providing functional access and flexibility.
The property includes separate, remodeled, oversized restrooms for men and women, private on-site parking directly in front of and alongside the building, and a layout well suited for a wide range of owner-user or business park occupancies. The current owner operates a business from the property and is seeking a short-term leaseback to allow for an orderly transition. This is a rare opportunity to acquire a high-quality, turnkey building in a core industrial location with strong long-term fundamentals.
Property Facts
| Price | $2,718,874 CAD | Rentable Building Area | 5,186 SF |
| Price Per SF | $524.27 CAD | No. Stories | 1 |
| Sale Type | Investment or Owner User | Year Built/Renovated | 2009/2022 |
| Property Type | Industrial | Tenancy | Single |
| Property Subtype | Warehouse | Parking Ratio | 4.82/1,000 SF |
| Building Class | B | Clear Ceiling Height | 18’ |
| Lot Size | 6.48 AC | No. Drive In / Grade-Level Doors | 1 |
| Zoning | IL - Industrial Light (IL) zoning permits a broad range of light industrial and office uses, including administrative, and business park-type occupancies. | ||
| Price | $2,718,874 CAD |
| Price Per SF | $524.27 CAD |
| Sale Type | Investment or Owner User |
| Property Type | Industrial |
| Property Subtype | Warehouse |
| Building Class | B |
| Lot Size | 6.48 AC |
| Rentable Building Area | 5,186 SF |
| No. Stories | 1 |
| Year Built/Renovated | 2009/2022 |
| Tenancy | Single |
| Parking Ratio | 4.82/1,000 SF |
| Clear Ceiling Height | 18’ |
| No. Drive In / Grade-Level Doors | 1 |
| Zoning | IL - Industrial Light (IL) zoning permits a broad range of light industrial and office uses, including administrative, and business park-type occupancies. |
1 1
Fairly walkable
40/100
Very drivable
80/100
Limited public transit
30/100
Fairly bikeable
50/100
Property Taxes
| Parcel Numbers | Improvements Assessment | $952,770 CAD | |
| Land Assessment | $1,040,423 CAD | Total Assessment | $1,993,193 CAD |
Property Taxes
Parcel Numbers
Land Assessment
$1,040,423 CAD
Improvements Assessment
$952,770 CAD
Total Assessment
$1,993,193 CAD
1 of 54
Videos
Matterport 3D Exterior
Matterport 3D Tour
Photos
Street View
Street
Map
1 of 1
Presented by
Hunter Campbell
B9 | 1361 Rocky Point Dr
Already a member? Log In
Hmm, there seems to have been an error sending your message. Please try again.
Thanks! Your message was sent.
