Log In/Sign Up
Your email has been sent.
1364 Buford Business Blvd - 1364 Buford Business Blvd 7,769 SF Industrial Condo Unit Offered at $2,185,804 CAD in Buford, GA 30518



Investment Highlights
- 968 SF of mezzanine
- Mezzanine above front office area
- One pedestrian entrance in the front and one in the back
- 12' x 14' drive in door
- Located in an established business park
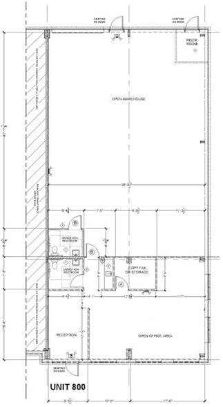
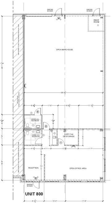
- Reception area, open office area, and two bathrooms
Executive Summary
Mezzanine above front office area Warehouse has drive in door Zoned M-1 (light Industrial), City of Buford Located in an established business park Reception area, open office area and two bathrooms One pedestrian entrance in the front and on in the back 1.5 miles from I-985, 4 miles from I-85 and within 0.5 miles of SR 20 Sprinklered building 1.5 miles from I-985, 4 miles from I-85 and within 0.5 miles of SR 20
1 Unit Available
Unit 600-700
| Unit Size | 7,769 SF | Condo Use | Industrial |
| Price | $2,185,804 CAD | Sale Type | Investment or Owner User |
| Price Per SF | $281.35 CAD |
| Unit Size | 7,769 SF |
| Price | $2,185,804 CAD |
| Price Per SF | $281.35 CAD |
| Condo Use | Industrial |
| Sale Type | Investment or Owner User |
Description
- 7,769 SF Office/Warehouse Condominiums for Sale
- Sprinklered building
- Mezzanine above front office areas
- Warehouse has drive in doors
- Reception area, two offices, conference rooms and two bathrooms in each suite
- 12’ X 14’ drive in door in the warehouse area in each suite
- One pedestrian entrance in the front and one in the back
Suite 600
- 3,652 SF Office/Warehouse
- 876 SF of mezzanine above front office area
Suite 700
- 4,117 SF Office/Warehouse
943 SF of office on mezzanine, includes show room and two private offices
Sale Notes
- Investment Opportunity
- Price $1,595,000
Located in an established business park
Floor Plan
Interior Info
1 of 2
Videos
Matterport 3D Exterior
Matterport 3D Tour
Photos
Street View
Street
Map
Property Facts
The following property facts and amenities apply to the entire building. Details for individual condo units may vary and are listed in the unit information above.
Amenities
- Security System
- Wheelchair Accessible
- Storage Space
- Air Conditioning
- Smoke Detector
Fairly walkable
40/100
Exceptionally drivable
100/100
Somewhat bikeable
30/100
1 of 11
Videos
Matterport 3D Exterior
Matterport 3D Tour
Photos
Street View
Street
Map
Presented by
1364 Buford Business Blvd - 1364 Buford Business Blvd
Already a member? Log In
Hmm, there seems to have been an error sending your message. Please try again.
Thanks! Your message was sent.


