Your email has been sent.
Highlights
- Fully Conditioned Space
- Exterior Camera Security
Features
All Available Spaces(2)
Display Rental Rate as
- Space
- Size
- Term
- Rental Rate
- Space Use
- Build-Out
- Available
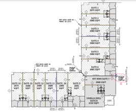
Suite 5: 2,080 SF Total (1 Office/ 462 SF of Office/1 Bath/Mop Closet) $20.00 PSF Base Rent + $3.26 PSF TICAMS NNN Lease Parking is 4 spaces per 2080 SF unit. No Outdoor Storage Allowed. Amenities • Fully conditioned space • 12x14 Roll up drive in door • 3 Phase: 200 AMP • Clear Height: 16’ • Office(s) with bathroom • 10’ Ceilings in office space • LVP flooring in office space • Warehouse painted and finished • LED lighting • Water sub metered • Exterior cameras for security
- Lease rate does not include utilities, property expenses or building services
- 1 Drive Bay
- Private Restrooms
- Right off Interstate 77: Exit 35
- Space is in Excellent Condition
- Central Air Conditioning
- High Ceilings
Park 35 Mooresville Keyman Executive Office Suite 7E (1 Office) available NOW. 131 SF $900.00 A MONTH 1 YEAR LEASE NEW CONSTRUCTION Contact me for details! NOTES PARK 35 KEYMAN OFFICE SUITES: Executive Keyman Office Suite Available at Park 35! Modern Offices that range from 131 to 204 SF. Fully Furnished. 24/7 Accessibility and Security Cameras. Office equipped with Unifi Internet phone and answering service. Unifi door access and camera entry. High Speed Internet with secure network. Furnished Office- Desk, Hutch, File Cabinet, and Office Chair. All Utilities paid. Each Office will be branded with Name and Company on signage by door AT TENANT'S EXPENSE. Shared Amenities: Modern Conference Room with 20' Ceilings and lots of Natural Light. (Conference can seat 12 people) Smart TV's with Zoom Capability. White Board, Kitchenette, 2 Bathrooms, Reception Area, Printer/Scanner/Fax Machine Area. (Note: Conference Room is available through our scheduling system for 1 Day or 8 hours a month are allotted to our Executive Suites at no charge.)
- Rate includes utilities, building services and property expenses
- Open Floor Plan Layout
- 1 Private Office
- Space is in Excellent Condition
- Fully Built-Out as Standard Office
- Fits 1 - 2 People
- 1 Conference Room
| Space | Size | Term | Rental Rate | Space Use | Build-Out | Available |
| 1st Floor - 5 | 2,080 SF | 5 Years | $27.28 CAD/SF/YR $2.27 CAD/SF/MO $56,752 CAD/YR $4,729 CAD/MO | Flex | Full Build-Out | Now |
| 1st Floor, Ste 7E | 131 SF | Negotiable | Upon Request Upon Request Upon Request Upon Request | Office | Full Build-Out | Now |
1st Floor - 5
| Size |
| 2,080 SF |
| Term |
| 5 Years |
| Rental Rate |
| $27.28 CAD/SF/YR $2.27 CAD/SF/MO $56,752 CAD/YR $4,729 CAD/MO |
| Space Use |
| Flex |
| Build-Out |
| Full Build-Out |
| Available |
| Now |
1st Floor, Ste 7E
| Size |
| 131 SF |
| Term |
| Negotiable |
| Rental Rate |
| Upon Request Upon Request Upon Request Upon Request |
| Space Use |
| Office |
| Build-Out |
| Full Build-Out |
| Available |
| Now |
1st Floor - 5
| Size | 2,080 SF |
| Term | 5 Years |
| Rental Rate | $27.28 CAD/SF/YR |
| Space Use | Flex |
| Build-Out | Full Build-Out |
| Available | Now |
Suite 5: 2,080 SF Total (1 Office/ 462 SF of Office/1 Bath/Mop Closet) $20.00 PSF Base Rent + $3.26 PSF TICAMS NNN Lease Parking is 4 spaces per 2080 SF unit. No Outdoor Storage Allowed. Amenities • Fully conditioned space • 12x14 Roll up drive in door • 3 Phase: 200 AMP • Clear Height: 16’ • Office(s) with bathroom • 10’ Ceilings in office space • LVP flooring in office space • Warehouse painted and finished • LED lighting • Water sub metered • Exterior cameras for security
- Lease rate does not include utilities, property expenses or building services
- Space is in Excellent Condition
- 1 Drive Bay
- Central Air Conditioning
- Private Restrooms
- High Ceilings
- Right off Interstate 77: Exit 35
1st Floor, Ste 7E
| Size | 131 SF |
| Term | Negotiable |
| Rental Rate | Upon Request |
| Space Use | Office |
| Build-Out | Full Build-Out |
| Available | Now |
Park 35 Mooresville Keyman Executive Office Suite 7E (1 Office) available NOW. 131 SF $900.00 A MONTH 1 YEAR LEASE NEW CONSTRUCTION Contact me for details! NOTES PARK 35 KEYMAN OFFICE SUITES: Executive Keyman Office Suite Available at Park 35! Modern Offices that range from 131 to 204 SF. Fully Furnished. 24/7 Accessibility and Security Cameras. Office equipped with Unifi Internet phone and answering service. Unifi door access and camera entry. High Speed Internet with secure network. Furnished Office- Desk, Hutch, File Cabinet, and Office Chair. All Utilities paid. Each Office will be branded with Name and Company on signage by door AT TENANT'S EXPENSE. Shared Amenities: Modern Conference Room with 20' Ceilings and lots of Natural Light. (Conference can seat 12 people) Smart TV's with Zoom Capability. White Board, Kitchenette, 2 Bathrooms, Reception Area, Printer/Scanner/Fax Machine Area. (Note: Conference Room is available through our scheduling system for 1 Day or 8 hours a month are allotted to our Executive Suites at no charge.)
- Rate includes utilities, building services and property expenses
- Fully Built-Out as Standard Office
- Open Floor Plan Layout
- Fits 1 - 2 People
- 1 Private Office
- 1 Conference Room
- Space is in Excellent Condition
Property Overview
Welcome to Lake Norman’s Exclusive Park 35, the premier destination for your business needs! This brand-new development at 137 Ebert Lane, Mooresville, NC 28117, offers 14 units with unmatched visibility and accessibility. Located directly off Interstate 77 at Exit 35, Park 35 ensures high traffic exposure. Zoned for Hybrid Light Industrial (HLI), these units provide the perfect blend of functionality and convenience. Don’t miss out on this prime opportunity to position your business for success!
Property Facts
Presented by
Park 35 | 137 Ebert Lane
Hmm, there seems to have been an error sending your message. Please try again.
Thanks! Your message was sent.









