Log In/Sign Up
Your email has been sent.
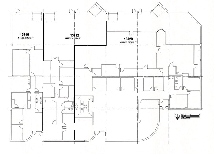
13712-13720 Shoreline Ct E
Earth City, MO 63045
Industrial Property For Lease
·
18,265 SF


Highlights
- Free-standing 18,265-square-foot building with flexible demising options.
- Fully air-conditioned warehouse with wet sprinkler system.
- Convenient access to I-70, I-270, and Lambert-St. Louis International Airport.
- Four loading docks and two drive-in doors for efficient logistics.
- ESD anti-static flooring and former clean-room space for specialized operations.
Features
Clear Height
16’
Drive In Bays
2
Standard Parking Spaces
56
Property Overview
The property is located in Earth City, Missouri, within the St. Louis metropolitan area. It is positioned near major transportation routes, including Interstate 70 and Interstate 270, and is in close proximity to Lambert-St. Louis International Airport. The building includes multiple loading docks, drive-in doors, and a wet sprinkler system. Electrical service is 3-phase with 800 amps. The site offers warehouse and office space with air conditioning and features an anti-static floor and former clean-room area.
Warehouse Facility Facts
Building Size
18,265 SF
Lot Size
1.30 AC
Year Built
1989
Construction
Masonry
Zoning
I
1 of 4
Videos
Matterport 3D Exterior
Matterport 3D Tour
Photos
Street View
Street
Map
