Log In/Sign Up
Your email has been sent.
13th Ave SE
Sauk Rapids, MN 56379
Land For Sale
·
5.91 AC


Investment Highlights
- industrial park
Executive Summary
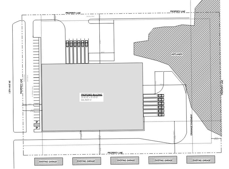
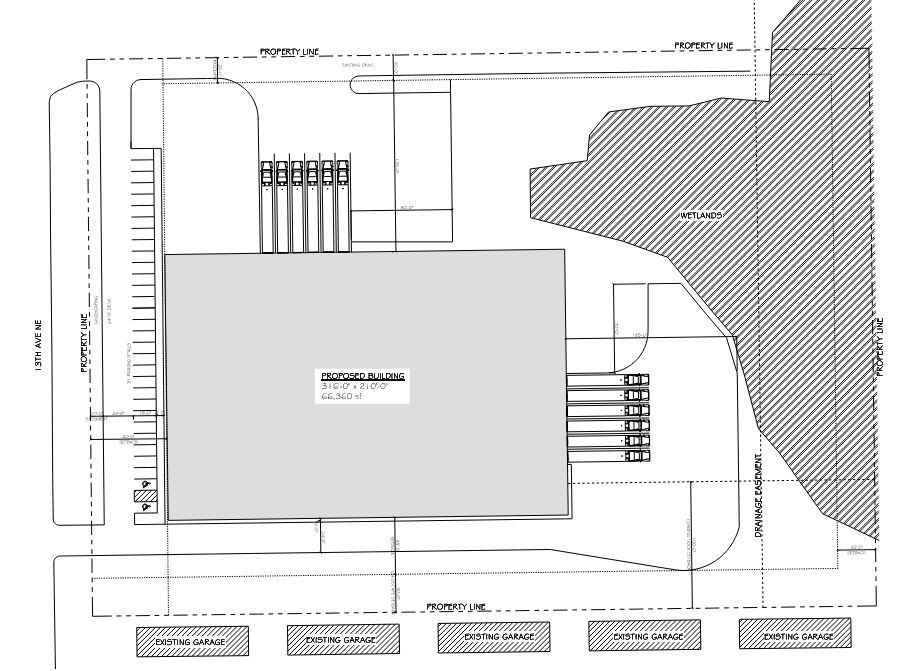
Being next to Pinnacle Climate Technologies this land offers the ability for the future owner to be next to a high level business. Current owner will also Design/Build on the site to lease back to the future tenant.
Property Facts
| Sale Type | Owner User | Property Subtype | Industrial |
| Sale Condition | Build to Suit | Proposed Use | |
| No. Lots | 1 | Total Lot Size | 5.91 AC |
| Property Type | Land | ||
| Zoning | Commercial | ||
| Sale Type | Owner User |
| Sale Condition | Build to Suit |
| No. Lots | 1 |
| Property Type | Land |
| Property Subtype | Industrial |
| Proposed Use | |
| Total Lot Size | 5.91 AC |
| Zoning | Commercial |
1 Lot Available
Lot
| Lot Size | 5.91 AC |
| Lot Size | 5.91 AC |
Being next to Pinnacle Climate Technologies this land offers the ability for the future owner to be next to a high level business. Current owner will also Design/Build on the site to lease back to the future tenant.
Description
Lot located next to Pinnacle Climate Technologies in the Sauk Rapids Industrial Park makes this a prime location for your business.
Property Taxes
| Parcel Numbers | Improvements Assessment | $0 CAD | |
| Land Assessment | $668,081 CAD | Total Assessment | $668,081 CAD |
Property Taxes
Parcel Numbers
Land Assessment
$668,081 CAD
Improvements Assessment
$0 CAD
Total Assessment
$668,081 CAD
1 of 3
Videos
Matterport 3D Exterior
Matterport 3D Tour
Photos
Street View
Street
Map
