Log In/Sign Up
Your email has been sent.
Investment Highlights
- mint condition, built new in 2015
- Parking for 40+ cars, and a 3 bedroom residential apartment.
- High traffic & high visibility on Rt 113, 2 miles from Rt 93
Executive Summary
Discover this versatile 4,804 sq ft commercial building situated on nearly 1 acre of land along highly visible Route 113, just 2 miles from Route 93. Built 10 years ago, this well-maintained property offers a prime opportunity for a range of business uses under B3 zoning, including professional offices, financial services, medical, dental, veterinary clinics, retail, auto sales, restaurants, church, temple, and more.
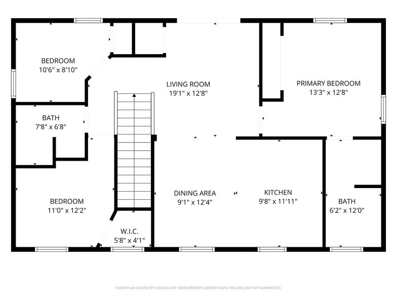
The first floor encompasses 3,712 sq ft, currently configured as a funeral home, providing a ready-to-operate space with flexible layout options. The second floor features an additional 1,100 sq ft of residential space with a 3-bedroom apartment, ideal for staff accommodations or additional rental income.
Ample parking for 40+ cars ensures convenience for clients and customers. The property is complemented by a serene wooded buffer along the sides and rear, offering privacy and a peaceful environment. Modern amenities include two separate HVAC systems and advanced fire prevention features, making this a turnkey operation with excellent potential for continued success.
The first floor encompasses 3,712 sq ft, currently configured as a funeral home, providing a ready-to-operate space with flexible layout options. The second floor features an additional 1,100 sq ft of residential space with a 3-bedroom apartment, ideal for staff accommodations or additional rental income.
Ample parking for 40+ cars ensures convenience for clients and customers. The property is complemented by a serene wooded buffer along the sides and rear, offering privacy and a peaceful environment. Modern amenities include two separate HVAC systems and advanced fire prevention features, making this a turnkey operation with excellent potential for continued success.
Property Facts
Amenities
- Air Conditioning
Utilities
- Lighting
- Gas
- Water
- Sewer
- Heating
1 1
Property Taxes
| Parcel Number | DRAC-000008-000000-000020 | Improvements Assessment | $845,228 CAD |
| Land Assessment | $469,632 CAD | Total Assessment | $1,314,860 CAD |
Property Taxes
Parcel Number
DRAC-000008-000000-000020
Land Assessment
$469,632 CAD
Improvements Assessment
$845,228 CAD
Total Assessment
$1,314,860 CAD
1 of 37
Videos
Matterport 3D Exterior
Matterport 3D Tour
Photos
Street View
Street
Map
1 of 1
Presented by
1400 Broadway Rd
Already a member? Log In
Hmm, there seems to have been an error sending your message. Please try again.
Thanks! Your message was sent.



