Your email has been sent.
1400 Oakland Office Center 1400 E Oakland Park Blvd 920 - 5,485 SF of Office Space Available in Oakland Park, FL 33334



Highlights
- Prominent Mid-Century Modern design with strong architectural identity
- Abundant natural light via vertical window lines
- Professionally maintained property with mature tropical landscaping
- Two-Story professional office building with efficient layouts
- Ample on-site parking for tenants and visitors
- Prime location in Oakland Park with direct access to I-95 and the coastal corridor
All Available Spaces(3)
Display Rental Rate as
- Space
- Size
- Term
- Rental Rate
- Space Use
- Build-Out
- Available
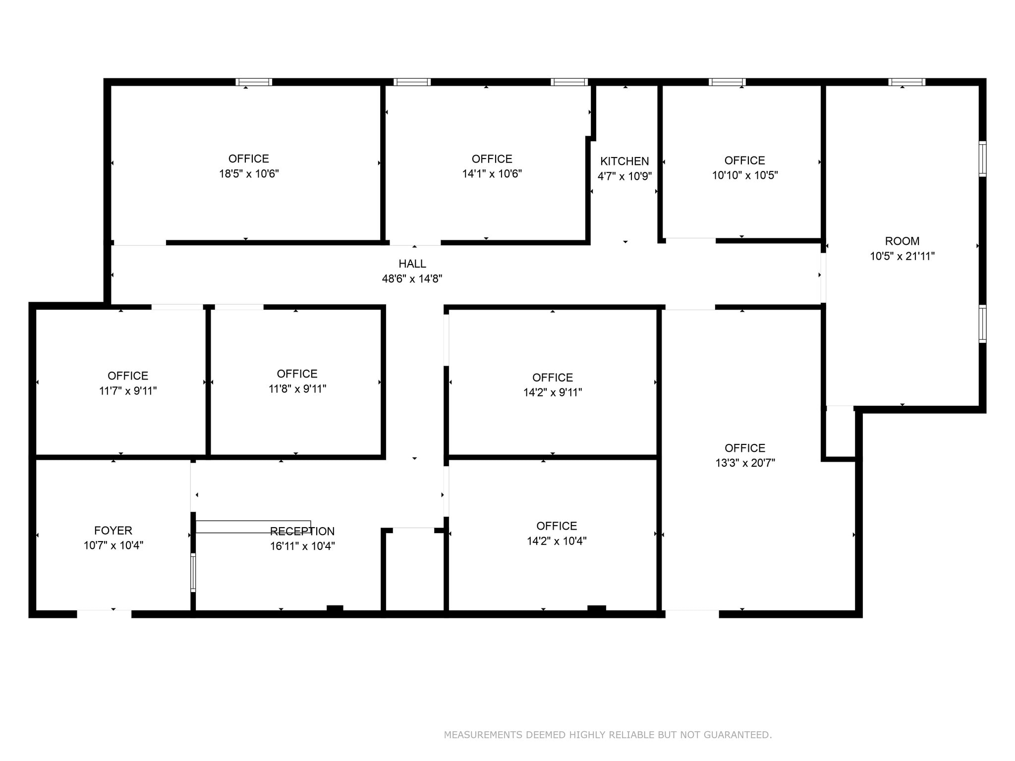
Well-appointed professional office suite designed for both efficiency and client experience. This first-floor corner unit offers excellent accessibility and a practical, high-functioning layout featuring a defined reception and waiting area, conference room, kitchen/break area, IT/storage, and eight private offices. Dual entry points allow for separation of client-facing and internal operations, supporting a wide range of professional or medical users. The space benefits from strong natural light, ample on-site parking, and immediate access along a primary corridor between Interstate 95 and the ocean. The suite can also be demised into two independent units (±1,930 SF and ±920 SF), offering flexibility for future growth or multi-tenant use.
- Lease rate does not include utilities, property expenses or building services
- 1 Conference Room
- Eight (8) Private Offices
- Efficient, move-in ready professional/ medical
- Prime location between I-95 & the Ocean
- 8 Private Offices
- First-floor corner unit with dual entry points
- Conference room + kitchen + IT Storage
- Ample on-site parking
Professionally configured office space within a highly accessible first-floor corner location. Suite 103A offers a balanced layout suitable for medical or general office users, with capacity for reception and waiting, multiple private offices, conference use, and support areas. The space is designed for efficient circulation while maintaining a polished client-facing environment. Corner positioning provides natural light and visibility, complemented by ample on-site parking. Strategically located along a main thoroughfare between Interstate 95 and the ocean. Opportunity exists to expand into the adjacent ±920 SF suite for full-floor occupancy if needed.
- Lease rate does not include utilities, property expenses or building services
- Reception / waiting area with multiple offices
- Flexible layout for medical or general office use
- Ability to expand into adjacent Suite 103B
- First-floor corner suite with strong visibility
- Conference room capability + support space
- Ample parking on-site
Efficient, well-positioned office suite ideal for boutique professional or medical users seeking a functional footprint without sacrificing accessibility. Located on the first floor, the space supports a variety of layouts, including private offices, open workspace, and reception. Its straightforward configuration allows for quick occupancy and adaptability to tenant needs. The suite benefits from ample parking and a convenient location along a primary east-west corridor between Interstate 95 and the ocean. Tenants also have the option to expand into the adjacent ±1,930 SF suite as their operations grow.
- Lease rate does not include utilities, property expenses or building services
- First-floor access for easy client entry
- Expansion opportunity into adjacent Suite 103A
- Efficient small-suite layout ideal for boutique
- Ample on-site parking
| Space | Size | Term | Rental Rate | Space Use | Build-Out | Available |
| 1st Floor, Ste 103 | 920-2,635 SF | Negotiable | $47.56 CAD/SF/YR $3.96 CAD/SF/MO $125,313 CAD/YR $10,443 CAD/MO | Office | Spec Suite | Now |
| 1st Floor, Ste 103A | 1,930 SF | Negotiable | $47.56 CAD/SF/YR $3.96 CAD/SF/MO $91,785 CAD/YR $7,649 CAD/MO | Office | - | Now |
| 1st Floor, Ste 103B | 920 SF | Negotiable | $47.56 CAD/SF/YR $3.96 CAD/SF/MO $43,752 CAD/YR $3,646 CAD/MO | Office | - | Now |
1st Floor, Ste 103
| Size |
| 920-2,635 SF |
| Term |
| Negotiable |
| Rental Rate |
| $47.56 CAD/SF/YR $3.96 CAD/SF/MO $125,313 CAD/YR $10,443 CAD/MO |
| Space Use |
| Office |
| Build-Out |
| Spec Suite |
| Available |
| Now |
1st Floor, Ste 103A
| Size |
| 1,930 SF |
| Term |
| Negotiable |
| Rental Rate |
| $47.56 CAD/SF/YR $3.96 CAD/SF/MO $91,785 CAD/YR $7,649 CAD/MO |
| Space Use |
| Office |
| Build-Out |
| - |
| Available |
| Now |
1st Floor, Ste 103B
| Size |
| 920 SF |
| Term |
| Negotiable |
| Rental Rate |
| $47.56 CAD/SF/YR $3.96 CAD/SF/MO $43,752 CAD/YR $3,646 CAD/MO |
| Space Use |
| Office |
| Build-Out |
| - |
| Available |
| Now |
1st Floor, Ste 103
| Size | 920-2,635 SF |
| Term | Negotiable |
| Rental Rate | $47.56 CAD/SF/YR |
| Space Use | Office |
| Build-Out | Spec Suite |
| Available | Now |
Well-appointed professional office suite designed for both efficiency and client experience. This first-floor corner unit offers excellent accessibility and a practical, high-functioning layout featuring a defined reception and waiting area, conference room, kitchen/break area, IT/storage, and eight private offices. Dual entry points allow for separation of client-facing and internal operations, supporting a wide range of professional or medical users. The space benefits from strong natural light, ample on-site parking, and immediate access along a primary corridor between Interstate 95 and the ocean. The suite can also be demised into two independent units (±1,930 SF and ±920 SF), offering flexibility for future growth or multi-tenant use.
- Lease rate does not include utilities, property expenses or building services
- 8 Private Offices
- 1 Conference Room
- First-floor corner unit with dual entry points
- Eight (8) Private Offices
- Conference room + kitchen + IT Storage
- Efficient, move-in ready professional/ medical
- Ample on-site parking
- Prime location between I-95 & the Ocean
1st Floor, Ste 103A
| Size | 1,930 SF |
| Term | Negotiable |
| Rental Rate | $47.56 CAD/SF/YR |
| Space Use | Office |
| Build-Out | - |
| Available | Now |
Professionally configured office space within a highly accessible first-floor corner location. Suite 103A offers a balanced layout suitable for medical or general office users, with capacity for reception and waiting, multiple private offices, conference use, and support areas. The space is designed for efficient circulation while maintaining a polished client-facing environment. Corner positioning provides natural light and visibility, complemented by ample on-site parking. Strategically located along a main thoroughfare between Interstate 95 and the ocean. Opportunity exists to expand into the adjacent ±920 SF suite for full-floor occupancy if needed.
- Lease rate does not include utilities, property expenses or building services
- First-floor corner suite with strong visibility
- Reception / waiting area with multiple offices
- Conference room capability + support space
- Flexible layout for medical or general office use
- Ample parking on-site
- Ability to expand into adjacent Suite 103B
1st Floor, Ste 103B
| Size | 920 SF |
| Term | Negotiable |
| Rental Rate | $47.56 CAD/SF/YR |
| Space Use | Office |
| Build-Out | - |
| Available | Now |
Efficient, well-positioned office suite ideal for boutique professional or medical users seeking a functional footprint without sacrificing accessibility. Located on the first floor, the space supports a variety of layouts, including private offices, open workspace, and reception. Its straightforward configuration allows for quick occupancy and adaptability to tenant needs. The suite benefits from ample parking and a convenient location along a primary east-west corridor between Interstate 95 and the ocean. Tenants also have the option to expand into the adjacent ±1,930 SF suite as their operations grow.
- Lease rate does not include utilities, property expenses or building services
- Efficient small-suite layout ideal for boutique
- First-floor access for easy client entry
- Ample on-site parking
- Expansion opportunity into adjacent Suite 103A
Property Overview
1400 Oakland Office Center is a well-maintained, two-story professional office building located in the heart of Oakland Park. The property blends a distinctive Mid-Century Modern architectural character with practical functionality, highlighted by vertical window lines that provide strong natural light throughout the suites and create a bright, professional working environment. The building is designed to support a range of professional and medical users, offering efficient layouts, first-floor accessibility, and a straightforward tenant experience. The surrounding grounds are enhanced by mature tropical landscaping, including palm trees and curated greenery, contributing to a clean and inviting setting for both tenants and visitors. On-site parking is ample and conveniently positioned, allowing for easy ingress and egress. The property benefits from its location along a primary east-west corridor with direct connectivity to Interstate 95 and the nearby coastal area, providing strong regional accessibility.
- Controlled Access
- Security System
- Reception
- Storage Space
- Common Parts WC Facilities
- Natural Light
- Air Conditioning
- Fiber Optic Internet
- Smoke Detector
Property Facts
Presented by
1400 Oakland Office Center | 1400 E Oakland Park Blvd
Hmm, there seems to have been an error sending your message. Please try again.
Thanks! Your message was sent.




