Your email has been sent.
Highlights
- Walking distance to shopping, dining, and fitness amenities.
- Outdoor patio areas & sports courts.
- Ample free parking for employees and clients plus an automated card key system for safe after-hour access.
- Full kitchen facilites and seating areas.
- Walking distance to a full service gym.
- Electric car charging stations, including 10 new EV superchargers.
All Available Spaces(3)
Display Rental Rate as
- Space
- Size
- Term
- Rental Rate
- Space Use
- Condition
- Available
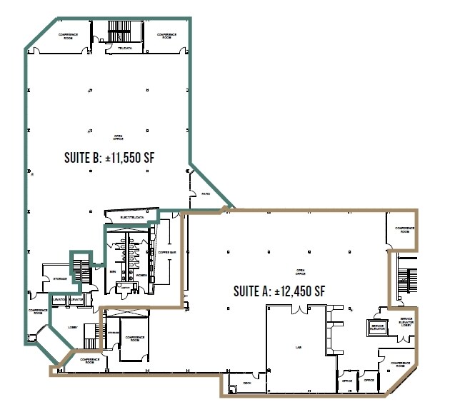
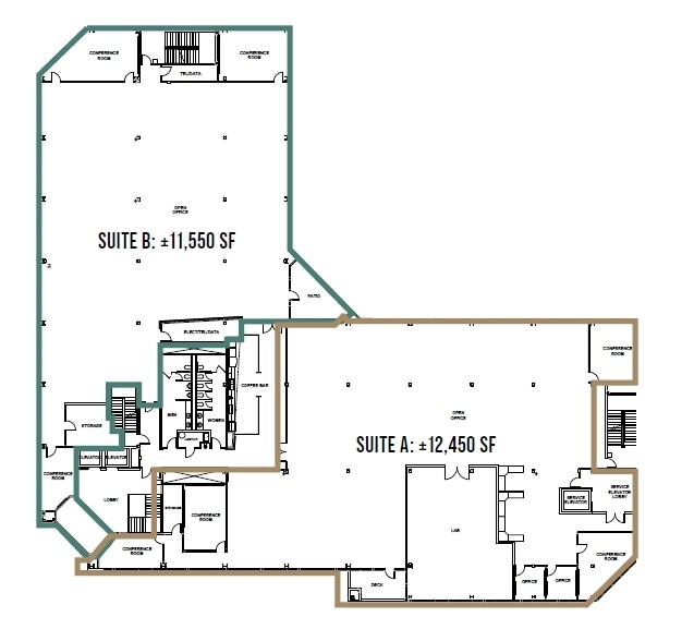
Suite A at 1400 N McDowell Blvd offers a highly functional and adaptable office environment in Petaluma’s thriving business corridor. Spanning 12,450 square feet, this suite features a mostly open floor plan designed for collaborative work, complemented by two private offices for focused tasks and four conference rooms ideal for team meetings and client presentations. Secure storage is included, providing peace of mind for equipment and sensitive materials. For businesses seeking additional space, Suite A can be combined with adjacent Suite B, which offers an additional 11,550 square feet, creating a substantial footprint for growing teams or multi-department operations. This flexibility makes the property an excellent choice for companies looking to scale without compromising on layout efficiency or location advantages.
- Fully Built-Out as Standard Office
- 2 Private Offices
- Can be combined with additional space(s) for up to 24,000 SF of adjacent space
- Mostly Open Floor Plan Layout
- 4 Conference Rooms
- Secure Storage
Suite B at 1400 N McDowell Blvd delivers a flexible and efficient office environment tailored for modern business needs. Spanning 11,550 square feet, this suite features a mostly open floor plan complemented by three conference rooms, creating an ideal setting for collaboration and team meetings. Secure storage is included, providing a safe solution for equipment and sensitive materials. For companies seeking additional space, Suite B can be combined with adjacent Suite A, which offers 12,450 square feet, creating a substantial footprint for growing teams or multi-department operations. This combination offers unmatched flexibility for businesses looking to scale while maintaining a cohesive layout.
- Fully Built-Out as Standard Office
- 3 Conference Rooms
- Secure Storage
- Mostly Open Floor Plan Layout
- Can be combined with additional space(s) for up to 24,000 SF of adjacent space
- Fully Built-Out as Standard Office
- Space is in Excellent Condition
- Mostly Open Floor Plan Layout
| Space | Size | Term | Rental Rate | Space Use | Condition | Available |
| 2nd Floor, Ste A | 12,450 SF | Negotiable | Upon Request Upon Request Upon Request Upon Request | Office | Full Build-Out | Now |
| 2nd Floor, Ste B | 11,550 SF | Negotiable | Upon Request Upon Request Upon Request Upon Request | Office | Full Build-Out | Now |
| 3rd Floor | 24,000 SF | Negotiable | Upon Request Upon Request Upon Request Upon Request | Office | Full Build-Out | Now |
2nd Floor, Ste A
| Size |
| 12,450 SF |
| Term |
| Negotiable |
| Rental Rate |
| Upon Request Upon Request Upon Request Upon Request |
| Space Use |
| Office |
| Condition |
| Full Build-Out |
| Available |
| Now |
2nd Floor, Ste B
| Size |
| 11,550 SF |
| Term |
| Negotiable |
| Rental Rate |
| Upon Request Upon Request Upon Request Upon Request |
| Space Use |
| Office |
| Condition |
| Full Build-Out |
| Available |
| Now |
3rd Floor
| Size |
| 24,000 SF |
| Term |
| Negotiable |
| Rental Rate |
| Upon Request Upon Request Upon Request Upon Request |
| Space Use |
| Office |
| Condition |
| Full Build-Out |
| Available |
| Now |
2nd Floor, Ste A
| Size | 12,450 SF |
| Term | Negotiable |
| Rental Rate | Upon Request |
| Space Use | Office |
| Condition | Full Build-Out |
| Available | Now |
Suite A at 1400 N McDowell Blvd offers a highly functional and adaptable office environment in Petaluma’s thriving business corridor. Spanning 12,450 square feet, this suite features a mostly open floor plan designed for collaborative work, complemented by two private offices for focused tasks and four conference rooms ideal for team meetings and client presentations. Secure storage is included, providing peace of mind for equipment and sensitive materials. For businesses seeking additional space, Suite A can be combined with adjacent Suite B, which offers an additional 11,550 square feet, creating a substantial footprint for growing teams or multi-department operations. This flexibility makes the property an excellent choice for companies looking to scale without compromising on layout efficiency or location advantages.
- Fully Built-Out as Standard Office
- Mostly Open Floor Plan Layout
- 2 Private Offices
- 4 Conference Rooms
- Can be combined with additional space(s) for up to 24,000 SF of adjacent space
- Secure Storage
2nd Floor, Ste B
| Size | 11,550 SF |
| Term | Negotiable |
| Rental Rate | Upon Request |
| Space Use | Office |
| Condition | Full Build-Out |
| Available | Now |
Suite B at 1400 N McDowell Blvd delivers a flexible and efficient office environment tailored for modern business needs. Spanning 11,550 square feet, this suite features a mostly open floor plan complemented by three conference rooms, creating an ideal setting for collaboration and team meetings. Secure storage is included, providing a safe solution for equipment and sensitive materials. For companies seeking additional space, Suite B can be combined with adjacent Suite A, which offers 12,450 square feet, creating a substantial footprint for growing teams or multi-department operations. This combination offers unmatched flexibility for businesses looking to scale while maintaining a cohesive layout.
- Fully Built-Out as Standard Office
- Mostly Open Floor Plan Layout
- 3 Conference Rooms
- Can be combined with additional space(s) for up to 24,000 SF of adjacent space
- Secure Storage
3rd Floor
| Size | 24,000 SF |
| Term | Negotiable |
| Rental Rate | Upon Request |
| Space Use | Office |
| Condition | Full Build-Out |
| Available | Now |
- Fully Built-Out as Standard Office
- Mostly Open Floor Plan Layout
- Space is in Excellent Condition
Property Overview
Up to ±48,000 SF of Class 'A' office space across two full floors in Petaluma's premier Sequoia Center. Stunning mountain views, ample parking with EV charging stations, sports courts and scenic water features throughout the campus. Prime location with direct Highway 101 access and close proximity to Petaluma North SMART Train Station. Site is conveniently located near shopping, dining, and fitness amenities.
Property Facts
Presented by
1400 N McDowell Blvd
Hmm, there seems to have been an error sending your message. Please try again.
Thanks! Your message was sent.











