Your email has been sent.
Highlights
- Turnkey medical configuration with reception, exam rooms, offices, and support spaces
- Strong North Phoenix demographics supporting healthcare and office demand
- Professional environment surrounded by established neighborhoods and amenities
- Prominent 7th Street visibility within a well-established corporate center
- Convenient access to major freeways and regional business hubs
All Available Space(1)
Display Rental Rate as
- Space
- Size
- Term
- Rental Rate
- Space Use
- Build-Out
- Available
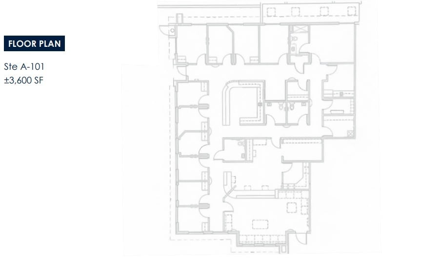
Reception, 4 Offices, Break Room, 4 Restrooms, 9 Exam Rooms, 1 Lab Room Turn key, 2nd Generation medical buildout.
- Lease rate does not include utilities, property expenses or building services
- Open Floor Plan Layout
- 4 Private Offices
- Partially Built-Out as Standard Medical Space
- Fits 9 - 29 People
- Reception Area
| Space | Size | Term | Rental Rate | Space Use | Build-Out | Available |
| 1st Floor, Ste A101 | 3,600 SF | Negotiable | $34.09 CAD/SF/YR $2.84 CAD/SF/MO $122,729 CAD/YR $10,227 CAD/MO | Office/Medical | Partial Build-Out | Now |
1st Floor, Ste A101
| Size |
| 3,600 SF |
| Term |
| Negotiable |
| Rental Rate |
| $34.09 CAD/SF/YR $2.84 CAD/SF/MO $122,729 CAD/YR $10,227 CAD/MO |
| Space Use |
| Office/Medical |
| Build-Out |
| Partial Build-Out |
| Available |
| Now |
1st Floor, Ste A101
| Size | 3,600 SF |
| Term | Negotiable |
| Rental Rate | $34.09 CAD/SF/YR |
| Space Use | Office/Medical |
| Build-Out | Partial Build-Out |
| Available | Now |
Reception, 4 Offices, Break Room, 4 Restrooms, 9 Exam Rooms, 1 Lab Room Turn key, 2nd Generation medical buildout.
- Lease rate does not include utilities, property expenses or building services
- Partially Built-Out as Standard Medical Space
- Open Floor Plan Layout
- Fits 9 - 29 People
- 4 Private Offices
- Reception Area
Property Overview
Positioned in the established Moon Valley Corporate Center, this professionally designed medical and office suite at 14001 N 7th Street offers a highly functional environment for operators seeking immediate usability within one of North Phoenix’s most stable commercial corridors. The property features a dedicated reception area, four private offices, nine exam rooms, multiple restrooms, a lab room, and a break space that supports both patient-facing services and back-of-house efficiency. Its layout directly appeals to healthcare practitioners, wellness providers, and general office users who value a turnkey framework within a professional setting. The location offers excellent visibility and accessibility along 7th Street, a well-traveled arterial connecting nearby residential communities with the broader Phoenix metro. Tenants benefit from direct proximity to surrounding neighborhoods such as Moon Valley and Lookout Mountain, areas known for strong household demographics and steady consumer demand. The property is also situated minutes from the Phoenix Mountain Preserve, Cave Creek Golf Course, and multiple commercial service amenities that support staff and client convenience. Regional connectivity is a key advantage, with access to major routes such as SR-51, Loop 101, and I-17, allowing efficient movement throughout the metropolitan area. Sky Harbor International Airport is within a reasonable drive, supporting business travel and professional mobility. The building’s established corporate park setting creates an environment that is both functional and inviting, providing a professional identity suitable for long-term tenancy.
- Monument Signage
Property Facts
Select Tenants
- Floor
- Tenant Name
- Industry
- 1st
- Brenke Logistics
- Transportation and Warehousing
- 1st
- Phoenix Scottish Rite Bodies
- Services
- 1st
- Select Physical Therapy
- Health Care and Social Assistance
- 1st
- Wellness
- Services
Presented by
Bldg A | 14001 N 7th St
Hmm, there seems to have been an error sending your message. Please try again.
Thanks! Your message was sent.





