Log In/Sign Up
Your email has been sent.
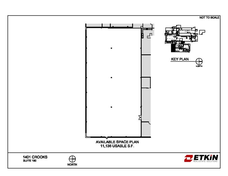
1401 Crooks Rd
Troy, MI 48084
Office Property For Lease
·
6,037 SF


HIGHLIGHTS
- Location
FEATURES
Clear Height
14’
Drive In Bays
12
Levelers
1
Standard Parking Spaces
767
PROPERTY OVERVIEW
One-story office/industrial facility and includes separate storage facility and a separate test/storage facility The building is constructed of brick veneer, glass and block Main building has two (2) dock high doors with full service Shipping/Receiving area
PROPERTY FACTS
Building Size
74,200 SF
Lot Size
22.00 AC
Year Built/Renovated
1955/1998
Construction
Steel
Zoning
M-1
1 of 4
VIDEOS
MATTERPORT 3D EXTERIOR
MATTERPORT 3D TOUR
PHOTOS
STREET VIEW
STREET
MAP
