Log In/Sign Up
Your email has been sent.
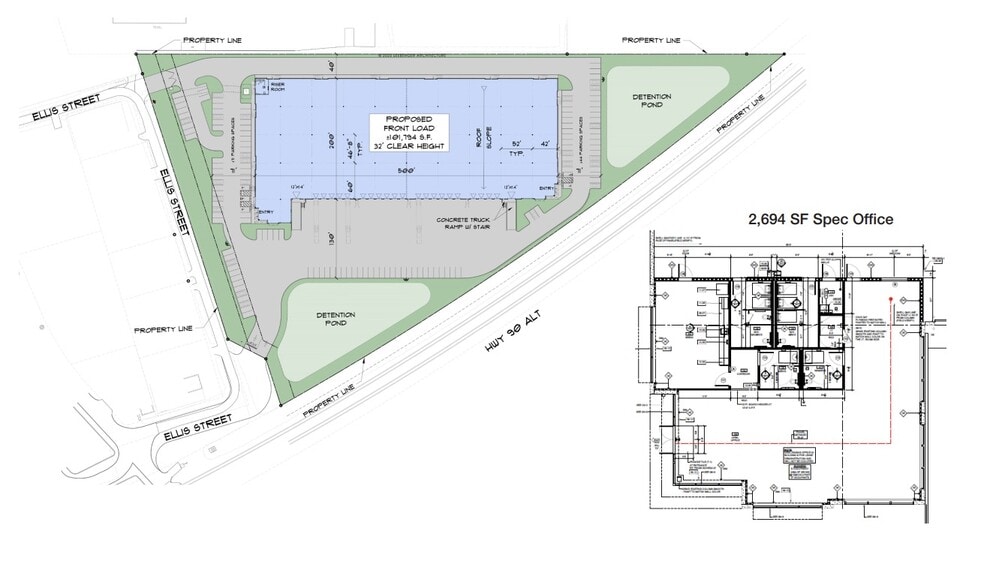
Stafford Distribution Center 14049 Ellis St 101,794 SF Vacant 4-Star Industrial Building Stafford, TX 77477 For Sale



Investment Highlights
- 2,694 SF Spec Office
- 32’ Clear Height
- Warehouse Lights
- Side Load, 21 Dock Doors
- 132’ Truck Court
- 6 Mechanical Pit Levelers
Executive Summary
Stafford Distribution Center offers a prime opportunity for investors seeking a modern, high-functionality industrial asset in one of Houston’s most dynamic submarkets. This 101,794-square-foot facility combines robust distribution capabilities with a strategic location just minutes from major transportation arteries. Positioned less than 2.4 miles from I-69 and 2.7 miles from Sam Houston Tollway, the property ensures seamless regional and interstate connectivity, ideal for logistics and e-commerce operations.
Constructed with efficiency in mind, the building features a 32-foot clear height, ESFR sprinkler system, and a front-load design supported by 21 dock-high doors and two ramps for optimized loading and unloading. A 130-foot truck court and 136 parking spaces accommodate heavy traffic and employee needs, while the 2,694-square-foot spec office provides immediate administrative functionality.
Stafford’s strong population growth and proximity to Houston’s expansive labor pool enhance long-term value, making this asset a compelling choice for owner-users or investors targeting high-demand industrial corridors. With modern construction, superior access, and scalable design, Stafford Distribution Center stands ready to deliver operational excellence and investment stability.
Constructed with efficiency in mind, the building features a 32-foot clear height, ESFR sprinkler system, and a front-load design supported by 21 dock-high doors and two ramps for optimized loading and unloading. A 130-foot truck court and 136 parking spaces accommodate heavy traffic and employee needs, while the 2,694-square-foot spec office provides immediate administrative functionality.
Stafford’s strong population growth and proximity to Houston’s expansive labor pool enhance long-term value, making this asset a compelling choice for owner-users or investors targeting high-demand industrial corridors. With modern construction, superior access, and scalable design, Stafford Distribution Center stands ready to deliver operational excellence and investment stability.
Property Facts
| Sale Type | Investment or Owner User | No. Stories | 1 |
| Property Type | Industrial | Year Built | 2026 |
| Property Subtype | Distribution | Parking Ratio | 1.13/1,000 SF |
| Building Class | B | Clear Ceiling Height | 32’ |
| Lot Size | 7.49 AC | No. Dock-High Doors/Loading | 21 |
| Construction Status | Under Construction | No. Drive In / Grade-Level Doors | 2 |
| Rentable Building Area | 101,794 SF |
| Sale Type | Investment or Owner User |
| Property Type | Industrial |
| Property Subtype | Distribution |
| Building Class | B |
| Lot Size | 7.49 AC |
| Construction Status | Under Construction |
| Rentable Building Area | 101,794 SF |
| No. Stories | 1 |
| Year Built | 2026 |
| Parking Ratio | 1.13/1,000 SF |
| Clear Ceiling Height | 32’ |
| No. Dock-High Doors/Loading | 21 |
| No. Drive In / Grade-Level Doors | 2 |
Space Availability
- Space
- Size
- Space Use
- Build-Out
- Available
2,694 SF Spec Office
| Space | Size | Space Use | Build-Out | Available |
| 1st Fl - Bldg | 39,100-101,794 SF | Industrial | Spec Suite | Jun 2026 |
1st Fl - Bldg
| Size |
| 39,100-101,794 SF |
| Space Use |
| Industrial |
| Build-Out |
| Spec Suite |
| Available |
| Jun 2026 |
1st Fl - Bldg
| Size | 39,100-101,794 SF |
| Space Use | Industrial |
| Build-Out | Spec Suite |
| Available | Jun 2026 |
2,694 SF Spec Office
1 1
Fairly walkable
50/100
Exceptionally drivable
90/100
Fairly bikeable
40/100
Property Taxes
| Parcel Number | 0200-00-000-1030-910 | Improvements Assessment | $0 CAD |
| Land Assessment | $2,278,105 CAD | Total Assessment | $2,278,105 CAD |
Property Taxes
Parcel Number
0200-00-000-1030-910
Land Assessment
$2,278,105 CAD
Improvements Assessment
$0 CAD
Total Assessment
$2,278,105 CAD
1 of 5
Videos
Matterport 3D Exterior
Matterport 3D Tour
Photos
Street View
Street
Map
1 of 1
Presented by
Stafford Distribution Center | 14049 Ellis St
Already a member? Log In
Hmm, there seems to have been an error sending your message. Please try again.
Thanks! Your message was sent.
