Your email has been sent.
Stafford Distribution Center 14049 Ellis St 39,100 - 101,794 SF of 4-Star Industrial Space Available in Stafford, TX 77477



Highlights
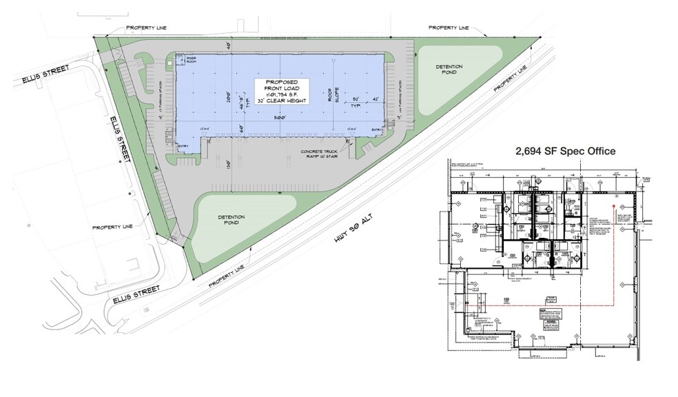
- 2,694 SF Spec Office
- 32’ Clear Height
- Warehouse lights.
- 21 Dock Doors and 2 Ramps
- 132’ Truck Court
- 6 mechanical pit levelers.
Features
All Available Space(1)
Display Rental Rate as
- Space
- Size
- Term
- Rental Rate
- Space Use
- Build-Out
- Available
2,694 SF Spec Office
- Includes 2,964 SF of dedicated office space
- Space is in Excellent Condition
- 2 Drive Ins
- 21 Loading Docks
| Space | Size | Term | Rental Rate | Space Use | Build-Out | Available |
| 1st Floor - Bldg | 39,100-101,794 SF | Negotiable | Upon Request Upon Request Upon Request Upon Request | Industrial | Spec Suite | 2026-06-01 |
1st Floor - Bldg
| Size |
| 39,100-101,794 SF |
| Term |
| Negotiable |
| Rental Rate |
| Upon Request Upon Request Upon Request Upon Request |
| Space Use |
| Industrial |
| Build-Out |
| Spec Suite |
| Available |
| 2026-06-01 |
1st Floor - Bldg
| Size | 39,100-101,794 SF |
| Term | Negotiable |
| Rental Rate | Upon Request |
| Space Use | Industrial |
| Build-Out | Spec Suite |
| Available | 2026-06-01 |
2,694 SF Spec Office
- Includes 2,964 SF of dedicated office space
- 2 Drive Ins
- Space is in Excellent Condition
- 21 Loading Docks
Property Overview
Stafford Distribution Center presents an exceptional leasing opportunity for businesses requiring a state-of-the-art distribution hub in the Houston metro area. This 101,794-square-foot facility is engineered for efficiency, featuring a front-load configuration, 32-foot clear height, and ESFR sprinkler system to support high-volume operations. The property’s strategic location—just 4 minutes from I-69 and Sam Houston Tollway—provides unparalleled access to regional and national markets, reducing transit times and optimizing supply chain performance. With 21 dock-high doors, two ramps, and a 130-foot truck court, tenants benefit from streamlined logistics and flexible loading options. The inclusion of a 2,694-square-foot spec office ensures immediate readiness for administrative functions, while 136 parking spaces accommodate workforce needs. Situated in Stafford, a thriving industrial hub with strong demographic growth, this facility offers proximity to Houston’s skilled labor force and major commercial centers. Whether for distribution, manufacturing, or third-party logistics, Stafford Distribution Center delivers the infrastructure and location advantages to elevate operational success.
Distribution Facility Facts
Presented by
Stafford Distribution Center | 14049 Ellis St
Hmm, there seems to have been an error sending your message. Please try again.
Thanks! Your message was sent.
