Log In/Sign Up
Your email has been sent.
Walking Distance to Holmes Hospital 1405 Pine St 2,004 SF Office Building Melbourne, FL 32901 $953,874 CAD ($475.98 CAD/SF)



Investment Highlights
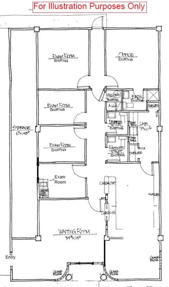
- Waiting Room, Check-in/Out, Lab, 4 Plumbed Exam Rooms, Doctor's Office
- Remaining FF&E Included
- New Roof 2025. Hot Water Heater 2024. HVAC 2022. Electric Panel 2023
- 3 Total Restrooms (1 with Shower + 2 with Passthrough Windows to Lab)
- 10 Asphalt Paved/Striped Parking Spaces
- Property to be Delivered Vacant at Closing
Executive Summary
• Waiting Room, Check-in/Out, Lab, 4 Plumbed Exam Rooms, Doctor's Office.
• Carpet & LVP Flooring. Drop Ceiling Throughout.
• 3 Total Restrooms (1 with Shower + 2 with Passthrough Windows to Lab).
• Remaining FF&E Included.
• 10 Asphalt Paved/Striped Parking Spaces.
• Utilities: City Water/Sewer, FPL Electric.
• New Roof 2025. Hot Water Heater 2024. HVAC 2022. Electric Panel 2023.
• Do not Disturb Tenant. Property Delivered Vacant at Closing.
• Conveniently positioned within walking distance to the Health First Holmes Regional Medical Center, and the rest of the Melbourne medical community! Downtown Melbourne, the Melbourne Square Mall, and the Melbourne International Airport are a short drive away. Lots of shopping, dining, schools, and employers nearby. Make this the future home for your business today!
• Carpet & LVP Flooring. Drop Ceiling Throughout.
• 3 Total Restrooms (1 with Shower + 2 with Passthrough Windows to Lab).
• Remaining FF&E Included.
• 10 Asphalt Paved/Striped Parking Spaces.
• Utilities: City Water/Sewer, FPL Electric.
• New Roof 2025. Hot Water Heater 2024. HVAC 2022. Electric Panel 2023.
• Do not Disturb Tenant. Property Delivered Vacant at Closing.
• Conveniently positioned within walking distance to the Health First Holmes Regional Medical Center, and the rest of the Melbourne medical community! Downtown Melbourne, the Melbourne Square Mall, and the Melbourne International Airport are a short drive away. Lots of shopping, dining, schools, and employers nearby. Make this the future home for your business today!
Taxes & Operating Expenses (Actual - 2026) Click Here to Access |
Annual (CAD) | Annual Per SF (CAD) |
|---|---|---|
| Taxes |
-
|
-
|
| Operating Expenses |
-
|
-
|
| Total Expenses |
$99,999
|
$9.99
|
Taxes & Operating Expenses (Actual - 2026) Click Here to Access
| Taxes (CAD) | |
|---|---|
| Annual | - |
| Annual Per SF | - |
| Operating Expenses (CAD) | |
|---|---|
| Annual | - |
| Annual Per SF | - |
| Total Expenses (CAD) | |
|---|---|
| Annual | $99,999 |
| Annual Per SF | $9.99 |
Property Facts
Sale Type
Owner User
Property Type
Office
Property Subtype
Medical
Building Size
2,004 SF
Building Class
B
Year Built
1976
Price
$953,874 CAD
Price Per SF
$475.98 CAD
Tenancy
Single
Building Height
1 Story
Typical Floor Size
2,004 SF
Building FAR
0.16
Lot Size
0.28 AC
Opportunity Zone
Yes
Zoning
RP - City of Melbourne Residential Professional (R-P)
Parking
10 Spaces (4.99 Spaces per 1,000 SF Leased)
Amenities
- 24 Hour Access
- Signage
- Reception
- Air Conditioning
1 1
Moderately walkable
60/100
Moderately drivable
60/100
Limited public transit
30/100
Moderately bikeable
60/100
Property Taxes
| Parcel Number | 27-37-34-51-00000.0-0336.00 | Improvements Assessment | $0 CAD (2025) |
| Land Assessment | $0 CAD (2025) | Total Assessment | $493,668 CAD (2025) |
Property Taxes
Parcel Number
27-37-34-51-00000.0-0336.00
Land Assessment
$0 CAD (2025)
Improvements Assessment
$0 CAD (2025)
Total Assessment
$493,668 CAD (2025)
1 of 15
Videos
Matterport 3D Exterior
Matterport 3D Tour
Photos
Street View
Street
Map
1 of 1
Presented by
Walking Distance to Holmes Hospital | 1405 Pine St
Already a member? Log In
Hmm, there seems to have been an error sending your message. Please try again.
Thanks! Your message was sent.
