Your email has been sent.
Park Highlights
- Brooklyn Navy Yard is a mission-driven industrial park serving as a manufacturing and innovation center along the Brooklyn waterfront.
- Businesses at The Yard are eligible for numerous economic development incentives, such as tax credits and potential energy cost savings.
- Join a diverse and vibrant community with a robust roster of more than 450 businesses, over 11,000 employees, and best-in-class amenities.
- Conveniently access the 300-acre development via the NYC Waterway Ferry and four secured entrances for cars, trucks, bicycles, and pedestrians.
Park Facts
Features and Amenities
- 24 Hour Access
- Bus Line
- Commuter Rail
- Courtyard
- Fenced Lot
- Food Court
- Metro/Subway
- Property Manager on Site
- Waterfront
All Available Spaces(25)
Display Rental Rate as
- Space
- Size
- Term
- Rental Rate
- Space Use
- Build-Out
- Available
Unit Highlights • 27' slab-to-slab ceiling height • 400 amps, 120/208v, 3phase • Drive-in bay gate 18' H x 19' W • Loading dock gate 14' H x 12' W • Plumbing lines available • Massive windows
- 1 Drive Bay
- Natural Light
- 1 Loading Dock
| Space | Size | Term | Rental Rate | Space Use | Build-Out | Available |
| 1st Floor - 102 | 9,600 SF | Negotiable | Upon Request Upon Request Upon Request Upon Request | Industrial | Full Build-Out | Now |
Brooklyn Navy Yard - Building 5 - 1st Floor - 102
- Space
- Size
- Term
- Rental Rate
- Space Use
- Build-Out
- Available
Unit Highlights • Built office space • Private restroom • Offices, small conference room, and reception area • Ample closets and storage • Convenient first floor location • 60 Amps, 3 Phase
- Fully Built-Out as Standard Office
- 1 Conference Room
- Central Air Conditioning
- Office intensive layout
- Space is in Excellent Condition
- Private Restrooms
| Space | Size | Term | Rental Rate | Space Use | Build-Out | Available |
| 1st Floor, Ste 103 | 1,444 SF | Negotiable | Upon Request Upon Request Upon Request Upon Request | Office | Full Build-Out | Now |
Brooklyn Navy Yard - Building 27 - 1st Floor - Ste 103
- Space
- Size
- Term
- Rental Rate
- Space Use
- Build-Out
- Available
Unit Highlights • Ground floor food hall • Industrial kitchen appliances • Gas stove • 5 industrial sinks • Walk-in fridge • Storage area • Private bathroom • Slab to slab height 12" • 200 Amps 277/480v 3 phase • HVAC • Distributed electric
- Listed rate may not include certain utilities, building services and property expenses
- Located in Food Court
- Central Air Conditioning
- Fully Built-Out as a Fast Food Restaurant
- Space is in Excellent Condition
- Fits 3 - 8 People
Unit Highlights • Waterfront / Manhattan skyline views • New HVAC • Live load: 300 lbs / SF • Direct access to freight elevator across hall
Unit Highlights • New construction • 175 amps 120/208v 3 phase • Liveload250 lbs/SF • Easy access to freight elevator • Build-out offices • Kitchenette • Distributed electric Available Immediately. THE BNY DIFFERENCE • A 300-acre manufacturing, tech, and creative hub • Future-focused business ecosystem • Business & workforce development services • Ardent supporter of MWBE businesses • Economic development incentives YARD AMENITIES • Robust event & exhibition programming • Extensive B2B networking opportunities • Space rentable for conferences and pop-ups • Wegmans, a food hall, a brewery, and a distillery • On-site parking for employees and guests • EV charging stations • A brand-new City MD Urgent Care GE TTING HERE • Best-in-class shuttle to/from BK mass transit hubs, serving 13 subway lines • Near FiDi, DUMBO, Williamsburg, Fort Greene, and Clinton Hill • NYC Waterway Ferry stop on-site • Four secure Yard entrances for cars, trucks, bicycles, and pedestrians • Multiple Citibike stations in and around the Yard
Unit Highlights • L-shaped space • Built out workspace areas • 125 A, 3ph,120/208 V • Distributed AC; 10-ton DX unit • Easy access to freight elevator
- Finished Ceilings: 10’
- Central Air Conditioning
Unit Highlights • 125 Amp, 208 V, 3phase • HVAC • Easy access to freight elevator • Distributed Electric
- Mostly Open Floor Plan Layout
Unit Highlights •Efficient L-shaped space •Water/sewer lines •Distributed electric •Located near freight elevator •125 Amps, 3 Phase •HVAC •Great natural light
- Mostly Open Floor Plan Layout
- Natural Light
- Central Air Conditioning
| Space | Size | Term | Rental Rate | Space Use | Build-Out | Available |
| 1st Floor, Ste 108 | 1,277 SF | Negotiable | Upon Request Upon Request Upon Request Upon Request | Retail | Full Build-Out | Now |
| 4th Floor - 402 | 8,289 SF | Negotiable | Upon Request Upon Request Upon Request Upon Request | Flex | Partial Build-Out | Now |
| 5th Floor, Ste 506 | 5,482 SF | Negotiable | Upon Request Upon Request Upon Request Upon Request | Office | Full Build-Out | Now |
| 6th Floor, Ste 603 | 3,962 SF | Negotiable | Upon Request Upon Request Upon Request Upon Request | Office | Full Build-Out | Now |
| 6th Floor, Ste 607 | 2,942 SF | Negotiable | Upon Request Upon Request Upon Request Upon Request | Office | Shell Space | Now |
| 7th Floor, Ste 703 | 3,962 SF | Negotiable | Upon Request Upon Request Upon Request Upon Request | Office | Shell Space | Now |
Brooklyn Navy Yard - Building 77 - 1st Floor - Ste 108
Brooklyn Navy Yard - Building 77 - 4th Floor - 402
Brooklyn Navy Yard - Building 77 - 5th Floor - Ste 506
Brooklyn Navy Yard - Building 77 - 6th Floor - Ste 603
Brooklyn Navy Yard - Building 77 - 6th Floor - Ste 607
Brooklyn Navy Yard - Building 77 - 7th Floor - Ste 703
- Space
- Size
- Term
- Rental Rate
- Space Use
- Build-Out
- Available
55,000 SF available Q1, 2027. THE BNY DIFFERENCE • A 300-acre manufacturing, tech, and creative hub • Future-focused business ecosystem • Business & workforce development services • Ardent supporter of MWBE businesses • Economic development incentives YARD AMENITIES • Robust event & exhibition programming • Extensive B2B networking opportunities • Space rentable for conferences and pop-ups • Wegmans, a food hall, a brewery, and a distillery • On-site parking for employees and guests • EV charging stations • A brand-new City MD Urgent Care GE TTING HERE • Best-in-class shuttle to/from BK mass transit hubs, serving 13 subway lines • Near FiDi, DUMBO, Williamsburg, Fort Greene, and Clinton Hill • NYC Waterway Ferry stop on-site • Four secure Yard entrances for cars, trucks, bicycles, and pedestrians • Multiple Citibike stations in and around the Yard
| Space | Size | Term | Rental Rate | Space Use | Build-Out | Available |
| 1st Floor - Entire | 55,000 SF | Negotiable | Upon Request Upon Request Upon Request Upon Request | Industrial | - | 2027-01-01 |
Brooklyn Navy Yard - Building 12 - 1st Floor - Entire
- Space
- Size
- Term
- Rental Rate
- Space Use
- Build-Out
- Available
Unit Highlights • New construction • Natural light • Soaring 15' ceiling • 100 amps 120/208v 3 phase • Distributed electrical and HVAC
Unit Highlights • New construction • River and city views • Soaring 15' ceiling • 100 amps 120/208v 3 phase • Distributed electrical and HVAC • Kitchenette
- Open Floor Plan Layout
- Kitchen
- Central Air Conditioning
- Natural Light
Unit Highlights • New construction • Great Natural Light • Soaring 15' ceiling • 100 amps 120/208v 3 phase • Built-out offices • Distributed electrical and HVAC
- Fully Built-Out as Standard Office
- Central Air Conditioning
- Natural Light
- Open Floor Plan Layout
- High Ceilings
Unit Highlights • Gorgeous turn-key office • Soaring 16' ceiling • Offices, conference room, reception, and storage areas • Kitchenette with sink • Distributed electric and HVAC • 200 Amps, 3 Phase
- Fully Built-Out as Standard Office
| Space | Size | Term | Rental Rate | Space Use | Build-Out | Available |
| 2nd Floor - 208 | 3,856 SF | Negotiable | Upon Request Upon Request Upon Request Upon Request | Flex | - | 2026-05-01 |
| 4th Floor, Ste 401 | 3,250 SF | Negotiable | Upon Request Upon Request Upon Request Upon Request | Office | Shell Space | Now |
| 4th Floor, Ste 402 | 4,002 SF | Negotiable | Upon Request Upon Request Upon Request Upon Request | Office | Full Build-Out | Now |
| 5th Floor, Ste 507 & 508 | 7,349 SF | Negotiable | Upon Request Upon Request Upon Request Upon Request | Office | Full Build-Out | Now |
Brooklyn Navy Yard - Building 212 - 2nd Floor - 208
Brooklyn Navy Yard - Building 212 - 4th Floor - Ste 401
Brooklyn Navy Yard - Building 212 - 4th Floor - Ste 402
Brooklyn Navy Yard - Building 212 - 5th Floor - Ste 507 & 508
- Space
- Size
- Term
- Rental Rate
- Space Use
- Build-Out
- Available
Unit Highlights • Private restroom in suite • 60 amps, 120/208V, single phase • Small enclosed kitchen • Three separated area • Ample closets and storage • Lots of windows and natural light
- Fully Built-Out as Standard Office
- Private Restrooms
- Open Floor Plan Layout
| Space | Size | Term | Rental Rate | Space Use | Build-Out | Available |
| 2nd Floor, Ste 2A | 962 SF | Negotiable | Upon Request Upon Request Upon Request Upon Request | Office | Full Build-Out | Now |
Brooklyn Navy Yard - Building 58 - 2nd Floor - Ste 2A
- Space
- Size
- Term
- Rental Rate
- Space Use
- Build-Out
- Available
Unit Highlights • New white box renovation • 40' ceiling; 20' to truss • 800 A, 120/208 V, 3-Ph • New chilled water HVAC, air handlers, and MER w/ dedicated power supply • Finned tube hot water radiant heat • New oversized operable windows • Modern bathrooms • New elevator w/ in-suite access • Live load: 150 psf
- Listed rate may not include certain utilities, building services and property expenses
- Open Floor Plan Layout
- Central Air Conditioning
- Perfectly suited for office/gallery/showroom uses
- Fully Built-Out as Standard Office
- Finished Ceilings: 40’
- Located in-line with other retail
| Space | Size | Term | Rental Rate | Space Use | Build-Out | Available |
| 3rd Floor, Ste 301 | 13,900 SF | Negotiable | Upon Request Upon Request Upon Request Upon Request | Office/Retail | Full Build-Out | Now |
Brooklyn Navy Yard - Building 127 - 3rd Floor - Ste 301
- Space
- Size
- Term
- Rental Rate
- Space Use
- Build-Out
- Available
Unit Highlights • Built out offices, bathroom • Distributed electric • 100 amp; 208v, 3phase • Kichenette • 11ft ceiling • Next to freight and passenger elevators • Great light and views • Live load: 150 lbs/SF
- Fits 7 - 22 People
Unit Highlights • Live Load: 150 lbs/SF • Plumbing installed: Multi station lab sink • Distributed electric • 200 amps, 208 V, 3 phase • Private restroom • Two separate entrances
- Finished Ceilings: 14’
Unit Highlights • Private bathroom • Kitchenette • 14 ft ceilings • Distributed electric • Live load: 150lbs/SF • 200 amps, 208 V, 3 phase
- Fits 10 - 32 People
| Space | Size | Term | Rental Rate | Space Use | Build-Out | Available |
| 4th Floor - 411 | 2,696 SF | Negotiable | Upon Request Upon Request Upon Request Upon Request | Flex | Shell Space | Now |
| 8th Floor - 814 | 6,000 SF | Negotiable | Upon Request Upon Request Upon Request Upon Request | Industrial | Shell Space | Now |
| 8th Floor - 819 | 4,000 SF | Negotiable | Upon Request Upon Request Upon Request Upon Request | Industrial | Shell Space | Now |
Brooklyn Navy Yard - Building 280 - 4th Floor - 411
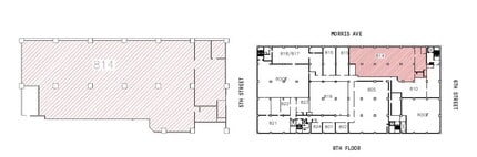
Brooklyn Navy Yard - Building 280 - 8th Floor - 814
Brooklyn Navy Yard - Building 280 - 8th Floor - 819
- Space
- Size
- Term
- Rental Rate
- Space Use
- Build-Out
- Available
Unit Highlights •Private access to two freight elevators • Men’s and Women’s restrooms in suite • Kitchenette • Two separate 100 Amp electric services (240v/3ph, 120v/3ph)
Unit Highlights • Two separate entrances • Built office and storage areas • Distributed electric • Located near passenger elevator • 200 Amps, 3 Phase
- Fits 8 - 24 People
Unit Highlights • In-unit freight access • Corner unit; windows on two sides • Slab-to-slab height: 10’+ • Live Load 250 lbs / SF • 100AMP, 3 Phase, 208/120V
Unit Highlights • Easy access to freight elevator • 100 amps • Slab-to-slab height: 10’+ • Live Load 250 lbs / SF • Newly white-boxed space
- Fits 13 - 42 People
Unit Highlights • Distributed electric • 100 Amps, 3 Phase, 120/208V • Located near freight elevator • Live load 250 lbs/SF
| Space | Size | Term | Rental Rate | Space Use | Build-Out | Available |
| 6th Floor - 601 | 18,790 SF | Negotiable | Upon Request Upon Request Upon Request Upon Request | Industrial | Full Build-Out | Now |
| 6th Floor - 604 | 2,880 SF | Negotiable | Upon Request Upon Request Upon Request Upon Request | Flex | Shell Space | Now |
| 6th Floor - 605 | 16,370 SF | Negotiable | Upon Request Upon Request Upon Request Upon Request | Flex | - | Now |
| 7th Floor - 704 | 5,200 SF | Negotiable | Upon Request Upon Request Upon Request Upon Request | Industrial | Shell Space | Now |
| 10th Floor - 1009 | 3,400 SF | 3-5 Years | Upon Request Upon Request Upon Request Upon Request | Flex | - | Now |
Brooklyn Navy Yard - Building 3 - 6th Floor - 601
Brooklyn Navy Yard - Building 3 - 6th Floor - 604
Brooklyn Navy Yard - Building 3 - 6th Floor - 605
Brooklyn Navy Yard - Building 3 - 7th Floor - 704
Brooklyn Navy Yard - Building 3 - 10th Floor - 1009
- Space
- Size
- Term
- Rental Rate
- Space Use
- Build-Out
- Available
Unit Highlights • Built out Lab/ Office • Natural light & City views • Slab to slab height 14" • 200 Amps 120/208v 3 phase • Distributed electric • Conference room and offices • Lab area and sinks • Kitchenette
- Space is in Excellent Condition
Unit Highlights • New construction • Full floor divisible • Abundant natural light • Slab-to-slab height: 14'+ • Live load: 125 lbs / SF • Exceptional city and water views • Private bathrooms • Shaft space available for ventilation • 1200 amps, 120/208v, 3 phase
- Laboratory
- Finished Ceilings: 14’
| Space | Size | Term | Rental Rate | Space Use | Build-Out | Available |
| 6th Floor, Ste 601 | 4,595 SF | Negotiable | Upon Request Upon Request Upon Request Upon Request | Office | Full Build-Out | 2026-05-01 |
| 9th Floor - Full Floor | 12,000-50,000 SF | Negotiable | Upon Request Upon Request Upon Request Upon Request | Flex | Partial Build-Out | Now |
Brooklyn Navy Yard - Building 303 - 6th Floor - Ste 601
Brooklyn Navy Yard - Building 303 - 9th Floor - Full Floor
Brooklyn Navy Yard - Building 5 - 1st Floor - 102
| Size | 9,600 SF |
| Term | Negotiable |
| Rental Rate | Upon Request |
| Space Use | Industrial |
| Build-Out | Full Build-Out |
| Available | Now |
Unit Highlights • 27' slab-to-slab ceiling height • 400 amps, 120/208v, 3phase • Drive-in bay gate 18' H x 19' W • Loading dock gate 14' H x 12' W • Plumbing lines available • Massive windows
- 1 Drive Bay
- 1 Loading Dock
- Natural Light
Brooklyn Navy Yard - Building 27 - 1st Floor - Ste 103
| Size | 1,444 SF |
| Term | Negotiable |
| Rental Rate | Upon Request |
| Space Use | Office |
| Build-Out | Full Build-Out |
| Available | Now |
Unit Highlights • Built office space • Private restroom • Offices, small conference room, and reception area • Ample closets and storage • Convenient first floor location • 60 Amps, 3 Phase
- Fully Built-Out as Standard Office
- Office intensive layout
- 1 Conference Room
- Space is in Excellent Condition
- Central Air Conditioning
- Private Restrooms
Brooklyn Navy Yard - Building 77 - 1st Floor - Ste 108
| Size | 1,277 SF |
| Term | Negotiable |
| Rental Rate | Upon Request |
| Space Use | Retail |
| Build-Out | Full Build-Out |
| Available | Now |
Unit Highlights • Ground floor food hall • Industrial kitchen appliances • Gas stove • 5 industrial sinks • Walk-in fridge • Storage area • Private bathroom • Slab to slab height 12" • 200 Amps 277/480v 3 phase • HVAC • Distributed electric
- Listed rate may not include certain utilities, building services and property expenses
- Fully Built-Out as a Fast Food Restaurant
- Located in Food Court
- Space is in Excellent Condition
- Central Air Conditioning
- Fits 3 - 8 People
Brooklyn Navy Yard - Building 77 - 4th Floor - 402
| Size | 8,289 SF |
| Term | Negotiable |
| Rental Rate | Upon Request |
| Space Use | Flex |
| Build-Out | Partial Build-Out |
| Available | Now |
Unit Highlights • Waterfront / Manhattan skyline views • New HVAC • Live load: 300 lbs / SF • Direct access to freight elevator across hall
Brooklyn Navy Yard - Building 77 - 5th Floor - Ste 506
| Size | 5,482 SF |
| Term | Negotiable |
| Rental Rate | Upon Request |
| Space Use | Office |
| Build-Out | Full Build-Out |
| Available | Now |
Unit Highlights • New construction • 175 amps 120/208v 3 phase • Liveload250 lbs/SF • Easy access to freight elevator • Build-out offices • Kitchenette • Distributed electric Available Immediately. THE BNY DIFFERENCE • A 300-acre manufacturing, tech, and creative hub • Future-focused business ecosystem • Business & workforce development services • Ardent supporter of MWBE businesses • Economic development incentives YARD AMENITIES • Robust event & exhibition programming • Extensive B2B networking opportunities • Space rentable for conferences and pop-ups • Wegmans, a food hall, a brewery, and a distillery • On-site parking for employees and guests • EV charging stations • A brand-new City MD Urgent Care GE TTING HERE • Best-in-class shuttle to/from BK mass transit hubs, serving 13 subway lines • Near FiDi, DUMBO, Williamsburg, Fort Greene, and Clinton Hill • NYC Waterway Ferry stop on-site • Four secure Yard entrances for cars, trucks, bicycles, and pedestrians • Multiple Citibike stations in and around the Yard
Brooklyn Navy Yard - Building 77 - 6th Floor - Ste 603
| Size | 3,962 SF |
| Term | Negotiable |
| Rental Rate | Upon Request |
| Space Use | Office |
| Build-Out | Full Build-Out |
| Available | Now |
Unit Highlights • L-shaped space • Built out workspace areas • 125 A, 3ph,120/208 V • Distributed AC; 10-ton DX unit • Easy access to freight elevator
- Finished Ceilings: 10’
- Central Air Conditioning
Brooklyn Navy Yard - Building 77 - 6th Floor - Ste 607
| Size | 2,942 SF |
| Term | Negotiable |
| Rental Rate | Upon Request |
| Space Use | Office |
| Build-Out | Shell Space |
| Available | Now |
Unit Highlights • 125 Amp, 208 V, 3phase • HVAC • Easy access to freight elevator • Distributed Electric
- Mostly Open Floor Plan Layout
Brooklyn Navy Yard - Building 77 - 7th Floor - Ste 703
| Size | 3,962 SF |
| Term | Negotiable |
| Rental Rate | Upon Request |
| Space Use | Office |
| Build-Out | Shell Space |
| Available | Now |
Unit Highlights •Efficient L-shaped space •Water/sewer lines •Distributed electric •Located near freight elevator •125 Amps, 3 Phase •HVAC •Great natural light
- Mostly Open Floor Plan Layout
- Central Air Conditioning
- Natural Light
Brooklyn Navy Yard - Building 12 - 1st Floor - Entire
| Size | 55,000 SF |
| Term | Negotiable |
| Rental Rate | Upon Request |
| Space Use | Industrial |
| Build-Out | - |
| Available | 2027-01-01 |
55,000 SF available Q1, 2027. THE BNY DIFFERENCE • A 300-acre manufacturing, tech, and creative hub • Future-focused business ecosystem • Business & workforce development services • Ardent supporter of MWBE businesses • Economic development incentives YARD AMENITIES • Robust event & exhibition programming • Extensive B2B networking opportunities • Space rentable for conferences and pop-ups • Wegmans, a food hall, a brewery, and a distillery • On-site parking for employees and guests • EV charging stations • A brand-new City MD Urgent Care GE TTING HERE • Best-in-class shuttle to/from BK mass transit hubs, serving 13 subway lines • Near FiDi, DUMBO, Williamsburg, Fort Greene, and Clinton Hill • NYC Waterway Ferry stop on-site • Four secure Yard entrances for cars, trucks, bicycles, and pedestrians • Multiple Citibike stations in and around the Yard
Brooklyn Navy Yard - Building 212 - 2nd Floor - 208
| Size | 3,856 SF |
| Term | Negotiable |
| Rental Rate | Upon Request |
| Space Use | Flex |
| Build-Out | - |
| Available | 2026-05-01 |
Unit Highlights • New construction • Natural light • Soaring 15' ceiling • 100 amps 120/208v 3 phase • Distributed electrical and HVAC
Brooklyn Navy Yard - Building 212 - 4th Floor - Ste 401
| Size | 3,250 SF |
| Term | Negotiable |
| Rental Rate | Upon Request |
| Space Use | Office |
| Build-Out | Shell Space |
| Available | Now |
Unit Highlights • New construction • River and city views • Soaring 15' ceiling • 100 amps 120/208v 3 phase • Distributed electrical and HVAC • Kitchenette
- Open Floor Plan Layout
- Central Air Conditioning
- Kitchen
- Natural Light
Brooklyn Navy Yard - Building 212 - 4th Floor - Ste 402
| Size | 4,002 SF |
| Term | Negotiable |
| Rental Rate | Upon Request |
| Space Use | Office |
| Build-Out | Full Build-Out |
| Available | Now |
Unit Highlights • New construction • Great Natural Light • Soaring 15' ceiling • 100 amps 120/208v 3 phase • Built-out offices • Distributed electrical and HVAC
- Fully Built-Out as Standard Office
- Open Floor Plan Layout
- Central Air Conditioning
- High Ceilings
- Natural Light
Brooklyn Navy Yard - Building 212 - 5th Floor - Ste 507 & 508
| Size | 7,349 SF |
| Term | Negotiable |
| Rental Rate | Upon Request |
| Space Use | Office |
| Build-Out | Full Build-Out |
| Available | Now |
Unit Highlights • Gorgeous turn-key office • Soaring 16' ceiling • Offices, conference room, reception, and storage areas • Kitchenette with sink • Distributed electric and HVAC • 200 Amps, 3 Phase
- Fully Built-Out as Standard Office
Brooklyn Navy Yard - Building 58 - 2nd Floor - Ste 2A
| Size | 962 SF |
| Term | Negotiable |
| Rental Rate | Upon Request |
| Space Use | Office |
| Build-Out | Full Build-Out |
| Available | Now |
Unit Highlights • Private restroom in suite • 60 amps, 120/208V, single phase • Small enclosed kitchen • Three separated area • Ample closets and storage • Lots of windows and natural light
- Fully Built-Out as Standard Office
- Open Floor Plan Layout
- Private Restrooms
Brooklyn Navy Yard - Building 127 - 3rd Floor - Ste 301
| Size | 13,900 SF |
| Term | Negotiable |
| Rental Rate | Upon Request |
| Space Use | Office/Retail |
| Build-Out | Full Build-Out |
| Available | Now |
Unit Highlights • New white box renovation • 40' ceiling; 20' to truss • 800 A, 120/208 V, 3-Ph • New chilled water HVAC, air handlers, and MER w/ dedicated power supply • Finned tube hot water radiant heat • New oversized operable windows • Modern bathrooms • New elevator w/ in-suite access • Live load: 150 psf
- Listed rate may not include certain utilities, building services and property expenses
- Fully Built-Out as Standard Office
- Open Floor Plan Layout
- Finished Ceilings: 40’
- Central Air Conditioning
- Located in-line with other retail
- Perfectly suited for office/gallery/showroom uses
Brooklyn Navy Yard - Building 280 - 4th Floor - 411
| Size | 2,696 SF |
| Term | Negotiable |
| Rental Rate | Upon Request |
| Space Use | Flex |
| Build-Out | Shell Space |
| Available | Now |
Unit Highlights • Built out offices, bathroom • Distributed electric • 100 amp; 208v, 3phase • Kichenette • 11ft ceiling • Next to freight and passenger elevators • Great light and views • Live load: 150 lbs/SF
- Fits 7 - 22 People
Brooklyn Navy Yard - Building 280 - 8th Floor - 814
| Size | 6,000 SF |
| Term | Negotiable |
| Rental Rate | Upon Request |
| Space Use | Industrial |
| Build-Out | Shell Space |
| Available | Now |
Unit Highlights • Live Load: 150 lbs/SF • Plumbing installed: Multi station lab sink • Distributed electric • 200 amps, 208 V, 3 phase • Private restroom • Two separate entrances
- Finished Ceilings: 14’
Brooklyn Navy Yard - Building 280 - 8th Floor - 819
| Size | 4,000 SF |
| Term | Negotiable |
| Rental Rate | Upon Request |
| Space Use | Industrial |
| Build-Out | Shell Space |
| Available | Now |
Unit Highlights • Private bathroom • Kitchenette • 14 ft ceilings • Distributed electric • Live load: 150lbs/SF • 200 amps, 208 V, 3 phase
- Fits 10 - 32 People
Brooklyn Navy Yard - Building 3 - 6th Floor - 601
| Size | 18,790 SF |
| Term | Negotiable |
| Rental Rate | Upon Request |
| Space Use | Industrial |
| Build-Out | Full Build-Out |
| Available | Now |
Unit Highlights •Private access to two freight elevators • Men’s and Women’s restrooms in suite • Kitchenette • Two separate 100 Amp electric services (240v/3ph, 120v/3ph)
Brooklyn Navy Yard - Building 3 - 6th Floor - 604
| Size | 2,880 SF |
| Term | Negotiable |
| Rental Rate | Upon Request |
| Space Use | Flex |
| Build-Out | Shell Space |
| Available | Now |
Unit Highlights • Two separate entrances • Built office and storage areas • Distributed electric • Located near passenger elevator • 200 Amps, 3 Phase
- Fits 8 - 24 People
Brooklyn Navy Yard - Building 3 - 6th Floor - 605
| Size | 16,370 SF |
| Term | Negotiable |
| Rental Rate | Upon Request |
| Space Use | Flex |
| Build-Out | - |
| Available | Now |
Unit Highlights • In-unit freight access • Corner unit; windows on two sides • Slab-to-slab height: 10’+ • Live Load 250 lbs / SF • 100AMP, 3 Phase, 208/120V
Brooklyn Navy Yard - Building 3 - 7th Floor - 704
| Size | 5,200 SF |
| Term | Negotiable |
| Rental Rate | Upon Request |
| Space Use | Industrial |
| Build-Out | Shell Space |
| Available | Now |
Unit Highlights • Easy access to freight elevator • 100 amps • Slab-to-slab height: 10’+ • Live Load 250 lbs / SF • Newly white-boxed space
- Fits 13 - 42 People
Brooklyn Navy Yard - Building 3 - 10th Floor - 1009
| Size | 3,400 SF |
| Term | 3-5 Years |
| Rental Rate | Upon Request |
| Space Use | Flex |
| Build-Out | - |
| Available | Now |
Unit Highlights • Distributed electric • 100 Amps, 3 Phase, 120/208V • Located near freight elevator • Live load 250 lbs/SF
Brooklyn Navy Yard - Building 303 - 6th Floor - Ste 601
| Size | 4,595 SF |
| Term | Negotiable |
| Rental Rate | Upon Request |
| Space Use | Office |
| Build-Out | Full Build-Out |
| Available | 2026-05-01 |
Unit Highlights • Built out Lab/ Office • Natural light & City views • Slab to slab height 14" • 200 Amps 120/208v 3 phase • Distributed electric • Conference room and offices • Lab area and sinks • Kitchenette
- Space is in Excellent Condition
Brooklyn Navy Yard - Building 303 - 9th Floor - Full Floor
| Size | 12,000-50,000 SF |
| Term | Negotiable |
| Rental Rate | Upon Request |
| Space Use | Flex |
| Build-Out | Partial Build-Out |
| Available | Now |
Unit Highlights • New construction • Full floor divisible • Abundant natural light • Slab-to-slab height: 14'+ • Live load: 125 lbs / SF • Exceptional city and water views • Private bathrooms • Shaft space available for ventilation • 1200 amps, 120/208v, 3 phase
- Laboratory
- Finished Ceilings: 14’
Matterport 3D Tours
Park Overview
The Brooklyn Navy Yard (The Yard) is a manufacturing and workforce innovation center on 300 acres along Brooklyn’s waterfront. This mission-driven industrial park is a nationally acclaimed model of the viability and positive impact of modern, urban industrial development. The Yard is home to over 450 businesses, employing more than 11,000 people and generating over $2.5 billion annually in economic impact for the city. Leasing at The Yard provides numerous benefits and amenities, including access to a diverse and vibrant business community that offers collaborative opportunities, an on-site property management team, and a business support services team to help tenants expand and grow. A 60,000-square-foot public food hub and exhibition center can be used for tenant showcases and public programming opportunities. Plus, businesses at The Yard are eligible for compelling economic development incentives such as Qualified Opportunity Zone tax benefits, real estate tax exemptions, potential income tax credits available through the Relocation and Employment Assistance (REAP) Program, and energy cost savings through the Energy Cost Savings Program (ECSP). Situated near FiDi, DUMBO, Williamsburg, Fort Greene, and Clinton Hill, The Yard is more accessible than ever. Utilize a best-in-class shuttle to reach mass transit hubs, serving 13 subway lines. An NYC Waterway Ferry stop is on-site, and multiple Citi Bike stations are in and around the development. The Yard was once the nation's most storied naval shipbuilding facility, For over 150 years, it built and launched America's most famous battleships, including the USS Maine, USS Arizona, and USS Missouri. The Yard continues to honor and preserve this rich history through its public programming and continued commitment to manufacturing and innovation.
Park Brochure
About North Brooklyn
North Brooklyn’s resurgence in residential, office, and retail development has transformed the area’s industrial zones. With the conversion of older industrial stock to other uses, inventory of industrial space has decreased by around 6 million square feet in the past 10 years. This has occurred particularly along the Williamsburg and Greenpoint waterfront. For example, Brooklyn Navy Yard, a former ship building facility, and the Domino Sugar Factory have both been converted into mixed-use office space. Brooklyn is the most populated NYC borough, and the area also benefits from quick access to both LaGuardia and JFK airports.
Industrial occupiers vary greatly, as expected in a densely populated area within the largest metropolitan area in the U.S. Industrial property has benefited from the growth of e-commerce and the need for logistics space in densely populated areas, as evidenced by FedEx’s large presence here. Netflix is also one of the largest tenants in this part of Brooklyn, opening facilities here in 2019.
Despite a desirable location and strong fundamentals, new construction activity has been very light primarily due to land availability and the aforementioned conversion activity.
Demographics
Regional Accessibility
Nearby Amenities
Restaurants |
|||
|---|---|---|---|
| Pizza Yard | Pizza | $ | 0 min walk |
| Hungry House | American | - | 0 min walk |
Retail |
||
|---|---|---|
| CrossFit | Fitness | 7 min walk |
| Chase Bank | Bank | 8 min walk |
| Wegmans | Supermarket | 10 min walk |
Hotels |
|
|---|---|
| Marriott |
666 rooms
5 min drive
|
| Sheraton Hotel |
321 rooms
5 min drive
|
About the Owner
About the Architect
Other Properties in the Beyer Blinder Belle Portfolio
Presented by
Brooklyn Navy Yard | Brooklyn, NY 11205
Hmm, there seems to have been an error sending your message. Please try again.
Thanks! Your message was sent.



































































