Log In/Sign Up
Your email has been sent.
Price Reduced! Freestanding Industrial w/Dock 141 N Gibson Rd 13,140 SF Industrial Building Henderson, NV 89014 $5,399,397 CAD ($410.91 CAD/SF)



Investment Highlights
- +/- 13,140 TSF Freestanding Office/Warehouse Building
- Fire Sprinklered
- +/- 24' Clear Height
- Dock & Grade Loading
- 600+ Amps 277/480V 3 Phase Power
- Immediate I-215 Access @ Gibson Rd.
Executive Summary
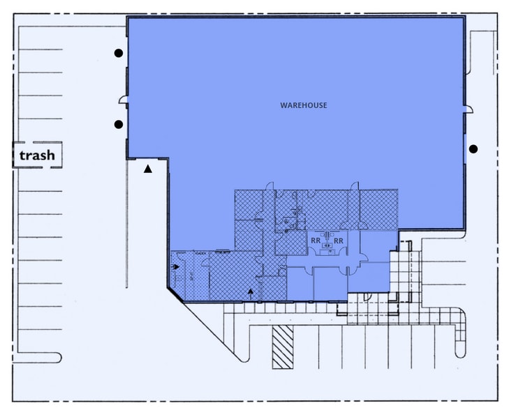
For sale is a +/- 13,140 TSF freestanding office/warehouse building in the Henderson submarket. The building features +/- 2,925 SF of office, +/- 10,215 SF of warehouse, one (1) dock loading door, three (3) grade level doors, 600+ AMPS 277/480V 3 Phase Power .
See marketing brochure for more details
See marketing brochure for more details
Taxes & Operating Expenses (Actual - 2025) Click Here to Access |
Annual (CAD) | Annual Per SF (CAD) |
|---|---|---|
| Taxes |
-
|
-
|
| Operating Expenses |
-
|
-
|
| Total Expenses |
$99,999
|
$9.99
|
Taxes & Operating Expenses (Actual - 2025) Click Here to Access
| Taxes (CAD) | |
|---|---|
| Annual | - |
| Annual Per SF | - |
| Operating Expenses (CAD) | |
|---|---|
| Annual | - |
| Annual Per SF | - |
| Total Expenses (CAD) | |
|---|---|
| Annual | $99,999 |
| Annual Per SF | $9.99 |
Property Facts
Amenities
- Bus Line
- Signage
- Skylights
1 1
Fairly walkable
50/100
Exceptionally drivable
100/100
Limited public transit
30/100
Fairly bikeable
50/100
Property Taxes
| Parcel Number | 178-15-611-016 | Improvements Assessment | $463,302 CAD (2026) |
| Land Assessment | $265,011 CAD (2026) | Total Assessment | $728,314 CAD (2026) |
Property Taxes
Parcel Number
178-15-611-016
Land Assessment
$265,011 CAD (2026)
Improvements Assessment
$463,302 CAD (2026)
Total Assessment
$728,314 CAD (2026)
1 of 5
Videos
Matterport 3D Exterior
Matterport 3D Tour
Photos
Street View
Street
Map
1 of 1
Presented by
Price Reduced! Freestanding Industrial w/Dock | 141 N Gibson Rd
Already a member? Log In
Hmm, there seems to have been an error sending your message. Please try again.
Thanks! Your message was sent.
