Your email has been sent.
1414 W Fair Ave 1,490 - 18,659 SF of Office/Medical Space Available in Marquette, MI 49855



All Available Spaces(7)
Display Rental Rate as
- Space
- Size
- Term
- Rental Rate
- Space Use
- Build-Out
- Available
Suite #44 is a very nice 1,490 SQ FT suite. If more space is needed, you can expand into an adjacent room(s) and even connect to Suite #50 which is 1,675 SQ FT. See the included office diagram to get an idea of where this optional space is located. "An array of Business types are welcome". The Upper Peninsula Medical Center (UPMC) www.penmed.com offers a number of benefits which others do not. Some of these benefits include an on-site Surgery Center available for use; covered drop off entrances with heated walks; wheel chairs at each public entrance; on-site U.S. Postal Services; on-site UPS services; FedEx drop box; conveniently located with lots of available free parking; on-site New York Deli Café; we’re located on the City Bike Path; free conference room space; opportunity for patient referrals; Marq-Tran bus transportation makes routine stops throughout the day; common area break room with vending machines and microwave; 24/7 security; and we have an on-site maintenance staff. Please see the attached document for a full list of benefits to being located at the UPMC.
- Listed rate may not include certain utilities, building services and property expenses
- Mostly Open Floor Plan Layout
- Fully Built-Out as Standard Medical Space
- Ample parking
Suite #50 is a very nice, freshly painted 1,675 SQ FT, which includes a room with lead lined walls which can be used to take X-RAYS. If more space is needed, it may be possible to expand into an adjacent room(s) and even connect to Suite #44 which is 1,490 SQ FT. See the included office diagram to get an idea of where this optional space is located. "An array of Business types are welcome". The Upper Peninsula Medical Center (UPMC) www.penmed.com offers a number of benefits which others do not. Some of these benefits include an on-site Surgery Center available for use; covered drop off entrances with heated walks; wheel chairs at each public entrance; on-site U.S. Postal Services; on-site UPS services; FedEx drop box; conveniently located with lots of available free parking; on-site New York Deli Café; we’re located on the City Bike Path; free conference room space; opportunity for patient referrals; Marq-Tran bus transportation makes routine stops throughout the day; common area break room with vending machines and microwave; 24/7 security; and we have an on-site maintenance staff. Please see the attached document for a full list of benefits to being located at the UPMC.
- Fully Built-Out as Standard Medical Space
- Ample parking
- Mostly Open Floor Plan Layout
This is a very nice suite located on the first floor. It is centrally located with easy access from all three of our covered, public entrances. All entrances have wheel chairs available and physician directories. Most offices and exam rooms are along an outside wall with a nice view from their windows. "An array of Business types are welcome". The Upper Peninsula Medical Center (UPMC) www.penmed.com offers a number of benefits which others do not. Some of these benefits include an on-site Surgery Center available for use; covered drop off entrances with heated walks; wheel chairs at each public entrance; on-site U.S. Postal Services; on-site UPS services; FedEx drop box; conveniently located with lots of available free parking; on-site New York Deli Café; we’re located on the City Bike Path; free conference room space; opportunity for patient referrals; Marq-Tran bus transportation makes routine stops throughout the day; common area break room with vending machines and microwave; 24/7 security; and we have an on-site maintenance staff. Please see the attached document for a full list of benefits to being located at the UPMC.
- Fully Built-Out as Standard Medical Space
- Space is in Excellent Condition
- Office intensive layout
- Ample parking
Several other suites available for lease of various different sizes too! "An array of Business types are welcome". The Upper Peninsula Medical Center (UPMC) www.penmed.com offers a number of benefits which others do not. Some of these benefits include an on-site Surgery Center available for use; covered drop off entrances with heated walks; wheel chairs at each public entrance; on-site U.S. Postal Services; on-site UPS services; FedEx drop box; conveniently located with lots of available free parking; on-site New York Deli Café; we’re located on the City Bike Path; free conference room space; opportunity for patient referrals; Marq-Tran bus transportation makes routine stops throughout the day; common area break room with vending machines and microwave; 24/7 security; and we have an on-site maintenance staff. Please see the attached document for a full list of benefits to being located at the UPMC.
- Mostly Open Floor Plan Layout
- Reception Area
- Smoke Detector
- Conference Rooms
- Central Air and Heating
- Centrally located on the first floor.
Several other suites available for lease of various different sizes too! "An array of Business types are welcome". The Upper Peninsula Medical Center (UPMC) www.penmed.com offers a number of benefits which others do not. Some of these benefits include an on-site Surgery Center available for use; covered drop off entrances with heated walks; wheel chairs at each public entrance; on-site U.S. Postal Services; on-site UPS services; FedEx drop box; conveniently located with lots of available free parking; on-site New York Deli Café; we’re located on the City Bike Path; free conference room space; opportunity for patient referrals; Marq-Tran bus transportation makes routine stops throughout the day; common area break room with vending machines and microwave; 24/7 security; and we have an on-site maintenance staff. Please see the attached document for a full list of benefits to being located at the UPMC.
- Fully Built-Out as Standard Office
- Space is in Excellent Condition
- Mostly Open Floor Plan Layout
- Ample parking
Several other suites available for lease of various different sizes too! "An array of Business types are welcome". The Upper Peninsula Medical Center (UPMC) www.penmed.com offers a number of benefits which others do not. Some of these benefits include an on-site Surgery Center available for use; covered drop off entrances with heated walks; wheel chairs at each public entrance; on-site U.S. Postal Services; on-site UPS services; FedEx drop box; conveniently located with lots of available free parking; on-site New York Deli Café; we’re located on the City Bike Path; free conference room space; opportunity for patient referrals; Marq-Tran bus transportation makes routine stops throughout the day; common area break room with vending machines and microwave; 24/7 security; and we have an on-site maintenance staff. Please see the attached document for a full list of benefits to being located at the UPMC.
- Fully Built-Out as Standard Office
- Space is in Excellent Condition
- Mostly Open Floor Plan Layout
- Ample parking
2,163 SF of available RAW space adjacent to this suite to the West, which could be combined with this suite. There is also 1,200 SF of developed space to the East, which could also be combined with this suite. The suite has be recently refreshed and we will replace some of the flooring once we confirm with the new tenant on the type of flooring needed. The Upper Peninsula Medical Center (UPMC) www.penmed.com offers a number of benefits which others do not. Some of these benefits include an on-site Surgery Center available for use; covered drop off entrances with heated walks; wheel chairs at each public entrance; on-site U.S. Postal Services; on-site UPS services; FedEx drop box; conveniently located with lots of available free parking; on-site New York Deli Café; we’re located on the City Bike Path; free conference room space; opportunity for patient referrals; Marq-Tran bus transportation makes routine stops throughout the day; common area break room with vending machines and microwave; 24/7 security; and we have an on-site maintenance staff. Please see the attached document for a full list of benefits to being located at the UPMC.
- Fully Built-Out as Standard Office
- Space is in Excellent Condition
- Mostly Open Floor Plan Layout
- Nice suite, excellent location with a view.
| Space | Size | Term | Rental Rate | Space Use | Build-Out | Available |
| Lower Level, Ste 44 | 1,490 SF | Negotiable | Upon Request Upon Request Upon Request Upon Request | Office/Medical | Full Build-Out | Now |
| Lower Level, Ste 50 | 1,675 SF | Negotiable | Upon Request Upon Request Upon Request Upon Request | Office/Medical | Full Build-Out | Now |
| 1st Floor, Ste 119 | 2,604 SF | Negotiable | Upon Request Upon Request Upon Request Upon Request | Office/Medical | Full Build-Out | Now |
| 1st Floor, Ste 130 | 2,328 SF | Negotiable | Upon Request Upon Request Upon Request Upon Request | Office/Medical | Full Build-Out | Now |
| 1st Floor, Ste 149 | 6,113 SF | Negotiable | Upon Request Upon Request Upon Request Upon Request | Office/Medical | Full Build-Out | Now |
| 2nd Floor, Ste 216 | 1,700 SF | Negotiable | Upon Request Upon Request Upon Request Upon Request | Office/Medical | Full Build-Out | Now |
| 3rd Floor, Ste 342 | 2,749 SF | Negotiable | Upon Request Upon Request Upon Request Upon Request | Office/Medical | Full Build-Out | Now |
Lower Level, Ste 44
| Size |
| 1,490 SF |
| Term |
| Negotiable |
| Rental Rate |
| Upon Request Upon Request Upon Request Upon Request |
| Space Use |
| Office/Medical |
| Build-Out |
| Full Build-Out |
| Available |
| Now |
Lower Level, Ste 50
| Size |
| 1,675 SF |
| Term |
| Negotiable |
| Rental Rate |
| Upon Request Upon Request Upon Request Upon Request |
| Space Use |
| Office/Medical |
| Build-Out |
| Full Build-Out |
| Available |
| Now |
1st Floor, Ste 119
| Size |
| 2,604 SF |
| Term |
| Negotiable |
| Rental Rate |
| Upon Request Upon Request Upon Request Upon Request |
| Space Use |
| Office/Medical |
| Build-Out |
| Full Build-Out |
| Available |
| Now |
1st Floor, Ste 130
| Size |
| 2,328 SF |
| Term |
| Negotiable |
| Rental Rate |
| Upon Request Upon Request Upon Request Upon Request |
| Space Use |
| Office/Medical |
| Build-Out |
| Full Build-Out |
| Available |
| Now |
1st Floor, Ste 149
| Size |
| 6,113 SF |
| Term |
| Negotiable |
| Rental Rate |
| Upon Request Upon Request Upon Request Upon Request |
| Space Use |
| Office/Medical |
| Build-Out |
| Full Build-Out |
| Available |
| Now |
2nd Floor, Ste 216
| Size |
| 1,700 SF |
| Term |
| Negotiable |
| Rental Rate |
| Upon Request Upon Request Upon Request Upon Request |
| Space Use |
| Office/Medical |
| Build-Out |
| Full Build-Out |
| Available |
| Now |
3rd Floor, Ste 342
| Size |
| 2,749 SF |
| Term |
| Negotiable |
| Rental Rate |
| Upon Request Upon Request Upon Request Upon Request |
| Space Use |
| Office/Medical |
| Build-Out |
| Full Build-Out |
| Available |
| Now |
Lower Level, Ste 44
| Size | 1,490 SF |
| Term | Negotiable |
| Rental Rate | Upon Request |
| Space Use | Office/Medical |
| Build-Out | Full Build-Out |
| Available | Now |
Suite #44 is a very nice 1,490 SQ FT suite. If more space is needed, you can expand into an adjacent room(s) and even connect to Suite #50 which is 1,675 SQ FT. See the included office diagram to get an idea of where this optional space is located. "An array of Business types are welcome". The Upper Peninsula Medical Center (UPMC) www.penmed.com offers a number of benefits which others do not. Some of these benefits include an on-site Surgery Center available for use; covered drop off entrances with heated walks; wheel chairs at each public entrance; on-site U.S. Postal Services; on-site UPS services; FedEx drop box; conveniently located with lots of available free parking; on-site New York Deli Café; we’re located on the City Bike Path; free conference room space; opportunity for patient referrals; Marq-Tran bus transportation makes routine stops throughout the day; common area break room with vending machines and microwave; 24/7 security; and we have an on-site maintenance staff. Please see the attached document for a full list of benefits to being located at the UPMC.
- Listed rate may not include certain utilities, building services and property expenses
- Fully Built-Out as Standard Medical Space
- Mostly Open Floor Plan Layout
- Ample parking
Lower Level, Ste 50
| Size | 1,675 SF |
| Term | Negotiable |
| Rental Rate | Upon Request |
| Space Use | Office/Medical |
| Build-Out | Full Build-Out |
| Available | Now |
Suite #50 is a very nice, freshly painted 1,675 SQ FT, which includes a room with lead lined walls which can be used to take X-RAYS. If more space is needed, it may be possible to expand into an adjacent room(s) and even connect to Suite #44 which is 1,490 SQ FT. See the included office diagram to get an idea of where this optional space is located. "An array of Business types are welcome". The Upper Peninsula Medical Center (UPMC) www.penmed.com offers a number of benefits which others do not. Some of these benefits include an on-site Surgery Center available for use; covered drop off entrances with heated walks; wheel chairs at each public entrance; on-site U.S. Postal Services; on-site UPS services; FedEx drop box; conveniently located with lots of available free parking; on-site New York Deli Café; we’re located on the City Bike Path; free conference room space; opportunity for patient referrals; Marq-Tran bus transportation makes routine stops throughout the day; common area break room with vending machines and microwave; 24/7 security; and we have an on-site maintenance staff. Please see the attached document for a full list of benefits to being located at the UPMC.
- Fully Built-Out as Standard Medical Space
- Mostly Open Floor Plan Layout
- Ample parking
1st Floor, Ste 119
| Size | 2,604 SF |
| Term | Negotiable |
| Rental Rate | Upon Request |
| Space Use | Office/Medical |
| Build-Out | Full Build-Out |
| Available | Now |
This is a very nice suite located on the first floor. It is centrally located with easy access from all three of our covered, public entrances. All entrances have wheel chairs available and physician directories. Most offices and exam rooms are along an outside wall with a nice view from their windows. "An array of Business types are welcome". The Upper Peninsula Medical Center (UPMC) www.penmed.com offers a number of benefits which others do not. Some of these benefits include an on-site Surgery Center available for use; covered drop off entrances with heated walks; wheel chairs at each public entrance; on-site U.S. Postal Services; on-site UPS services; FedEx drop box; conveniently located with lots of available free parking; on-site New York Deli Café; we’re located on the City Bike Path; free conference room space; opportunity for patient referrals; Marq-Tran bus transportation makes routine stops throughout the day; common area break room with vending machines and microwave; 24/7 security; and we have an on-site maintenance staff. Please see the attached document for a full list of benefits to being located at the UPMC.
- Fully Built-Out as Standard Medical Space
- Office intensive layout
- Space is in Excellent Condition
- Ample parking
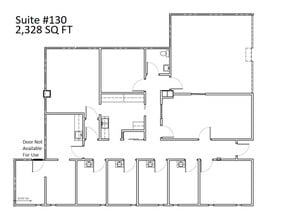
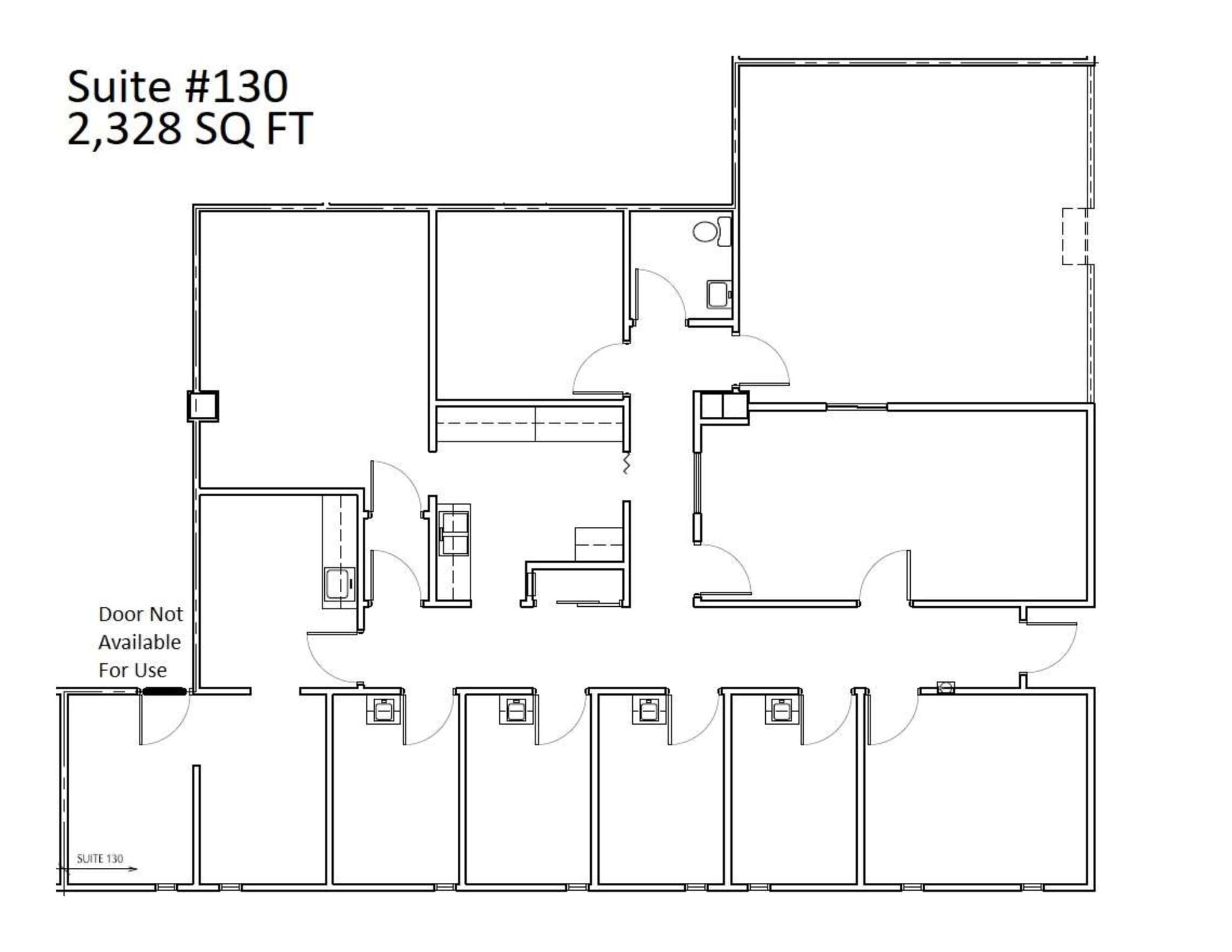
1st Floor, Ste 130
| Size | 2,328 SF |
| Term | Negotiable |
| Rental Rate | Upon Request |
| Space Use | Office/Medical |
| Build-Out | Full Build-Out |
| Available | Now |
Several other suites available for lease of various different sizes too! "An array of Business types are welcome". The Upper Peninsula Medical Center (UPMC) www.penmed.com offers a number of benefits which others do not. Some of these benefits include an on-site Surgery Center available for use; covered drop off entrances with heated walks; wheel chairs at each public entrance; on-site U.S. Postal Services; on-site UPS services; FedEx drop box; conveniently located with lots of available free parking; on-site New York Deli Café; we’re located on the City Bike Path; free conference room space; opportunity for patient referrals; Marq-Tran bus transportation makes routine stops throughout the day; common area break room with vending machines and microwave; 24/7 security; and we have an on-site maintenance staff. Please see the attached document for a full list of benefits to being located at the UPMC.
- Mostly Open Floor Plan Layout
- Conference Rooms
- Reception Area
- Central Air and Heating
- Smoke Detector
- Centrally located on the first floor.
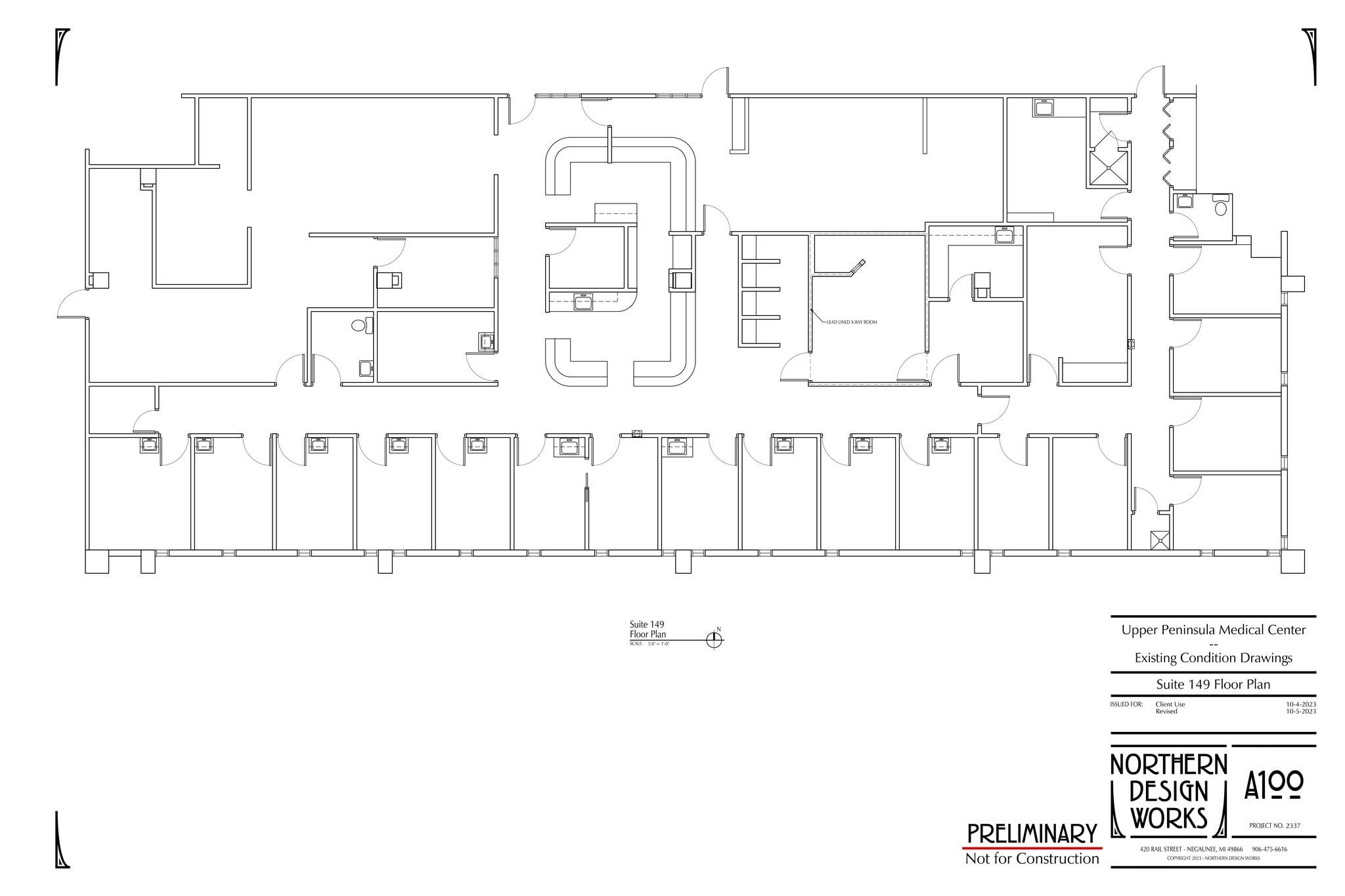
1st Floor, Ste 149
| Size | 6,113 SF |
| Term | Negotiable |
| Rental Rate | Upon Request |
| Space Use | Office/Medical |
| Build-Out | Full Build-Out |
| Available | Now |
Several other suites available for lease of various different sizes too! "An array of Business types are welcome". The Upper Peninsula Medical Center (UPMC) www.penmed.com offers a number of benefits which others do not. Some of these benefits include an on-site Surgery Center available for use; covered drop off entrances with heated walks; wheel chairs at each public entrance; on-site U.S. Postal Services; on-site UPS services; FedEx drop box; conveniently located with lots of available free parking; on-site New York Deli Café; we’re located on the City Bike Path; free conference room space; opportunity for patient referrals; Marq-Tran bus transportation makes routine stops throughout the day; common area break room with vending machines and microwave; 24/7 security; and we have an on-site maintenance staff. Please see the attached document for a full list of benefits to being located at the UPMC.
- Fully Built-Out as Standard Office
- Mostly Open Floor Plan Layout
- Space is in Excellent Condition
- Ample parking
2nd Floor, Ste 216
| Size | 1,700 SF |
| Term | Negotiable |
| Rental Rate | Upon Request |
| Space Use | Office/Medical |
| Build-Out | Full Build-Out |
| Available | Now |
Several other suites available for lease of various different sizes too! "An array of Business types are welcome". The Upper Peninsula Medical Center (UPMC) www.penmed.com offers a number of benefits which others do not. Some of these benefits include an on-site Surgery Center available for use; covered drop off entrances with heated walks; wheel chairs at each public entrance; on-site U.S. Postal Services; on-site UPS services; FedEx drop box; conveniently located with lots of available free parking; on-site New York Deli Café; we’re located on the City Bike Path; free conference room space; opportunity for patient referrals; Marq-Tran bus transportation makes routine stops throughout the day; common area break room with vending machines and microwave; 24/7 security; and we have an on-site maintenance staff. Please see the attached document for a full list of benefits to being located at the UPMC.
- Fully Built-Out as Standard Office
- Mostly Open Floor Plan Layout
- Space is in Excellent Condition
- Ample parking
3rd Floor, Ste 342
| Size | 2,749 SF |
| Term | Negotiable |
| Rental Rate | Upon Request |
| Space Use | Office/Medical |
| Build-Out | Full Build-Out |
| Available | Now |
2,163 SF of available RAW space adjacent to this suite to the West, which could be combined with this suite. There is also 1,200 SF of developed space to the East, which could also be combined with this suite. The suite has be recently refreshed and we will replace some of the flooring once we confirm with the new tenant on the type of flooring needed. The Upper Peninsula Medical Center (UPMC) www.penmed.com offers a number of benefits which others do not. Some of these benefits include an on-site Surgery Center available for use; covered drop off entrances with heated walks; wheel chairs at each public entrance; on-site U.S. Postal Services; on-site UPS services; FedEx drop box; conveniently located with lots of available free parking; on-site New York Deli Café; we’re located on the City Bike Path; free conference room space; opportunity for patient referrals; Marq-Tran bus transportation makes routine stops throughout the day; common area break room with vending machines and microwave; 24/7 security; and we have an on-site maintenance staff. Please see the attached document for a full list of benefits to being located at the UPMC.
- Fully Built-Out as Standard Office
- Mostly Open Floor Plan Layout
- Space is in Excellent Condition
- Nice suite, excellent location with a view.
Property Overview
An array of business types welcomed!!! Some suites starting as low as $16.00 SQ FT (plus share of electric/water & sewer). We have various size suites available with beautiful views. Some suites may not be listed here, CALL TODAY! We offer the following benefits: - Covered drive up public entrances with wheelchairs for patients/customers to use - Lots of convenient, snow plowed parking.. - Marq-Tran' public transportation makes frequent, scheduled stops here. - On-site UP Postal services. UPS and FedEx pickup and drop off location - 24 hour building security. - We are located on the Marquette City Multi Use Path – “One of Michigan’s most popular cycling destinations, the Marquette City Multi Use Path is a network of over 17 miles of paved trails that take you on a tour through some of the most scenic vistas and historic landmarks in the area.” https://mitrails.org/marquette-city-multi-use-path.php - and more!
Property Facts
Presented by
1414 W Fair Ave
Hmm, there seems to have been an error sending your message. Please try again.
Thanks! Your message was sent.



















