Your email has been sent.
1415 Louisiana 1415 Louisiana St 520,602 SF 61% Leased 4-Star Office Building Houston, TX 77002 For Sale



Investment Highlights
- Extensive Recent Renovations
- Market Leading Parking Capabilities
- Premier Accessibility and Direct Tunnel Access
- Ability to Capitalize on Robust Leasing Momentum
- Best-In-Class Onsite Amenities
- Fully-Amenitized, Walkable Location
Executive Summary
1415 Louisiana has recently undergone an extensive lobby, entry, and tunnel level renovation, creating a dynamic and inviting experience for tenants and visitors alike. In addition to ease of access to offsite amenities through the tunnel, 1415 Lousiana offers a host of tenant-forward onsite amenities including the 8,000 SF ultramodern fitness center, an all new Terra coffee shop in the lobby, and the popular Strato 550 restaurant and conference center located on the 43rd floor.
1415 Louisiana offers the ability to capitalize on the recent renovations and leasing momentum and create significant value through the lease-up of existing vacancies.
Property Facts
Amenities
- Atrium
- Controlled Access
- Property Manager on Site
- Restaurant
- Security System
Sustainability
Sustainability
LEED Certification Developed by the U.S. Green Building Council (USGBC), the Leadership in Energy and Environmental Design (LEED) is a green building certification program focused on the design, construction, operation, and maintenance of green buildings, homes, and neighborhoods, which aims to help building owners and operators be environmentally responsible and use resources efficiently. LEED certification is a globally recognized symbol of sustainability achievement and leadership. To achieve LEED certification, a project earns points by adhering to prerequisites and credits that address carbon, energy, water, waste, transportation, materials, health and indoor environmental quality. Projects go through a verification and review process and are awarded points that correspond to a level of LEED certification: Platinum (80+ points) Gold (60-79 points) Silver (50-59 points) Certified (40-49 points)
Major Tenants Click Here to Access
- Tenant
- Industry
- SF Occupied
- Rent/SF
- Lease Type
- Lease End
Fragomen, Del Rey, Bernsen & Loewy is a global immigration law firm headquartered in New York City. Established in 1951 as Elmer Fried P.C., the firm has grown into one of the largest immigration-focused practices worldwide, with more than 550 attorneys across over 40 offices in 20+ countries. Fragomen provides comprehensive immigration services for corporations, individuals, and institutions, including work visa processing, compliance management, and strategic advisory for multinational workforce mobility. The firm serves a diverse client base spanning industries such as finance, technology, healthcare, education, and entertainment. Known for its deep expertise in immigration law, Fragomen assists clients in navigating complex regulatory environments and adapting to evolving global mobility trends. The firm remains privately held and continues to lead in delivering innovative solutions for corporate immigration programs and individual immigration needs.
Kasowitz Benson Torres LLP is a litigation-focused law firm headquartered in New York City. Founded in 1993 by Marc Kasowitz, Dan Benson, and Hector Torres, the firm was established to provide high-stakes litigation services with a client-driven approach. Today, Kasowitz operates ten offices across the United States, including locations in Atlanta, Houston, Los Angeles, Miami, San Francisco, and Washington, D.C. The firm represents clients in complex litigation and bankruptcy matters, as well as real estate and corporate disputes, serving industries such as financial services, technology, energy, and real estate. Known for its trial experience, Kasowitz handles cases in federal and state courts nationwide. The firm remains privately held and continues to emphasize innovative litigation strategies and collaborative client service.
Pagel, Davis & Hill, P.C. is a Houston-based law firm that focuses on providing legal services to businesses and entrepreneurs. Established in 1987, the firm represents clients across a range of industries, including construction, energy, and finance, offering counsel on corporate transactions, commercial litigation, and business planning. Pagel, Davis & Hill is known for advising closely held companies, family-owned businesses, and private equity-backed enterprises on matters such as mergers and acquisitions, contract negotiations, and dispute resolution. The firm operates from its office in downtown Houston and emphasizes a client-centered approach to delivering practical legal solutions. Privately held, Pagel, Davis & Hill continues to serve as a trusted advisor to businesses seeking strategic legal guidance in a competitive marketplace.
Quintana Resources Holdings LP is a private investment firm headquartered in Houston, Texas, specializing in the acquisition, financing, and management of metals and mining assets worldwide. The company focuses on building a diversified portfolio of high-quality mining operations and related businesses, leveraging its expertise in resource development and operational management. Quintana Resources operates as part of the broader Quintana family of companies, which has a long-standing history in energy and natural resources investments. The firm partners with management teams and stakeholders to optimize asset performance and create long-term value in the mining sector. With additional offices in Vancouver, Canada, Quintana Resources maintains a global presence to support its investment strategy across multiple jurisdictions. The company remains privately held and continues to expand its footprint in the metals and mining industry through strategic acquisitions and partnerships.
Regus began in 1989 when Mark Dixon created flexible office spaces in Brussels, Belgium. The company expanded internationally in the 1990s and now operates thousands of locations worldwide. Regus provides various workspace solutions including private offices, shared coworking environments, and virtual business addresses. As part of IWG plc, it serves businesses needing adaptable work arrangements across numerous countries and industries. The company emphasizes flexibility and professional environments for modern work needs.
| Tenant | Industry | SF Occupied | Rent/SF | Lease Type | Lease End | |
|
Professional, Scientific, and Technical Services | - | - | Lorem Ipsum | Jan 0000 | |
|
Professional, Scientific, and Technical Services | - | - | - | Jan 0000 | |
|
Professional, Scientific, and Technical Services | - | - | - | Jan 0000 | |
|
Finance and Insurance | - | - | Lorem Ipsum | Jan 0000 | |
|
Real Estate | - | - | Lorem Ipsum | Jan 0000 |
Space Availability
- Space
- Size
- Space Use
- Condition
- Available
Spacious retail suite with 1,988 sqft available
Spacious retail suite with 4,042 sqft available
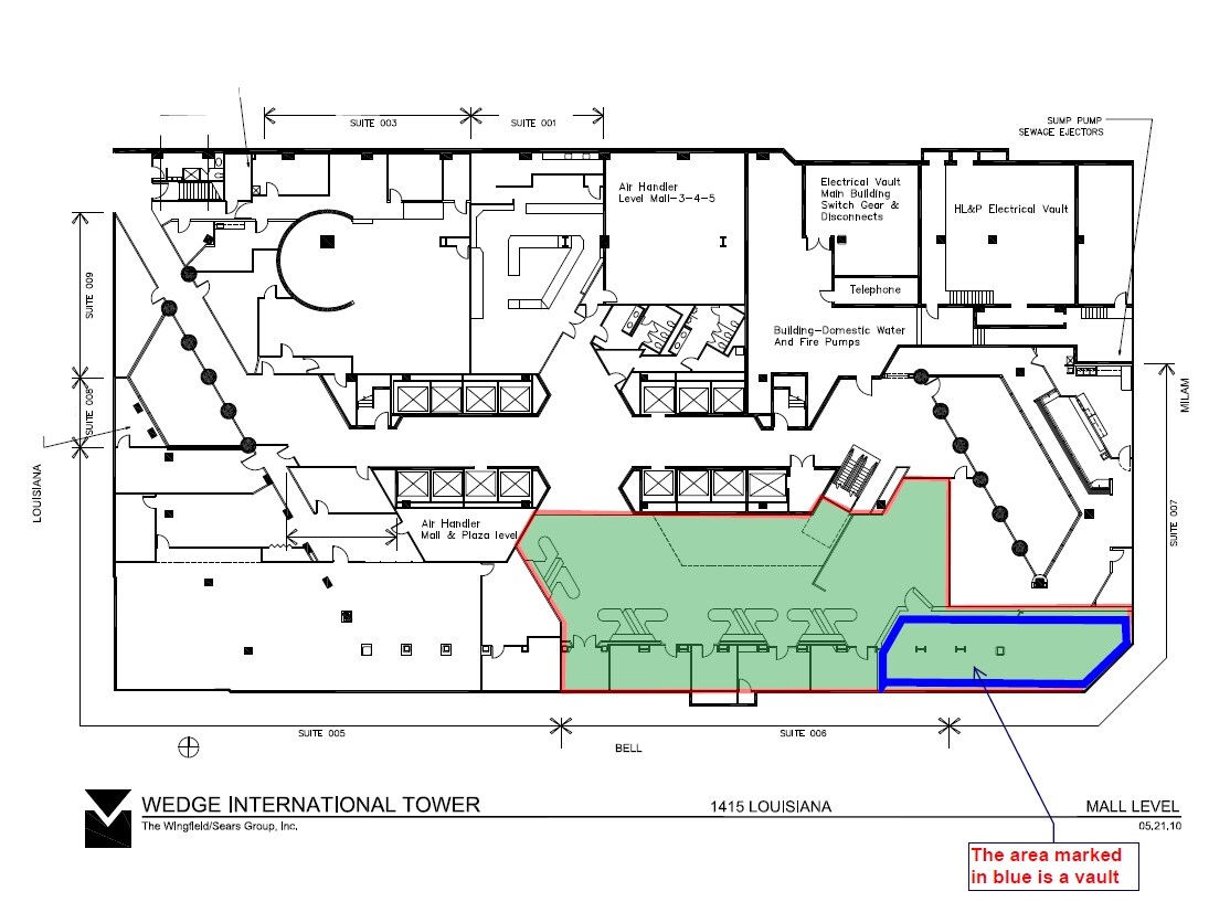
open area, former bank space located on Mall Level Floor.
Spacious retail suite with 2,669 sqft available.
Spacious office suite with 11,567 sqft available.
Spacious office suite with 12,809 sqft available.
Brand new corridor, office oriented, bull pen area existing.
Spacious office suite with 3,107 sqft available.
Spacious office suite with 18,324 sqft available.
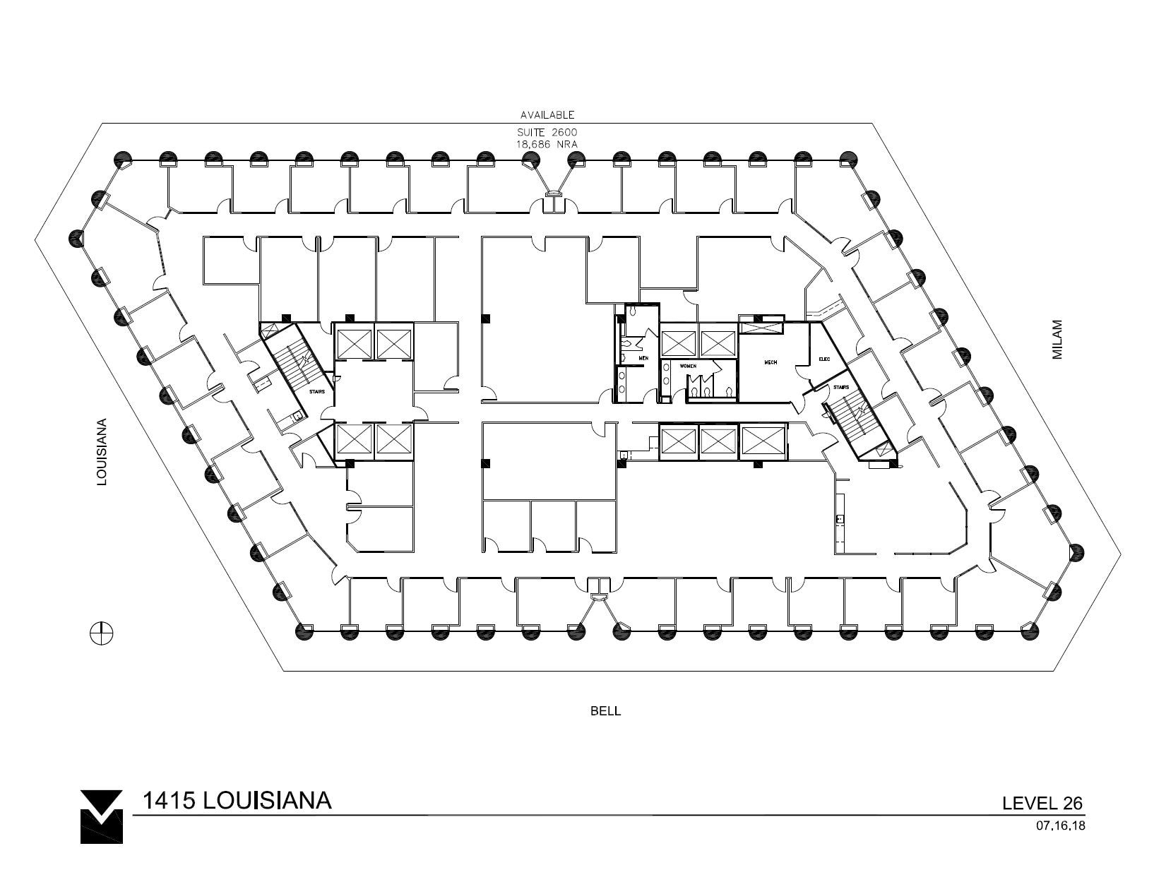
Spacious office suite with 18,686 sqft available.
Grand internal staircase connects to level 28.
Levels 27 and 28 are connected via internal stairwell.
Spacious office suite with 15,860 sqft available.
Full floor, large exterior offices, unique floor plate size.
Atrium available between 3100 and 3200.
Atrium available between 3100 and 3200.
Office intensive, law firm space, elevator exposure, new paint and carpet.
Office intensive, law firm space, elevator exposure, new paint and carpet.
Spacious office suite with 3,542 sqft available.
Highest vacancy available with unique floor plate size!
High-end, Move-in Ready suite!
Open floor plan, elevator exposure.
Spacious office suite with 3,888 sqft available.
Spacious office suite with 1,620 sqft available.
| Space | Size | Space Use | Condition | Available |
| Lower Level-Ste 01 | 1,988 SF | Retail | Full Build-Out | 30 Days |
| Lower Level-Ste 03 | 4,042 SF | Retail | Full Build-Out | 30 Days |
| Lower Level-Ste 05 | 6,681 SF | Retail | Full Build-Out | Now |
| Lower Level-Ste 07 | 2,669 SF | Retail | Full Build-Out | 30 Days |
| 14th Floor | 11,567 SF | Office | Full Build-Out | Now |
| 17th Fl-Ste 1700 | 12,809 SF | Office | Full Build-Out | Now |
| 21st Fl-Ste 2120 | 2,720 SF | Office | Partial Build-Out | Now |
| 21st Fl-Ste 2175 | 3,107 SF | Office | Full Build-Out | Now |
| 23rd Fl-Ste 2300 | 3,093 SF | Office | Spec Suite | 30 Days |
| 25th Fl-Ste 2500 | 18,324 SF | Office | Partial Build-Out | Now |
| 26th Fl-Ste 2600 | 18,686 SF | Office | Partial Build-Out | Now |
| 27th Fl-Ste 2700 | 18,686 SF | Office | Full Build-Out | Now |
| 28th Fl-Ste 2800 | 18,686 SF | Office | Full Build-Out | Now |
| 29th Fl-Ste 2900 | 15,860 SF | Office | Full Build-Out | Now |
| 30th Fl-Ste 3000 | 15,625 SF | Office | Full Build-Out | Now |
| 31st Fl-Ste 3100 | 14,977 SF | Office | Full Build-Out | Now |
| 32nd Fl-Ste 3200 | 14,724 SF | Office | Full Build-Out | Now |
| 33rd Fl-Ste 3350 | 3,010 SF | Office | Full Build-Out | Now |
| 34th Fl-Ste 3410 | 3,004 SF | Office | Full Build-Out | Now |
| 35th Fl-Ste 3550 | 3,542 SF | Office | Full Build-Out | Now |
| 37th Fl-Ste 3700 | 16,703 SF | Office | Full Build-Out | Now |
| 39th Fl-Ste 3900 | 3,466 SF | Office | Spec Suite | Now |
| 39th Fl-Ste 3950 | 4,473 SF | Office | Partial Build-Out | Now |
| 41st Fl-Ste 4111 | 3,888 SF | Office | Full Build-Out | Now |
| 41st Fl-Ste 4175 | 1,620 SF | Office | Full Build-Out | 30 Days |
Lower Level-Ste 01
| Size |
| 1,988 SF |
| Space Use |
| Retail |
| Condition |
| Full Build-Out |
| Available |
| 30 Days |
Lower Level-Ste 03
| Size |
| 4,042 SF |
| Space Use |
| Retail |
| Condition |
| Full Build-Out |
| Available |
| 30 Days |
Lower Level-Ste 05
| Size |
| 6,681 SF |
| Space Use |
| Retail |
| Condition |
| Full Build-Out |
| Available |
| Now |
Lower Level-Ste 07
| Size |
| 2,669 SF |
| Space Use |
| Retail |
| Condition |
| Full Build-Out |
| Available |
| 30 Days |
14th Floor
| Size |
| 11,567 SF |
| Space Use |
| Office |
| Condition |
| Full Build-Out |
| Available |
| Now |
17th Fl-Ste 1700
| Size |
| 12,809 SF |
| Space Use |
| Office |
| Condition |
| Full Build-Out |
| Available |
| Now |
21st Fl-Ste 2120
| Size |
| 2,720 SF |
| Space Use |
| Office |
| Condition |
| Partial Build-Out |
| Available |
| Now |
21st Fl-Ste 2175
| Size |
| 3,107 SF |
| Space Use |
| Office |
| Condition |
| Full Build-Out |
| Available |
| Now |
23rd Fl-Ste 2300
| Size |
| 3,093 SF |
| Space Use |
| Office |
| Condition |
| Spec Suite |
| Available |
| 30 Days |
25th Fl-Ste 2500
| Size |
| 18,324 SF |
| Space Use |
| Office |
| Condition |
| Partial Build-Out |
| Available |
| Now |
26th Fl-Ste 2600
| Size |
| 18,686 SF |
| Space Use |
| Office |
| Condition |
| Partial Build-Out |
| Available |
| Now |
27th Fl-Ste 2700
| Size |
| 18,686 SF |
| Space Use |
| Office |
| Condition |
| Full Build-Out |
| Available |
| Now |
28th Fl-Ste 2800
| Size |
| 18,686 SF |
| Space Use |
| Office |
| Condition |
| Full Build-Out |
| Available |
| Now |
29th Fl-Ste 2900
| Size |
| 15,860 SF |
| Space Use |
| Office |
| Condition |
| Full Build-Out |
| Available |
| Now |
30th Fl-Ste 3000
| Size |
| 15,625 SF |
| Space Use |
| Office |
| Condition |
| Full Build-Out |
| Available |
| Now |
31st Fl-Ste 3100
| Size |
| 14,977 SF |
| Space Use |
| Office |
| Condition |
| Full Build-Out |
| Available |
| Now |
32nd Fl-Ste 3200
| Size |
| 14,724 SF |
| Space Use |
| Office |
| Condition |
| Full Build-Out |
| Available |
| Now |
33rd Fl-Ste 3350
| Size |
| 3,010 SF |
| Space Use |
| Office |
| Condition |
| Full Build-Out |
| Available |
| Now |
34th Fl-Ste 3410
| Size |
| 3,004 SF |
| Space Use |
| Office |
| Condition |
| Full Build-Out |
| Available |
| Now |
35th Fl-Ste 3550
| Size |
| 3,542 SF |
| Space Use |
| Office |
| Condition |
| Full Build-Out |
| Available |
| Now |
37th Fl-Ste 3700
| Size |
| 16,703 SF |
| Space Use |
| Office |
| Condition |
| Full Build-Out |
| Available |
| Now |
39th Fl-Ste 3900
| Size |
| 3,466 SF |
| Space Use |
| Office |
| Condition |
| Spec Suite |
| Available |
| Now |
39th Fl-Ste 3950
| Size |
| 4,473 SF |
| Space Use |
| Office |
| Condition |
| Partial Build-Out |
| Available |
| Now |
41st Fl-Ste 4111
| Size |
| 3,888 SF |
| Space Use |
| Office |
| Condition |
| Full Build-Out |
| Available |
| Now |
41st Fl-Ste 4175
| Size |
| 1,620 SF |
| Space Use |
| Office |
| Condition |
| Full Build-Out |
| Available |
| 30 Days |
Lower Level-Ste 01
| Size | 1,988 SF |
| Space Use | Retail |
| Condition | Full Build-Out |
| Available | 30 Days |
Spacious retail suite with 1,988 sqft available
Lower Level-Ste 03
| Size | 4,042 SF |
| Space Use | Retail |
| Condition | Full Build-Out |
| Available | 30 Days |
Spacious retail suite with 4,042 sqft available
Lower Level-Ste 05
| Size | 6,681 SF |
| Space Use | Retail |
| Condition | Full Build-Out |
| Available | Now |
open area, former bank space located on Mall Level Floor.
Lower Level-Ste 07
| Size | 2,669 SF |
| Space Use | Retail |
| Condition | Full Build-Out |
| Available | 30 Days |
Spacious retail suite with 2,669 sqft available.
14th Floor
| Size | 11,567 SF |
| Space Use | Office |
| Condition | Full Build-Out |
| Available | Now |
Spacious office suite with 11,567 sqft available.
17th Fl-Ste 1700
| Size | 12,809 SF |
| Space Use | Office |
| Condition | Full Build-Out |
| Available | Now |
Spacious office suite with 12,809 sqft available.
21st Fl-Ste 2120
| Size | 2,720 SF |
| Space Use | Office |
| Condition | Partial Build-Out |
| Available | Now |
Brand new corridor, office oriented, bull pen area existing.
21st Fl-Ste 2175
| Size | 3,107 SF |
| Space Use | Office |
| Condition | Full Build-Out |
| Available | Now |
Spacious office suite with 3,107 sqft available.
23rd Fl-Ste 2300
| Size | 3,093 SF |
| Space Use | Office |
| Condition | Spec Suite |
| Available | 30 Days |
25th Fl-Ste 2500
| Size | 18,324 SF |
| Space Use | Office |
| Condition | Partial Build-Out |
| Available | Now |
Spacious office suite with 18,324 sqft available.
26th Fl-Ste 2600
| Size | 18,686 SF |
| Space Use | Office |
| Condition | Partial Build-Out |
| Available | Now |
Spacious office suite with 18,686 sqft available.
27th Fl-Ste 2700
| Size | 18,686 SF |
| Space Use | Office |
| Condition | Full Build-Out |
| Available | Now |
Grand internal staircase connects to level 28.
28th Fl-Ste 2800
| Size | 18,686 SF |
| Space Use | Office |
| Condition | Full Build-Out |
| Available | Now |
Levels 27 and 28 are connected via internal stairwell.
29th Fl-Ste 2900
| Size | 15,860 SF |
| Space Use | Office |
| Condition | Full Build-Out |
| Available | Now |
Spacious office suite with 15,860 sqft available.
30th Fl-Ste 3000
| Size | 15,625 SF |
| Space Use | Office |
| Condition | Full Build-Out |
| Available | Now |
Full floor, large exterior offices, unique floor plate size.
31st Fl-Ste 3100
| Size | 14,977 SF |
| Space Use | Office |
| Condition | Full Build-Out |
| Available | Now |
Atrium available between 3100 and 3200.
32nd Fl-Ste 3200
| Size | 14,724 SF |
| Space Use | Office |
| Condition | Full Build-Out |
| Available | Now |
Atrium available between 3100 and 3200.
33rd Fl-Ste 3350
| Size | 3,010 SF |
| Space Use | Office |
| Condition | Full Build-Out |
| Available | Now |
Office intensive, law firm space, elevator exposure, new paint and carpet.
34th Fl-Ste 3410
| Size | 3,004 SF |
| Space Use | Office |
| Condition | Full Build-Out |
| Available | Now |
Office intensive, law firm space, elevator exposure, new paint and carpet.
35th Fl-Ste 3550
| Size | 3,542 SF |
| Space Use | Office |
| Condition | Full Build-Out |
| Available | Now |
Spacious office suite with 3,542 sqft available.
37th Fl-Ste 3700
| Size | 16,703 SF |
| Space Use | Office |
| Condition | Full Build-Out |
| Available | Now |
Highest vacancy available with unique floor plate size!
39th Fl-Ste 3900
| Size | 3,466 SF |
| Space Use | Office |
| Condition | Spec Suite |
| Available | Now |
High-end, Move-in Ready suite!
39th Fl-Ste 3950
| Size | 4,473 SF |
| Space Use | Office |
| Condition | Partial Build-Out |
| Available | Now |
Open floor plan, elevator exposure.
41st Fl-Ste 4111
| Size | 3,888 SF |
| Space Use | Office |
| Condition | Full Build-Out |
| Available | Now |
Spacious office suite with 3,888 sqft available.
41st Fl-Ste 4175
| Size | 1,620 SF |
| Space Use | Office |
| Condition | Full Build-Out |
| Available | 30 Days |
Spacious office suite with 1,620 sqft available.
Property Taxes
| Parcel Number | 0020380000001 | Improvements Assessment | $45,424,724 CAD |
| Land Assessment | $16,630,039 CAD | Total Assessment | $62,054,763 CAD |
Property Taxes
Presented by
1415 Louisiana | 1415 Louisiana St
Hmm, there seems to have been an error sending your message. Please try again.
Thanks! Your message was sent.




































