Your email has been sent.
Highlights
- Historic Georgetown Prestige
- Versatile Retail Environment
- Former Commmander Salamander (Iconic Location)
- Legacy of Retail Innovation
- Exceptional Exposure
Space Availability (1)
Display Rental Rate as
- Space
- Size
- Ceiling
- Term
- Rental Rate
- Rent Type
| Space | Size | Ceiling | Term | Rental Rate | Rent Type | |
| Basement | 2,800 SF | 8’ - 11’ | 5-10 Years | Upon Request Upon Request Upon Request Upon Request | TBD |
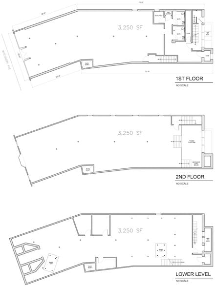
Basement
Entrance to be created through the front on Wisconsin Ave. Space is at grade on the side and has large windows for natural light. Joe and The Juice has leased the first floor.
- Finished Ceilings: 8’ - 11’
Rent Types
The rent amount and type that the tenant (lessee) will be responsible to pay to the landlord (lessor) throughout the lease term is negotiated prior to both parties signing a lease agreement. The rent type will vary depending upon the services provided. For example, triple net rents are typically lower than full service rents due to additional expenses the tenant is required to pay in addition to the base rent. Contact the listing broker for a full understanding of any associated costs or additional expenses for each rent type.
1. Full Service: A rental rate that includes normal building standard services as provided by the landlord within a base year rental.
2. Double Net (NN): Tenant pays for only two of the building expenses; the landlord and tenant determine the specific expenses prior to signing the lease agreement.
3. Triple Net (NNN): A lease in which the tenant is responsible for all expenses associated with their proportional share of occupancy of the building.
4. Modified Gross: Modified Gross is a general type of lease rate where typically the tenant will be responsible for their proportional share of one or more of the expenses. The landlord will pay the remaining expenses. See the below list of common Modified Gross rental rate structures: 4. Plus All Utilities: A type of Modified Gross Lease where the tenant is responsible for their proportional share of utilities in addition to the rent. 4. Plus Cleaning: A type of Modified Gross Lease where the tenant is responsible for their proportional share of cleaning in addition to the rent. 4. Plus Electric: A type of Modified Gross Lease where the tenant is responsible for their proportional share of the electrical cost in addition to the rent. 4. Plus Electric & Cleaning: A type of Modified Gross Lease where the tenant is responsible for their proportional share of the electrical and cleaning cost in addition to the rent. 4. Plus Utilities and Char: A type of Modified Gross Lease where the tenant is responsible for their proportional share of the utilities and cleaning cost in addition to the rent. 4. Industrial Gross: A type of Modified Gross lease where the tenant pays one or more of the expenses in addition to the rent. The landlord and tenant determine these prior to signing the lease agreement.
5. Tenant Electric: The landlord pays for all services and the tenant is responsible for their usage of lights and electrical outlets in the space they occupy.
6. Negotiable or Upon Request: Used when the leasing contact does not provide the rent or service type.
7. TBD: To be determined; used for buildings for which no rent or service type is known, commonly utilized when the buildings are not yet built.
Property Facts
| Total Space Available | 2,800 SF | Gross Leasable Area | 9,750 SF |
| Property Type | Retail | Year Built | 1900 |
| Property Subtype | Storefront Retail/Office |
| Total Space Available | 2,800 SF |
| Property Type | Retail |
| Property Subtype | Storefront Retail/Office |
| Gross Leasable Area | 9,750 SF |
| Year Built | 1900 |
About the Property
Located in the heart of Georgetown, one of Washington, DC’s most vibrant and historic neighborhoods, this retail space at 1420 Wisconsin Ave NW offers an unparalleled opportunity for businesses looking to make a mark in a prestigious location. This iconic address, formerly home to the legendary Commander Salamander, provides a unique blend of historical significance and modern retail potential. Total of 9,750 sf on 3 floors. Basement (with windows) was recently dug out to raise ceiling to 9 ft. Ideal Tenant leases all 3 floors but Landlord is open to separating the floors for varied uses including restaurant and fitness.
Nearby Major Retailers
Presented by
1420 Wisconsin Ave NW
Hmm, there seems to have been an error sending your message. Please try again.
Thanks! Your message was sent.



