Your email has been sent.
Highlights
- From 794 to 14,000 sf
- 10 minutes to Hobby Airport
- Access to amenities and restaurants minutes from the building
- Move-In Ready Suites Available, Full Floor Available, Covered and surface parking
- Card key access
- Within walking distance to Memorial Hermann Southeast Hospital
All Available Spaces(9)
Display Rental Rate as
- Space
- Size
- Term
- Rental Rate
- Space Use
- Build-Out
- Available
Contact broker for more details.
- Rate includes utilities, building services and property expenses
- Mostly Open Floor Plan Layout
- Partially Built-Out as Standard Office
Contact broker for details.
- Rate includes utilities, building services and property expenses
- Mostly Open Floor Plan Layout
- Partially Built-Out as Standard Office
- Can be combined with additional space(s) for up to 13,358 SF of adjacent space
Property Highlights: • Great access to Bwy 8 and IH 45 • 10 minutes to Hobby Airport • Covered and surface parking • Card key access • Access to amenities and restaurants minutes from the building • Within walking distance to Memorial Hermann Southeast Hospital • Model suites available for immediate move-in
- Rate includes utilities, building services and property expenses
- Mostly Open Floor Plan Layout
- Partially Built-Out as Standard Office
- Can be combined with additional space(s) for up to 13,358 SF of adjacent space
Property Highlights: • Great access to Bwy 8 and IH 45 • 10 minutes to Hobby Airport • Covered and surface parking • Card key access • Access to amenities and restaurants minutes from the building • Within walking distance to Memorial Hermann Southeast Hospital • Model suites available for immediate move-in
- Rate includes utilities, building services and property expenses
- Mostly Open Floor Plan Layout
- Partially Built-Out as Standard Office
- Can be combined with additional space(s) for up to 13,358 SF of adjacent space
Property Highlights: • Great access to Bwy 8 and IH 45 • 10 minutes to Hobby Airport • Covered and surface parking • Card key access • Access to amenities and restaurants minutes from the building • Within walking distance to Memorial Hermann Southeast Hospital • Model suites available for immediate move-in
- Rate includes utilities, building services and property expenses
- Mostly Open Floor Plan Layout
- Partially Built-Out as Standard Office
- Can be combined with additional space(s) for up to 13,358 SF of adjacent space
Property Highlights: • Great access to Bwy 8 and IH 45 • 10 minutes to Hobby Airport • Covered and surface parking • Card key access • Access to amenities and restaurants minutes from the building • Within walking distance to Memorial Hermann Southeast Hospital • Model suites available for immediate move-in
- Rate includes utilities, building services and property expenses
- Mostly Open Floor Plan Layout
- Partially Built-Out as Standard Office
- Can be combined with additional space(s) for up to 13,358 SF of adjacent space
Property Highlights: • Great access to Bwy 8 and IH 45 • 10 minutes to Hobby Airport • Covered and surface parking • Card key access • Access to amenities and restaurants minutes from the building • Within walking distance to Memorial Hermann Southeast Hospital • Model suites available for immediate move-in
- Rate includes utilities, building services and property expenses
- Mostly Open Floor Plan Layout
- Partially Built-Out as Standard Office
- Can be combined with additional space(s) for up to 13,358 SF of adjacent space
Property Highlights: • Great access to Bwy 8 and IH 45 • 10 minutes to Hobby Airport • Covered and surface parking • Card key access • Access to amenities and restaurants minutes from the building • Within walking distance to Memorial Hermann Southeast Hospital • Model suites available for immediate move-in
- Rate includes utilities, building services and property expenses
- Mostly Open Floor Plan Layout
- Partially Built-Out as Standard Office
- Can be combined with additional space(s) for up to 13,358 SF of adjacent space
Property Highlights: • Great access to Bwy 8 and IH 45 • 10 minutes to Hobby Airport • Covered and surface parking • Card key access • Access to amenities and restaurants minutes from the building • Within walking distance to Memorial Hermann Southeast Hospital • Model suites available for immediate move-in
- Rate includes utilities, building services and property expenses
- Mostly Open Floor Plan Layout
- Partially Built-Out as Standard Office
- Can be combined with additional space(s) for up to 13,358 SF of adjacent space
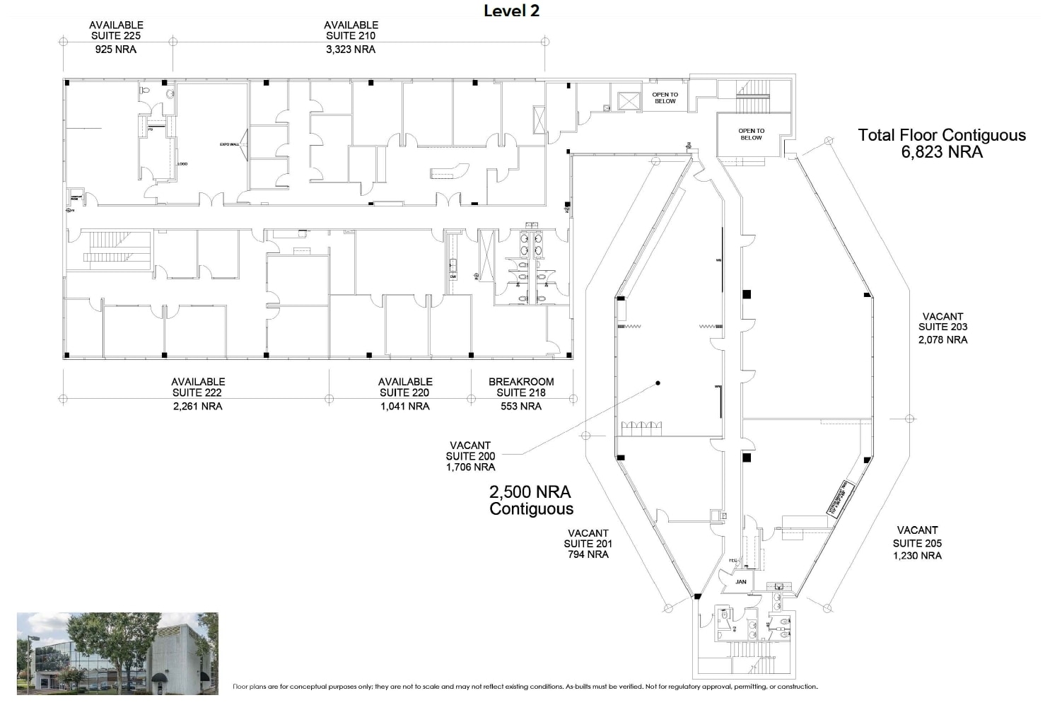
| Space | Size | Term | Rental Rate | Space Use | Build-Out | Available |
| 1st Floor, Ste 109 | 1,458 SF | 5 Years | $27.39 CAD/SF/YR $2.28 CAD/SF/MO $39,941 CAD/YR $3,328 CAD/MO | Office | Partial Build-Out | Now |
| 2nd Floor, Ste 200 | 1,706 SF | 3-5 Years | $27.39 CAD/SF/YR $2.28 CAD/SF/MO $46,735 CAD/YR $3,895 CAD/MO | Office | Partial Build-Out | 90 Days |
| 2nd Floor, Ste 201 | 794 SF | 3-5 Years | $27.39 CAD/SF/YR $2.28 CAD/SF/MO $21,751 CAD/YR $1,813 CAD/MO | Office | Partial Build-Out | Now |
| 2nd Floor, Ste 203 | 2,078 SF | 3-5 Years | $27.39 CAD/SF/YR $2.28 CAD/SF/MO $56,925 CAD/YR $4,744 CAD/MO | Office | Partial Build-Out | Now |
| 2nd Floor, Ste 205 | 1,230 SF | 3-5 Years | $27.39 CAD/SF/YR $2.28 CAD/SF/MO $33,695 CAD/YR $2,808 CAD/MO | Office | Partial Build-Out | 30 Days |
| 2nd Floor, Ste 210 | 3,323 SF | 3-5 Years | $27.39 CAD/SF/YR $2.28 CAD/SF/MO $91,031 CAD/YR $7,586 CAD/MO | Office | Partial Build-Out | Now |
| 2nd Floor, Ste 220 | 1,041 SF | 3-5 Years | $27.39 CAD/SF/YR $2.28 CAD/SF/MO $28,517 CAD/YR $2,376 CAD/MO | Office | Partial Build-Out | 30 Days |
| 2nd Floor, Ste 222 | 2,261 SF | 3-5 Years | $27.39 CAD/SF/YR $2.28 CAD/SF/MO $61,938 CAD/YR $5,162 CAD/MO | Office | Partial Build-Out | 30 Days |
| 2nd Floor, Ste 225 | 925 SF | 3-5 Years | $27.39 CAD/SF/YR $2.28 CAD/SF/MO $25,340 CAD/YR $2,112 CAD/MO | Office | Partial Build-Out | Now |
1st Floor, Ste 109
| Size |
| 1,458 SF |
| Term |
| 5 Years |
| Rental Rate |
| $27.39 CAD/SF/YR $2.28 CAD/SF/MO $39,941 CAD/YR $3,328 CAD/MO |
| Space Use |
| Office |
| Build-Out |
| Partial Build-Out |
| Available |
| Now |
2nd Floor, Ste 200
| Size |
| 1,706 SF |
| Term |
| 3-5 Years |
| Rental Rate |
| $27.39 CAD/SF/YR $2.28 CAD/SF/MO $46,735 CAD/YR $3,895 CAD/MO |
| Space Use |
| Office |
| Build-Out |
| Partial Build-Out |
| Available |
| 90 Days |
2nd Floor, Ste 201
| Size |
| 794 SF |
| Term |
| 3-5 Years |
| Rental Rate |
| $27.39 CAD/SF/YR $2.28 CAD/SF/MO $21,751 CAD/YR $1,813 CAD/MO |
| Space Use |
| Office |
| Build-Out |
| Partial Build-Out |
| Available |
| Now |
2nd Floor, Ste 203
| Size |
| 2,078 SF |
| Term |
| 3-5 Years |
| Rental Rate |
| $27.39 CAD/SF/YR $2.28 CAD/SF/MO $56,925 CAD/YR $4,744 CAD/MO |
| Space Use |
| Office |
| Build-Out |
| Partial Build-Out |
| Available |
| Now |
2nd Floor, Ste 205
| Size |
| 1,230 SF |
| Term |
| 3-5 Years |
| Rental Rate |
| $27.39 CAD/SF/YR $2.28 CAD/SF/MO $33,695 CAD/YR $2,808 CAD/MO |
| Space Use |
| Office |
| Build-Out |
| Partial Build-Out |
| Available |
| 30 Days |
2nd Floor, Ste 210
| Size |
| 3,323 SF |
| Term |
| 3-5 Years |
| Rental Rate |
| $27.39 CAD/SF/YR $2.28 CAD/SF/MO $91,031 CAD/YR $7,586 CAD/MO |
| Space Use |
| Office |
| Build-Out |
| Partial Build-Out |
| Available |
| Now |
2nd Floor, Ste 220
| Size |
| 1,041 SF |
| Term |
| 3-5 Years |
| Rental Rate |
| $27.39 CAD/SF/YR $2.28 CAD/SF/MO $28,517 CAD/YR $2,376 CAD/MO |
| Space Use |
| Office |
| Build-Out |
| Partial Build-Out |
| Available |
| 30 Days |
2nd Floor, Ste 222
| Size |
| 2,261 SF |
| Term |
| 3-5 Years |
| Rental Rate |
| $27.39 CAD/SF/YR $2.28 CAD/SF/MO $61,938 CAD/YR $5,162 CAD/MO |
| Space Use |
| Office |
| Build-Out |
| Partial Build-Out |
| Available |
| 30 Days |
2nd Floor, Ste 225
| Size |
| 925 SF |
| Term |
| 3-5 Years |
| Rental Rate |
| $27.39 CAD/SF/YR $2.28 CAD/SF/MO $25,340 CAD/YR $2,112 CAD/MO |
| Space Use |
| Office |
| Build-Out |
| Partial Build-Out |
| Available |
| Now |
1st Floor, Ste 109
| Size | 1,458 SF |
| Term | 5 Years |
| Rental Rate | $27.39 CAD/SF/YR |
| Space Use | Office |
| Build-Out | Partial Build-Out |
| Available | Now |
Contact broker for more details.
- Rate includes utilities, building services and property expenses
- Partially Built-Out as Standard Office
- Mostly Open Floor Plan Layout
2nd Floor, Ste 200
| Size | 1,706 SF |
| Term | 3-5 Years |
| Rental Rate | $27.39 CAD/SF/YR |
| Space Use | Office |
| Build-Out | Partial Build-Out |
| Available | 90 Days |
Contact broker for details.
- Rate includes utilities, building services and property expenses
- Partially Built-Out as Standard Office
- Mostly Open Floor Plan Layout
- Can be combined with additional space(s) for up to 13,358 SF of adjacent space
2nd Floor, Ste 201
| Size | 794 SF |
| Term | 3-5 Years |
| Rental Rate | $27.39 CAD/SF/YR |
| Space Use | Office |
| Build-Out | Partial Build-Out |
| Available | Now |
Property Highlights: • Great access to Bwy 8 and IH 45 • 10 minutes to Hobby Airport • Covered and surface parking • Card key access • Access to amenities and restaurants minutes from the building • Within walking distance to Memorial Hermann Southeast Hospital • Model suites available for immediate move-in
- Rate includes utilities, building services and property expenses
- Partially Built-Out as Standard Office
- Mostly Open Floor Plan Layout
- Can be combined with additional space(s) for up to 13,358 SF of adjacent space
2nd Floor, Ste 203
| Size | 2,078 SF |
| Term | 3-5 Years |
| Rental Rate | $27.39 CAD/SF/YR |
| Space Use | Office |
| Build-Out | Partial Build-Out |
| Available | Now |
Property Highlights: • Great access to Bwy 8 and IH 45 • 10 minutes to Hobby Airport • Covered and surface parking • Card key access • Access to amenities and restaurants minutes from the building • Within walking distance to Memorial Hermann Southeast Hospital • Model suites available for immediate move-in
- Rate includes utilities, building services and property expenses
- Partially Built-Out as Standard Office
- Mostly Open Floor Plan Layout
- Can be combined with additional space(s) for up to 13,358 SF of adjacent space
2nd Floor, Ste 205
| Size | 1,230 SF |
| Term | 3-5 Years |
| Rental Rate | $27.39 CAD/SF/YR |
| Space Use | Office |
| Build-Out | Partial Build-Out |
| Available | 30 Days |
Property Highlights: • Great access to Bwy 8 and IH 45 • 10 minutes to Hobby Airport • Covered and surface parking • Card key access • Access to amenities and restaurants minutes from the building • Within walking distance to Memorial Hermann Southeast Hospital • Model suites available for immediate move-in
- Rate includes utilities, building services and property expenses
- Partially Built-Out as Standard Office
- Mostly Open Floor Plan Layout
- Can be combined with additional space(s) for up to 13,358 SF of adjacent space
2nd Floor, Ste 210
| Size | 3,323 SF |
| Term | 3-5 Years |
| Rental Rate | $27.39 CAD/SF/YR |
| Space Use | Office |
| Build-Out | Partial Build-Out |
| Available | Now |
Property Highlights: • Great access to Bwy 8 and IH 45 • 10 minutes to Hobby Airport • Covered and surface parking • Card key access • Access to amenities and restaurants minutes from the building • Within walking distance to Memorial Hermann Southeast Hospital • Model suites available for immediate move-in
- Rate includes utilities, building services and property expenses
- Partially Built-Out as Standard Office
- Mostly Open Floor Plan Layout
- Can be combined with additional space(s) for up to 13,358 SF of adjacent space
2nd Floor, Ste 220
| Size | 1,041 SF |
| Term | 3-5 Years |
| Rental Rate | $27.39 CAD/SF/YR |
| Space Use | Office |
| Build-Out | Partial Build-Out |
| Available | 30 Days |
Property Highlights: • Great access to Bwy 8 and IH 45 • 10 minutes to Hobby Airport • Covered and surface parking • Card key access • Access to amenities and restaurants minutes from the building • Within walking distance to Memorial Hermann Southeast Hospital • Model suites available for immediate move-in
- Rate includes utilities, building services and property expenses
- Partially Built-Out as Standard Office
- Mostly Open Floor Plan Layout
- Can be combined with additional space(s) for up to 13,358 SF of adjacent space
2nd Floor, Ste 222
| Size | 2,261 SF |
| Term | 3-5 Years |
| Rental Rate | $27.39 CAD/SF/YR |
| Space Use | Office |
| Build-Out | Partial Build-Out |
| Available | 30 Days |
Property Highlights: • Great access to Bwy 8 and IH 45 • 10 minutes to Hobby Airport • Covered and surface parking • Card key access • Access to amenities and restaurants minutes from the building • Within walking distance to Memorial Hermann Southeast Hospital • Model suites available for immediate move-in
- Rate includes utilities, building services and property expenses
- Partially Built-Out as Standard Office
- Mostly Open Floor Plan Layout
- Can be combined with additional space(s) for up to 13,358 SF of adjacent space
2nd Floor, Ste 225
| Size | 925 SF |
| Term | 3-5 Years |
| Rental Rate | $27.39 CAD/SF/YR |
| Space Use | Office |
| Build-Out | Partial Build-Out |
| Available | Now |
Property Highlights: • Great access to Bwy 8 and IH 45 • 10 minutes to Hobby Airport • Covered and surface parking • Card key access • Access to amenities and restaurants minutes from the building • Within walking distance to Memorial Hermann Southeast Hospital • Model suites available for immediate move-in
- Rate includes utilities, building services and property expenses
- Partially Built-Out as Standard Office
- Mostly Open Floor Plan Layout
- Can be combined with additional space(s) for up to 13,358 SF of adjacent space
Property Overview
Great access to the Beltway and I-45 Minutes to Hobby Airport Covered and surface parking Card key access Access to amenities and restaurants minutes from the building Within walking distance to Memorial Hermann Southeast Hospital Model suites available for immediate move in
Property Facts
Presented by
14200 Gulf Fwy
Hmm, there seems to have been an error sending your message. Please try again.
Thanks! Your message was sent.








