Log In/Sign Up
Your email has been sent.
Highlights
- Cutting-edge warehouse development designed to unlock your business’s potential
- Signalized access to Fourth Plain Blvd via 143rd and 147th for seamless logistics
- Customize your workspace to perfectly suit your needs
Features
Clear Height
36’
Drive In Bays
4
Exterior Dock Doors
20
Cross Docks
Yes
All Available Space(1)
Display Rental Rate as
- Space
- Size
- Term
- Rental Rate
- Space Use
- Build-Out
- Available
- Lease rate does not include utilities, property expenses or building services
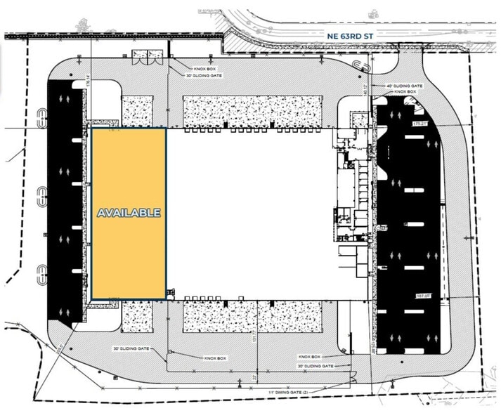
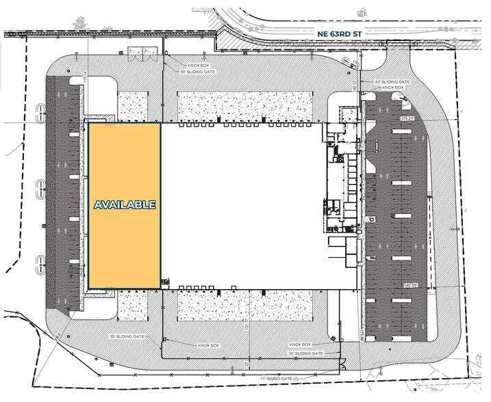
- 8 Loading Docks
- 2 Drive Ins
| Space | Size | Term | Rental Rate | Space Use | Build-Out | Available |
| 1st Floor | 15,000-40,447 SF | Negotiable | Upon Request Upon Request Upon Request Upon Request | Industrial | - | Now |
1st Floor
| Size |
| 15,000-40,447 SF |
| Term |
| Negotiable |
| Rental Rate |
| Upon Request Upon Request Upon Request Upon Request |
| Space Use |
| Industrial |
| Build-Out |
| - |
| Available |
| Now |
1 of 2
Videos
Matterport 3D Exterior
Matterport 3D Tour
Photos
Street View
Street
Map
1st Floor
| Size | 15,000-40,447 SF |
| Term | Negotiable |
| Rental Rate | Upon Request |
| Space Use | Industrial |
| Build-Out | - |
| Available | Now |
- Lease rate does not include utilities, property expenses or building services
- 2 Drive Ins
- 8 Loading Docks
Property Overview
Available Industrial Space ± 15,000 – ± 40,447 SF Warehouse Development
Distribution Facility Facts
Building Size
160,086 SF
Lot Size
16.99 AC
Year Built
2024
Construction
Reinforced Concrete
Sprinkler System
ESFR
Power Supply
Volts: 480
Zoning
IL - Light Industrial
Fairly walkable
50/100
Exceptionally drivable
90/100
Limited public transit
20/100
Fairly bikeable
40/100
1 of 11
Videos
Matterport 3D Exterior
Matterport 3D Tour
Photos
Street View
Street
Map
Presented by
14303 NE 63rd St
Already a member? Log In
Hmm, there seems to have been an error sending your message. Please try again.
Thanks! Your message was sent.







