Log In/Sign Up
Your email has been sent.
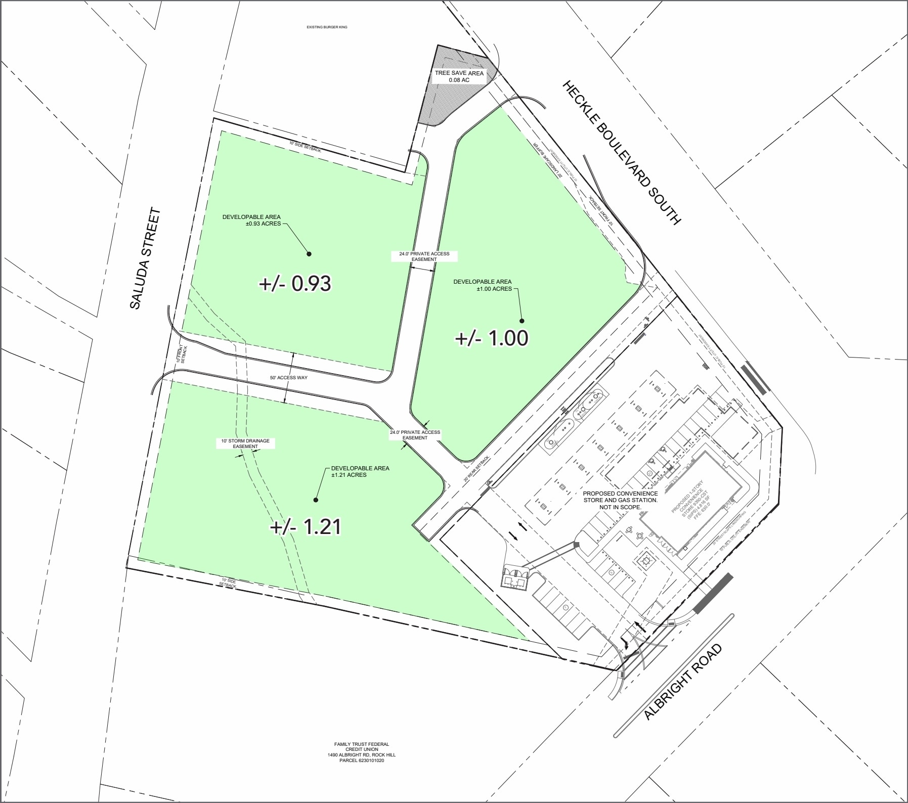
1439 Saluda Street
Rock Hill, SC 29730
Land For Lease

Highlights
- Adjacent to proposed 7-Eleven.
- Great sites for food & beverage, financial & medical development.
- 3.6 miles from I-77 via Mount Holly Rd.
Property Facts
| Total Space Available | 1.21 AC | Property Subtype | Commercial |
| Property Type | Land |
| Total Space Available | 1.21 AC |
| Property Type | Land |
| Property Subtype | Commercial |
1 of 2
Videos
Matterport 3D Exterior
Matterport 3D Tour
Photos
Street View
Street
Map
