Your email has been sent.
Highlights
- The Enterprise Mill is a fully equipped office facility with state-of-the-art fiber-optic communications for high-end connectivity.
- One of the most unique and prestigious office buildings in the Augusta area, located between the business district and Augusta's medical complex.
- The building features a shared parking lot with dedicated turning lanes from Greene Street and St Sebastian Way.
- Property manager, 24-hour security, conference facilities, fitness center, restaurant, and two electric car charging stations are all on-site.
- The Mill is easily accessible via the Calhoun Expressway, Riverwatch Parkway, Fifteenth Street, and St Sebastian Way.
- Enterprise Mill is home to a variety of tenants from law offices, catering events, staffing firms, and more.
Space Availability (3)
Display Rental Rate as
- Space
- Size
- Term
- Rental Rate
- Rent Type
| Space | Size | Term | Rental Rate | Rent Type | ||
| 1st Floor, Ste 1 | 3,110 SF | Negotiable | Upon Request Upon Request Upon Request Upon Request | Negotiable | ||
| 1st Floor, Ste 220 | 2,618 SF | Negotiable | $31.68 CAD/SF/YR $2.64 CAD/SF/MO $82,945 CAD/YR $6,912 CAD/MO | Modified Gross | ||
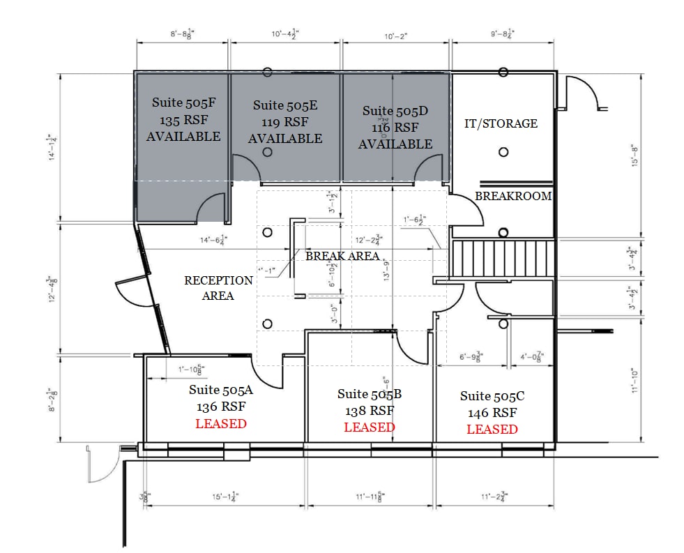
| 1st Floor, Ste 505 | 116-370 SF | Negotiable | Upon Request Upon Request Upon Request Upon Request | Full Service |
1452 Greene St - 1st Floor - Ste 1
Approximately .61-acre outparcel adjacent to Enterprise Mill, on the historic Augusta Canal, at Greene and 15th Street. Excellent opportunity for coffee shop, doughnut shop, or other retail/food establishment. Current building is 3,110 rentable square feet and is currently being used as office space. 1454 Greene Street is conveniently located between the central business district and Augusta's medical complex, which houses Augusta University, University Hospital, VA Hospital and Children’s Hospital of Georgia.
- Fits 8 - 25 People
- Space is an outparcel at this property
- Stand Alone Building
1450 Greene St - 1st Floor - Ste 220
Charming second-floor executive office suite. Recently renovated, the space blends modern functionality with classic mill character, featuring exposed brick, tall windows, and timeless details. Layout includes a welcoming reception area, four private offices, a conference room, and open work space ideal for cubicles. Available February 2026.
- Listed rate may not include certain utilities, building services and property expenses
- Fits 7 - 21 People
- Space is in Excellent Condition
- Recently Renovated
1450 Greene St - 1st Floor - Ste 505
Shared professional office suite featuring multiple private offices for lease. Tenants enjoy access to a shared reception area and breakroom. Utilities and high-speed Wi-Fi are included in the rental rate. Ideal for small businesses or remote professionals seeking a turnkey workspace. Available May 1. Rental Rates as follows: Suite F (135 rsf): $650.00 Suite E (119 rsf): $565.00 Suite D (116 rsf): $565.00
- Rate includes utilities, building services and property expenses
- Office intensive layout
- Fits 1 - 3 People
- Executive Office
Rent Types
The rent amount and type that the tenant (lessee) will be responsible to pay to the landlord (lessor) throughout the lease term is negotiated prior to both parties signing a lease agreement. The rent type will vary depending upon the services provided. For example, triple net rents are typically lower than full service rents due to additional expenses the tenant is required to pay in addition to the base rent. Contact the listing broker for a full understanding of any associated costs or additional expenses for each rent type.
1. Full Service: A rental rate that includes normal building standard services as provided by the landlord within a base year rental.
2. Double Net (NN): Tenant pays for only two of the building expenses; the landlord and tenant determine the specific expenses prior to signing the lease agreement.
3. Triple Net (NNN): A lease in which the tenant is responsible for all expenses associated with their proportional share of occupancy of the building.
4. Modified Gross: Modified Gross is a general type of lease rate where typically the tenant will be responsible for their proportional share of one or more of the expenses. The landlord will pay the remaining expenses. See the below list of common Modified Gross rental rate structures: 4. Plus All Utilities: A type of Modified Gross Lease where the tenant is responsible for their proportional share of utilities in addition to the rent. 4. Plus Cleaning: A type of Modified Gross Lease where the tenant is responsible for their proportional share of cleaning in addition to the rent. 4. Plus Electric: A type of Modified Gross Lease where the tenant is responsible for their proportional share of the electrical cost in addition to the rent. 4. Plus Electric & Cleaning: A type of Modified Gross Lease where the tenant is responsible for their proportional share of the electrical and cleaning cost in addition to the rent. 4. Plus Utilities and Char: A type of Modified Gross Lease where the tenant is responsible for their proportional share of the utilities and cleaning cost in addition to the rent. 4. Industrial Gross: A type of Modified Gross lease where the tenant pays one or more of the expenses in addition to the rent. The landlord and tenant determine these prior to signing the lease agreement.
5. Tenant Electric: The landlord pays for all services and the tenant is responsible for their usage of lights and electrical outlets in the space they occupy.
6. Negotiable or Upon Request: Used when the leasing contact does not provide the rent or service type.
7. TBD: To be determined; used for buildings for which no rent or service type is known, commonly utilized when the buildings are not yet built.
Property Facts
| Total Space Available | 6,098 SF | Center Properties | 2 |
| Min. Divisible | 116 SF | Gross Leasable Area | 3,110 SF |
| Parking | 380 Spaces | Total Land Area | 7.63 AC |
| Stores | 2 | Year Built | 1881 |
| Total Space Available | 6,098 SF |
| Min. Divisible | 116 SF |
| Parking | 380 Spaces |
| Stores | 2 |
| Center Properties | 2 |
| Gross Leasable Area | 3,110 SF |
| Total Land Area | 7.63 AC |
| Year Built | 1881 |
About the Property
The Enterprise Mill at 1450 Greene Street in Augusta, GA is a completely renovated cotton mill located adjacent to the historic Augusta Canal. The three-story, 179,122-square-foot building is the most unique and prestigious office space in the Augusta area. Enterprise mill offers a variety of office suites from 424 to 2,585 square feet with ready-made and customizable options available. The Mill offers an assortment of amenities that include several conference facilities and a fitness center, and the property is strategically situated in a HubZone, which expressly limits competition for certain contracts to businesses within the designated zone. This provides a clear path to increased revenues and market share. The site is also conveniently located between the central business district and Augusta's medical complex, which houses the Medical College of Georgia and three major hospitals. The building also benefits from accessibility to Calhoun Expressway and Riverwatch Parkway. Employees will also enjoy being within walking distance of the Augusta Canal, less than a mile to quick eats like Mellow Mushroom, and a brief 10-minute drive to the nearest I-20 onramp, which connects to Atlanta in the west and Columbia in the east. The Enterprise Mill at 1450 Greene Street is the ideal location for businesses searching for a variety of layout options in an accessible historic property.
Demographics
Demographics
Nearby Major Retailers
Presented by
Enterprise Mill | 1450 Greene St
Hmm, there seems to have been an error sending your message. Please try again.
Thanks! Your message was sent.












