Your email has been sent.
Infill Industrial with Fenced Yard & Rail 1455 E 62nd Ave 7,579 - 170,223 SF of Industrial Space Available in Denver, CO 80216



Highlights
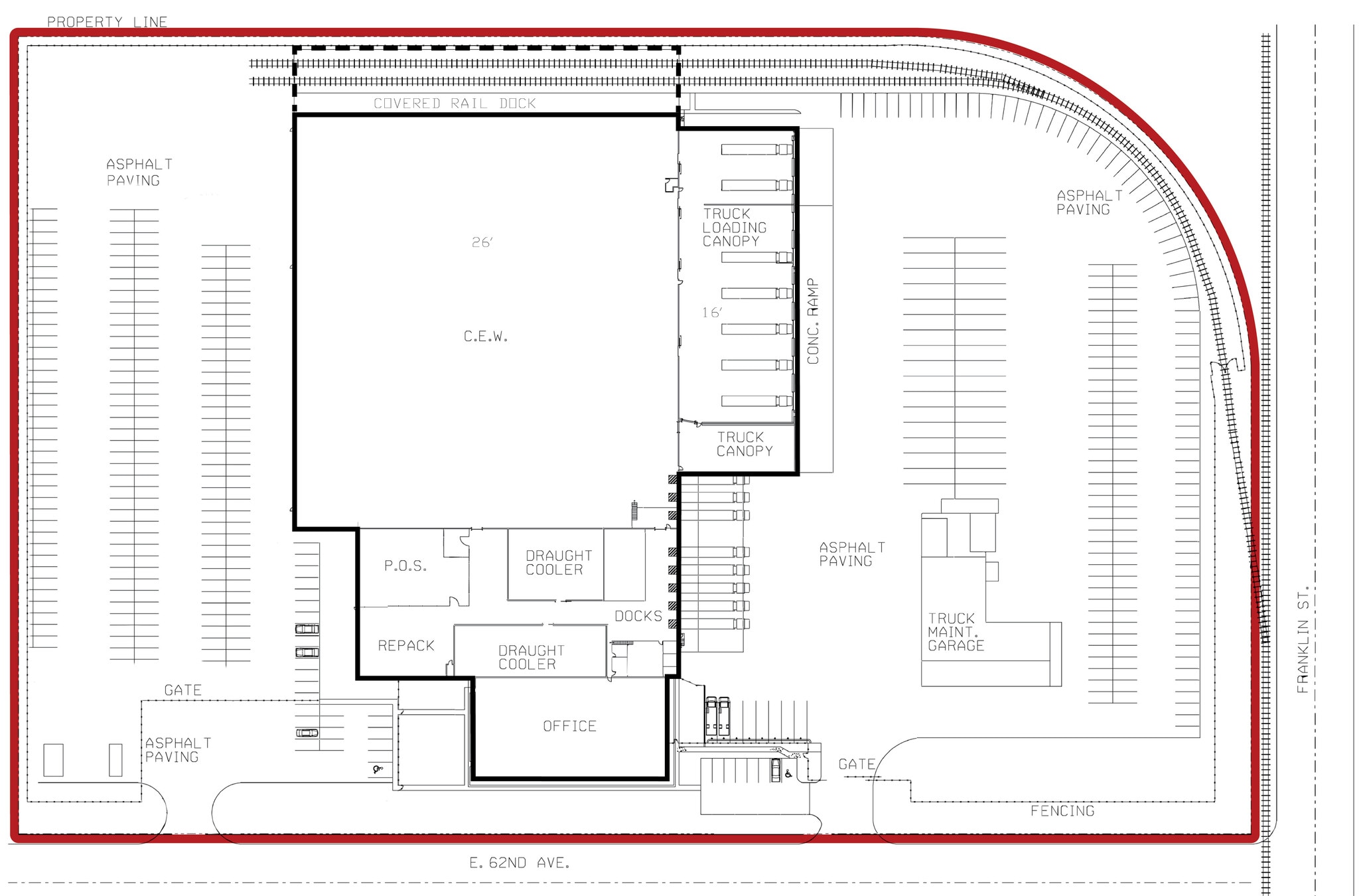
- 1455 E 62nd Avenue is a 170,223-square-foot cold storage facility formerly used by Eagle Rock Distributing Company in Denver, Colorado.
- 10 drive-in doors, 8 dock-high doors w/ levelers, covered rail spurs, cooler, wet and dry sprinklers, ample parking, heavy power, and office space.
- Near I-25, I-70, I-270, I-76, and US-36, placing users 10 min to downtown, 25 to Boulder, 30 to DIA, and 1.5 hrs to Fort Collins or Colorado Springs.
- Boasting over 106,000 square feet of cold storage warehouse space but is suitable for a broad range of warehousing and manufacturing uses.
- Situated on a 13.34-acre fenced, gated, and paved site with generous zoning that allows for trailer parking and industrial outdoor storage.
- Located in Opportunity and Enterprise Zones. Available for lease or sale.
Features
All Available Spaces(2)
Display Rental Rate as
- Space
- Size
- Term
- Rental Rate
- Space Use
- Condition
- Available
Over 106,000 SF of warehouse, suitable for a broad range of warehousing and manufacturing uses. It is situated on a large fenced and paved site with covered rail spurs. Central Denver location with easy access to Interstates 25, 70, 270, and 76, and US-36. Located in Opportunity and Enterprise Zones. Cold storage capabilities include 96,889 square feet of 60-degree cold storage space and a 9,471-square-foot 36-degree cooler. Administrative operations can be held here, with over 16,000 square feet of office space separated from the warehouse. Also available is Suite 200, a Truck Maintenance Facility with wash bay on 2.6+/- Acres of paved yard.
- Includes 16,272 SF of dedicated office space
- 8 Loading Docks
- Paved and Fenced Yard
- Cooler
- Covered Rail Spurs
- 10 Drive Ins
- Yard
- Wet and Dry Sprinklers
- Drive-Through Wash Bay
- Ample Heavy Power
Suite 200 is a fully functional Truck Maintenance Facility with wash bay on 2.6+/- Acres of paved yard. 1/2 ton crane, floor drains, oil/sand separator, and air and fluid lines throughout. 2.5+ additional acres of yard potentially available. Central Denver location with easy access to I-25, I-70, I-270, I-76 and US-36. Located in Opportunity and Enterprise Zones.
- 6 Drive Ins
| Space | Size | Term | Rental Rate | Space Use | Condition | Available |
| 1st Floor - 100 | 7,580-162,644 SF | Negotiable | Upon Request Upon Request Upon Request Upon Request | Industrial | Partial Build-Out | Now |
| 1st Floor - 200 | 7,579 SF | Negotiable | Upon Request Upon Request Upon Request Upon Request | Industrial | - | Now |
1st Floor - 100
| Size |
| 7,580-162,644 SF |
| Term |
| Negotiable |
| Rental Rate |
| Upon Request Upon Request Upon Request Upon Request |
| Space Use |
| Industrial |
| Condition |
| Partial Build-Out |
| Available |
| Now |
1st Floor - 200
| Size |
| 7,579 SF |
| Term |
| Negotiable |
| Rental Rate |
| Upon Request Upon Request Upon Request Upon Request |
| Space Use |
| Industrial |
| Condition |
| - |
| Available |
| Now |
1st Floor - 100
| Size | 7,580-162,644 SF |
| Term | Negotiable |
| Rental Rate | Upon Request |
| Space Use | Industrial |
| Condition | Partial Build-Out |
| Available | Now |
Over 106,000 SF of warehouse, suitable for a broad range of warehousing and manufacturing uses. It is situated on a large fenced and paved site with covered rail spurs. Central Denver location with easy access to Interstates 25, 70, 270, and 76, and US-36. Located in Opportunity and Enterprise Zones. Cold storage capabilities include 96,889 square feet of 60-degree cold storage space and a 9,471-square-foot 36-degree cooler. Administrative operations can be held here, with over 16,000 square feet of office space separated from the warehouse. Also available is Suite 200, a Truck Maintenance Facility with wash bay on 2.6+/- Acres of paved yard.
- Includes 16,272 SF of dedicated office space
- 10 Drive Ins
- 8 Loading Docks
- Yard
- Paved and Fenced Yard
- Wet and Dry Sprinklers
- Cooler
- Drive-Through Wash Bay
- Covered Rail Spurs
- Ample Heavy Power
1st Floor - 200
| Size | 7,579 SF |
| Term | Negotiable |
| Rental Rate | Upon Request |
| Space Use | Industrial |
| Condition | - |
| Available | Now |
Suite 200 is a fully functional Truck Maintenance Facility with wash bay on 2.6+/- Acres of paved yard. 1/2 ton crane, floor drains, oil/sand separator, and air and fluid lines throughout. 2.5+ additional acres of yard potentially available. Central Denver location with easy access to I-25, I-70, I-270, I-76 and US-36. Located in Opportunity and Enterprise Zones.
- 6 Drive Ins
Property Overview
1455 E 62nd Avenue is the ideal opportunity for buyers or tenants to secure a central location in the Denver metro with a powerful facility equipped with unique features. Spanning approximately 170,000 square feet, 1455 E 62nd Avenue is a best-in-class cold storage warehouse with adaptive reuse potential for a broad range of warehousing and manufacturing uses. The property has a drive-through building with a wash bay, eight dock doors with levelers, 10 drive-in doors, and three rail doors along two covered rail spurs for high-volume loading. Cold storage capabilities include 96,889 square feet of 60-degree cold storage space and a 9,471-square-foot 36-degree cooler. Administrative operations can be held here, with over 16,000 square feet of office space separated from the warehouse. 1455 E 62nd Avenue’s expansive 13.34-acre site is fenced and paved for the utmost security, and the zoning designation allows for trailer parking and outdoor storage. Located in Enterprise and Opportunity Zones near the heart of Denver, 1455 E 62nd Avenue is an exclusive opening in a high-demand node utilized by the likes of Amazon, Boise Cascade, Vistar, and more. Eagle Rock Distributing Company used the facility for a long period to distribute beer, wine, and spirits for high-profile brands like Anheuser-Busch, Sweetwater Brewing Co, Goose Island, Bare Bone Vodka, and many more – underpinning the logistical efficacy of this location. Highway 36 and Interstates 25, 70, 76, and 270 are all accessible within about five minutes, connecting tenants to key labor pools and Denver International Airport (DIA).
Refrigeration/Cold Storage Facility Facts
Demographics
Regional Accessibility
Presented by
Infill Industrial with Fenced Yard & Rail | 1455 E 62nd Ave
Hmm, there seems to have been an error sending your message. Please try again.
Thanks! Your message was sent.







