Log In/Sign Up
Your email has been sent.
14582 Highway 23-431 Hwy 10,000 SF 100% Leased Retail Building Hazel Green, AL 35750 $7,216,776 CAD ($721.68 CAD/SF)



Executive Summary
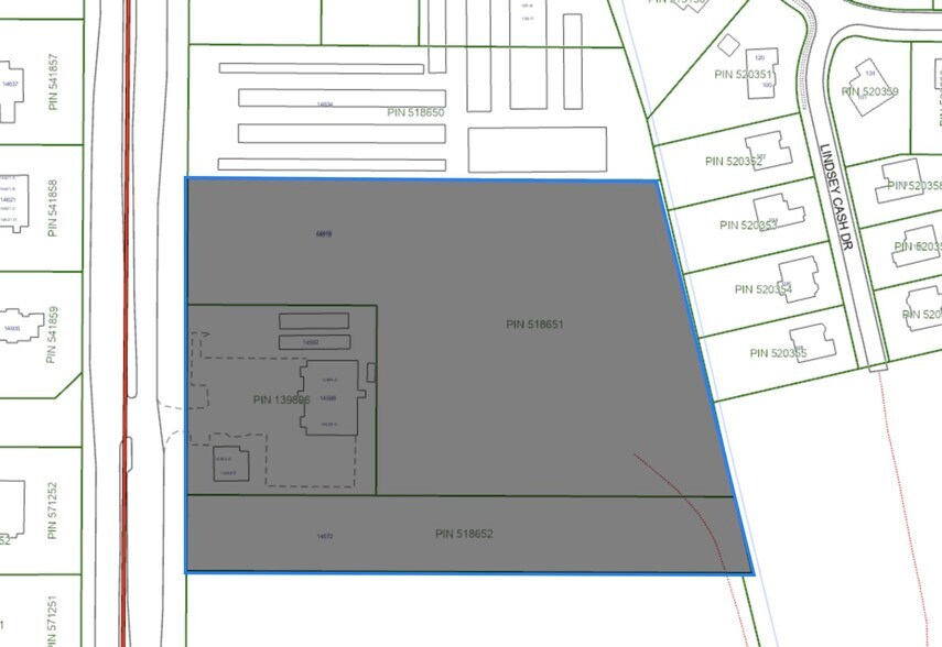
Three parcels totaling 11.6 +/- acres with 2 buildings and two mini storage buildings across the road from Walmart. The main building is 10,085sf, the two story building is 4,630sf, and the 2 mini storage buildings total 2200sf with 24 units. All tenant leases are month to month. 620 ft +/- of frontage. Traffic count is approximately 28,311 VPD. Sewer available. No Zoning. There is also a billboard on the property. PPIN#s 518651, 518652, & 139896.
Property Facts
Sale Type
Investment or Owner User
Property Type
Retail
Building Size
10,000 SF
Building Class
C
Year Built
1998
Price
$7,216,776 CAD
Price Per SF
$721.68 CAD
Percent Leased
100%
Building Height
1 Story
Building FAR
0.11
Lot Size
2.10 AC
Zoning
None
Nearby Major Retailers
Property Taxes
| Parcel Number | 03-04-19-0-000-001.001 | Improvements Assessment | $278,851 CAD |
| Land Assessment | $29,380 CAD | Total Assessment | $308,231 CAD |
Property Taxes
Parcel Number
03-04-19-0-000-001.001
Land Assessment
$29,380 CAD
Improvements Assessment
$278,851 CAD
Total Assessment
$308,231 CAD
1 of 4
Videos
Matterport 3D Exterior
Matterport 3D Tour
Photos
Street View
Street
Map
Presented by
14582 Highway 23-431 Hwy
Already a member? Log In
Hmm, there seems to have been an error sending your message. Please try again.
Thanks! Your message was sent.
Your message has been sent!
Activate your LoopNet account now to track properties, get real-time alerts, save time on future inquiries, and more.
