Log In/Sign Up
Your email has been sent.
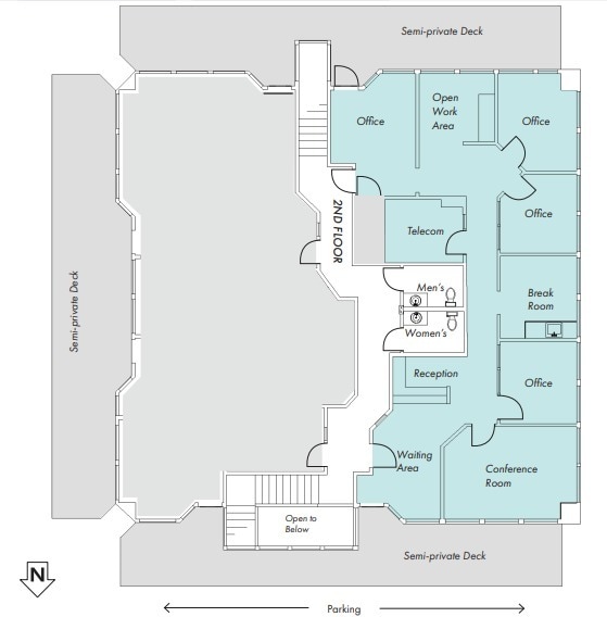
Forest Office Park Bldg E 14645 NE Bel Red Rd 1,728 SF of Office Space Available in Bellevue, WA 98007



Highlights
- Direct access from Bel-Red Rd and 148th Ave NE
- Comcast Business Class available
- On-site storage units available
All Available Space(1)
Display Rental Rate as
- Space
- Size
- Term
- Rental Rate
- Space Use
- Condition
- Available
Available Immediately Market Ready Condition Furniture Available
- Rate includes utilities, building services and property expenses
- Fits 5 - 14 People
- 1 Conference Room
- Market Ready
- Fully Built-Out as Standard Office
- 3 Private Offices
- Furniture Available
- Semi-Private Decks
| Space | Size | Term | Rental Rate | Space Use | Condition | Available |
| 2nd Floor, Ste 200 | 1,728 SF | Negotiable | $45.33 CAD/SF/YR $3.78 CAD/SF/MO $78,335 CAD/YR $6,528 CAD/MO | Office | Full Build-Out | Now |
2nd Floor, Ste 200
| Size |
| 1,728 SF |
| Term |
| Negotiable |
| Rental Rate |
| $45.33 CAD/SF/YR $3.78 CAD/SF/MO $78,335 CAD/YR $6,528 CAD/MO |
| Space Use |
| Office |
| Condition |
| Full Build-Out |
| Available |
| Now |
1 of 1
Videos
Matterport 3D Exterior
Matterport 3D Tour
Photos
Street View
Street
Map
2nd Floor, Ste 200
| Size | 1,728 SF |
| Term | Negotiable |
| Rental Rate | $45.33 CAD/SF/YR |
| Space Use | Office |
| Condition | Full Build-Out |
| Available | Now |
Available Immediately Market Ready Condition Furniture Available
- Rate includes utilities, building services and property expenses
- Fully Built-Out as Standard Office
- Fits 5 - 14 People
- 3 Private Offices
- 1 Conference Room
- Furniture Available
- Market Ready
- Semi-Private Decks
Features and Amenities
- 24 Hour Access
- Signage
- Balcony
Property Facts
Building Type
Office
Year Built
1988
Building Height
2 Stories
Building Size
12,383 SF
Building Class
B
Typical Floor Size
5,301 SF
Parking
32 Surface Parking Spaces
Covered Parking
Select Tenants
- Floor
- Tenant Name
- Industry
- 1st
- As Solution
- Professional, Scientific, and Technical Services
- 2nd
- Babysquare
- Wholesaler
- 1st
- Divya Performing Arts
- Educational Services
- 1st
- Northwest Pediatric Eye Care
- Health Care and Social Assistance
- 1st
- Schurorthodontics Net
- Public Administration
- Unknown
- Strategic Resources
- Professional, Scientific, and Technical Services
Moderately walkable
60/100
Exceptionally drivable
90/100
Some public transit
50/100
Fairly bikeable
50/100
1 of 4
Videos
Matterport 3D Exterior
Matterport 3D Tour
Photos
Street View
Street
Map
Presented by
Forest Office Park Bldg E | 14645 NE Bel Red Rd
Already a member? Log In
Hmm, there seems to have been an error sending your message. Please try again.
Thanks! Your message was sent.



