Your email has been sent.
14981 Walter Robinson ln - 1.25 Acre Lot in Haymarket 1.25 Acres of Commercial Land Offered at $1,296,028 CAD in Haymarket, VA 20169



Executive Summary
For Sale Subject to Special Use Permit or Rezoning: $1,500,000
For Sale with 90 day settlement: $950,000
Property Facts
| Price | $1,296,028 CAD | Property Type | Land |
| Sale Type | Owner User | Property Subtype | Commercial |
| No. Lots | 1 | Total Lot Size | 1.25 AC |
| Zoning | A-1 | ||
| Price | $1,296,028 CAD |
| Sale Type | Owner User |
| No. Lots | 1 |
| Property Type | Land |
| Property Subtype | Commercial |
| Total Lot Size | 1.25 AC |
| Zoning | A-1 |
1 Lot Available
Lot
| Price | $1,296,028 CAD | Lot Size | 1.25 AC |
| Price Per AC | $1,036,822.44 CAD |
| Price | $1,296,028 CAD |
| Price Per AC | $1,036,822.44 CAD |
| Lot Size | 1.25 AC |
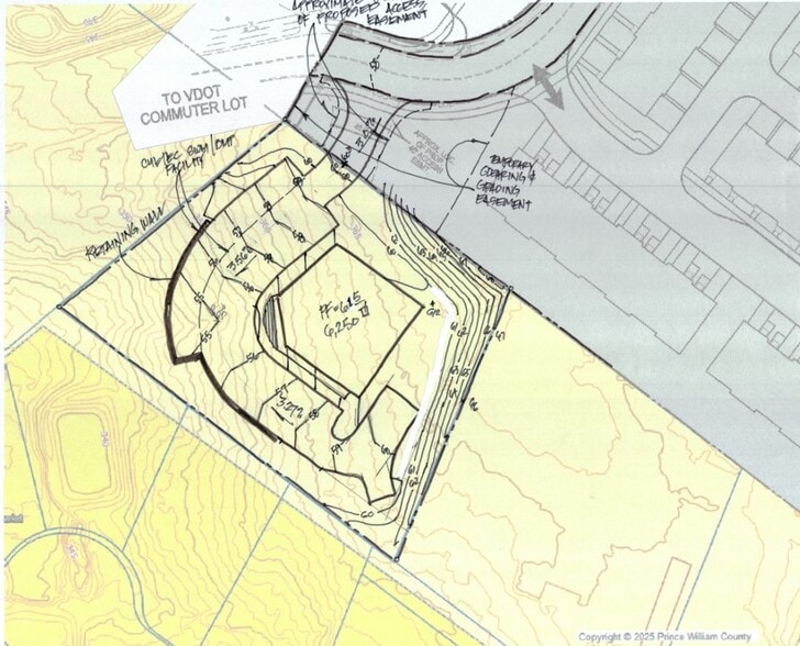
Join Sprouts, Panera, Wawa, Chipotle and the Haymarket Hospital at the corner of US 15, I66 and Heathcote Blvd at this 1.25 acre lot in Haymarket VA. A-1 Agriculture in Prince William County and Comp Planned for Mixed Use.
Description
Join Sprouts, Panera, Wawa, Chipotle and the Haymarket Hospital at the corner of US 15, I66 and Heathcote Blvd at this 1.25 acre lot in Haymarket VA. A-1 Agriculturein Prince William County and Comp Planned for Mixed Use.With Special Use Permit allows daycare, school, church, vet hospital, commercial kennels, garden center, and landscaping service, see completelist on zoning docs. Commuter park and ride adjacent to property could be ideal for overflow parking. Located near the I- 66 and US-15 interchange as well as the UVA Health Haymarket Medical Center, the communities of Piedmont and Dominion Valley. GPIN#: 7298-92-2118. For Sale Subject to Special Use Permit or Rezoning: $1,500,000 For Sale with 90 day settlement: $950,000
Property Taxes
| Parcel Number | 7298-92-2118 | Improvements Assessment | $0 CAD |
| Land Assessment | $160,641 CAD | Total Assessment | $160,641 CAD |
Property Taxes
Presented by
14981 Walter Robinson ln - 1.25 Acre Lot in Haymarket
Hmm, there seems to have been an error sending your message. Please try again.
Thanks! Your message was sent.
