Log In/Sign Up
Your email has been sent.
Vacant Storage Land 15 Stock Rd 0.11 Acres of Industrial Land for Lease in West Hanningfield CM2 8LP


Highlights
- On Site Steel Cabin
- Gated Hard Surfaced Yar
- Private WC and Kitchen
LOT Available
Display Rental Rate as
| Rental Rate |
|
Lot Size | 0.11 AC |
| Lease Term | Negotiable |
| Rental Rate | |
| Lease Term | Negotiable |
| Lot Size | 0.11 AC |
Yard 15 offering approx 4,800ft2 (446m2) with the benefit of 32ft x 10ft cabin made of steel construction which houses a break room, kitchen and WC
Property Overview
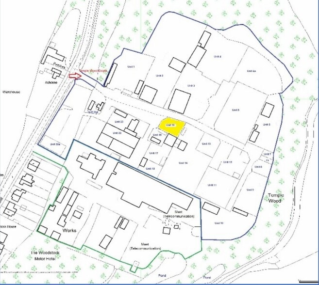
Temple Wood Estate is located on the Stock Road (B1008) with junction 16 of A12 being just half a mile distant. The popular site has variety of occupiers.
Property Facts
| Total Space Available | 0.11 AC | Property Subtype | Industrial |
| Property Type | Land |
| Total Space Available | 0.11 AC |
| Property Type | Land |
| Property Subtype | Industrial |
1 1
1 of 3
Videos
Matterport 3D Exterior
Matterport 3D Tour
Photos
Street View
Street
Map
1 of 1
Presented by
Vacant Storage Land | 15 Stock Rd
Already a member? Log In
Hmm, there seems to have been an error sending your message. Please try again.
Thanks! Your message was sent.
