Log In/Sign Up
Your email has been sent.
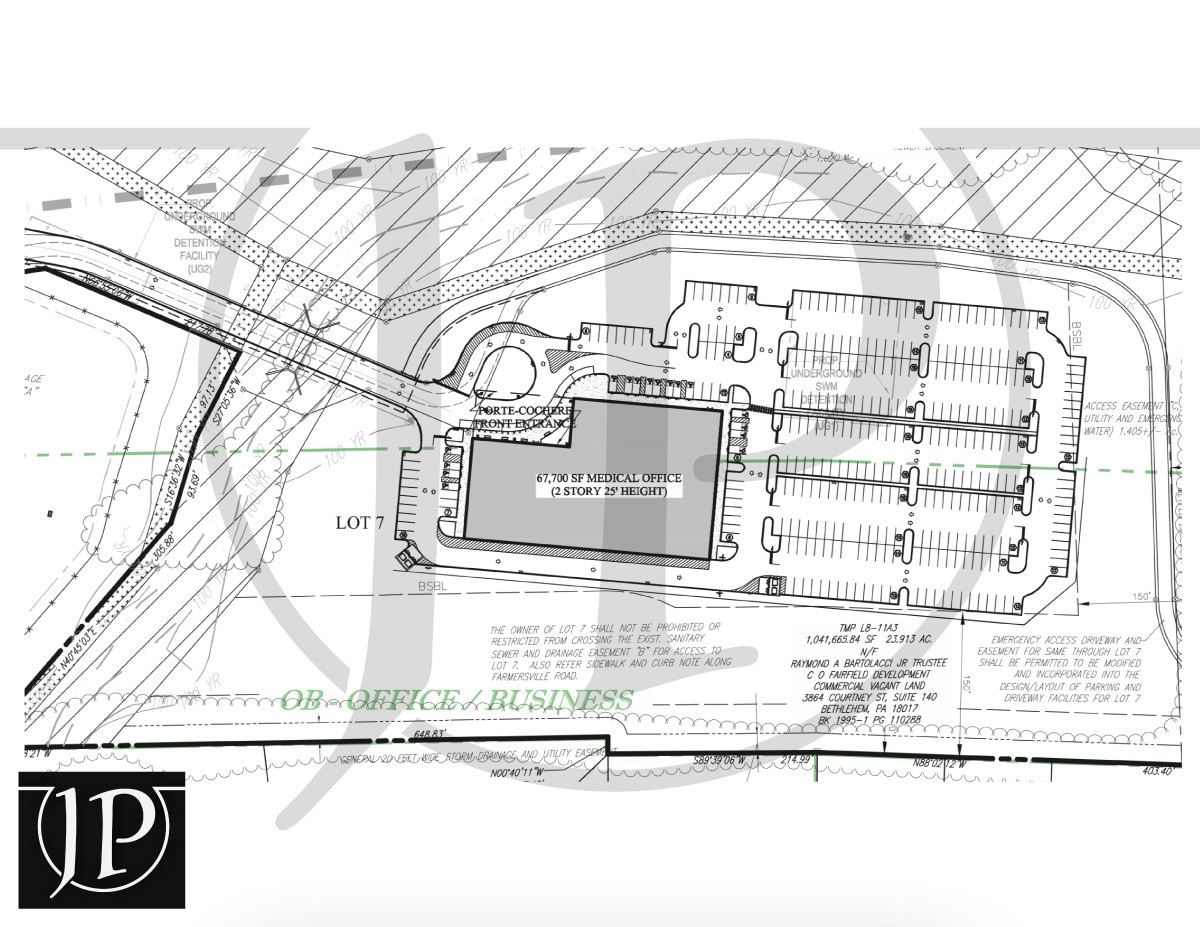
150 Commerce Park Dr
Easton, PA 18045
67700 SQ FT Medical Office/Business Office bu · Office/Medical Property For Lease
·
67,700 SF


Property Overview
67,700 square feet (gross) by (2) two-story Medical Office/Business Office building, designed with a Porte-cochere front entrance, on 23.8 acre campus w/access to existing public water, public sewage, UGI gas service, with fully designed and approved storm water management facilities; accessed off of the Hecktown Road / Route 33 northbound interchange with Commerce Park Drive, at a fully improved signalized intersection. Copy and paste video link http://youtu.be/s3NBmoEYpcg
Property Facts
Building Type
Office
Year Built
2027
Building Height
2 Stories
Building Size
67,700 SF
Building Class
B
Typical Floor Size
33,850 SF
1 of 11
Videos
Matterport 3D Exterior
Matterport 3D Tour
Photos
Street View
Street
Map
