Your email has been sent.
150 Parramatta Rd 7,029 SF of Flex Space Available in Stanmore, NSW 2048



Highlights
- High-exposure location with dual street frontage and rear lane access.
- Ability to park cars within the showroom and warehouse areas.
Features
All Available Space(1)
Display Rental Rate as
- Space
- Size
- Term
- Rental Rate
- Space Use
- Build-Out
- Available
The 3 spaces in this building must be leased together, for a total size of 7,029 SF (Contiguous Area):
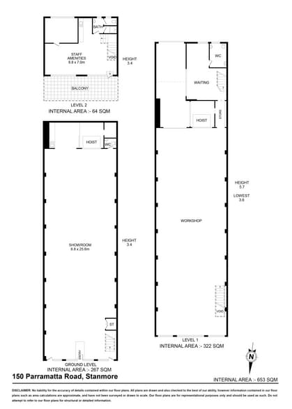
150 Parramatta Road offers a rare opportunity to secure a high-exposure showroom and workshop facility in the heart of Sydney’s Inner West. Positioned along Parramatta Road with dual street frontage and rear lane access, this property provides exceptional visibility and accessibility just 6 km* from the CBD. The building spans 653 m²* across three functional levels, including a ground floor showroom, a first-floor workshop, and a second-floor caretaker unit. The property is council-approved for mechanical workshop use and features a goods hoist, additional mezzanine storage, and the ability to park vehicles within the showroom and warehouse areas. With prominent signage rights and a long lease available, this is a unique offering not seen on the market for over 30 years. The location benefits from immediate access to major arterial routes including City West Link and Parramatta Road, ensuring strong connectivity to the CBD and surrounding suburbs. The first floor comprises a council-approved mechanical workshop with generous ceiling heights and a goods hoist connecting to the showroom below. This level is included in the full-building lease and is not available individually.
- Space is in Excellent Condition
- Central Air Conditioning
- High-exposure location with dual street frontage
- Prominent signage rights
- Staff amenities
- 1 Drive Bay
- Private Restrooms
- Ground floor showroom with vehicle access
- Long lease terms available
| Space | Size | Term | Rental Rate | Space Use | Build-Out | Available |
| Ground, 1st Floor, 2nd Floor | 7,029 SF | Negotiable | Upon Request Upon Request Upon Request Upon Request | Flex | Partial Build-Out | Now |
Ground, 1st Floor, 2nd Floor
The 3 spaces in this building must be leased together, for a total size of 7,029 SF (Contiguous Area):
| Size |
|
Ground - 2,874 SF
1st Floor - 3,466 SF
2nd Floor - 689 SF
|
| Term |
| Negotiable |
| Rental Rate |
| Upon Request Upon Request Upon Request Upon Request |
| Space Use |
| Flex |
| Build-Out |
| Partial Build-Out |
| Available |
| Now |
Ground, 1st Floor, 2nd Floor
| Size |
Ground - 2,874 SF
1st Floor - 3,466 SF
2nd Floor - 689 SF
|
| Term | Negotiable |
| Rental Rate | Upon Request |
| Space Use | Flex |
| Build-Out | Partial Build-Out |
| Available | Now |
150 Parramatta Road offers a rare opportunity to secure a high-exposure showroom and workshop facility in the heart of Sydney’s Inner West. Positioned along Parramatta Road with dual street frontage and rear lane access, this property provides exceptional visibility and accessibility just 6 km* from the CBD. The building spans 653 m²* across three functional levels, including a ground floor showroom, a first-floor workshop, and a second-floor caretaker unit. The property is council-approved for mechanical workshop use and features a goods hoist, additional mezzanine storage, and the ability to park vehicles within the showroom and warehouse areas. With prominent signage rights and a long lease available, this is a unique offering not seen on the market for over 30 years. The location benefits from immediate access to major arterial routes including City West Link and Parramatta Road, ensuring strong connectivity to the CBD and surrounding suburbs. The first floor comprises a council-approved mechanical workshop with generous ceiling heights and a goods hoist connecting to the showroom below. This level is included in the full-building lease and is not available individually.
- Space is in Excellent Condition
- 1 Drive Bay
- Central Air Conditioning
- Private Restrooms
- High-exposure location with dual street frontage
- Ground floor showroom with vehicle access
- Prominent signage rights
- Long lease terms available
- Staff amenities
Property Overview
The property at 150 Parramatta Road, Stanmore, is a three-level building totaling 653 m²*. It includes a ground floor showroom, a first-floor workshop, and a second-floor caretaker unit. The site has dual street frontage, rear lane access, and is located approximately 6 km from the Sydney CBD. It is accessible via Parramatta Road and City West Link. The property is council-approved for mechanical workshop use and includes a goods hoist and additional mezzanine storage.
Property Facts
Presented by
150 Parramatta Rd
Hmm, there seems to have been an error sending your message. Please try again.
Thanks! Your message was sent.



