Your email has been sent.
1500 Route 112 Building 7 1500 Route 112 3,400 - 20,450 SF of Office/Medical Space Available in Port Jefferson Station, NY 11776



Highlights
- Frontage on NYS Route 112, offering prime visibility and accessibility. High traffic flow.
- Brand new building within the attractive Washington Professional Park, situated in an area with strong demographics, providing long-term opportunity.
- Conveniently accessible by public transportation and surrounded by nearby amenities.
- Available Spring 2026 gives you the ability to design your optimal interior layout now.
- Within close proximity to three major Hospitals (Mather, St. Charles, and Stony Brook).
All Available Spaces(2)
Display Rental Rate as
- Space
- Size
- Term
- Rental Rate
- Space Use
- Build-Out
- Available
Brand new two story office building within the Washington Professional Park. High visibility with frontage directly on heavily trafficked New York State Route 112. Close proximity to three area Hospitals (Stony Brook University Hospital, John T. Mather Hospital and St. Charles Hospital). Divisible from 3400 sqft up to 20,500 sqft contiguous. Shell is ready for interior buildout. occupancy in early 2026. Wide open ready to be customized - Landlord will contribute work letter towards interior buildout
- Lease rate does not include utilities, property expenses or building services
- Central Air Conditioning
- Accent Lighting
- Brand new 2025
- Can be combined with additional space(s) for up to 20,450 SF of adjacent space
- After Hours HVAC Available
- Atrium
Brand new two story office building within the Washington Professional Park. High visibility with frontage directly on heavily trafficked New York State Route 112. Close proximity to three area Hospitals (Stony Brook University Hospital, John T. Mather Hospital and St. Charles Hospital). Divisible from 3400 sqft up to 20,500 sqft contiguous. Shell is ready for interior buildout. occupancy in early 2026. Landlord is offering a work letter towards interior buildout
- Lease rate does not include utilities, property expenses or building services
- Central Air Conditioning
- After Hours HVAC Available
- High Visibility, Heavy Traffic Count
- Medical Office Park
- Can be combined with additional space(s) for up to 20,450 SF of adjacent space
- Corner Space
- Accent Lighting
- Brand New Building
| Space | Size | Term | Rental Rate | Space Use | Build-Out | Available |
| 1st Floor | 4,000-9,450 SF | 1-15 Years | $47.96 CAD/SF/YR $4.00 CAD/SF/MO $453,263 CAD/YR $37,772 CAD/MO | Office/Medical | Shell Space | Now |
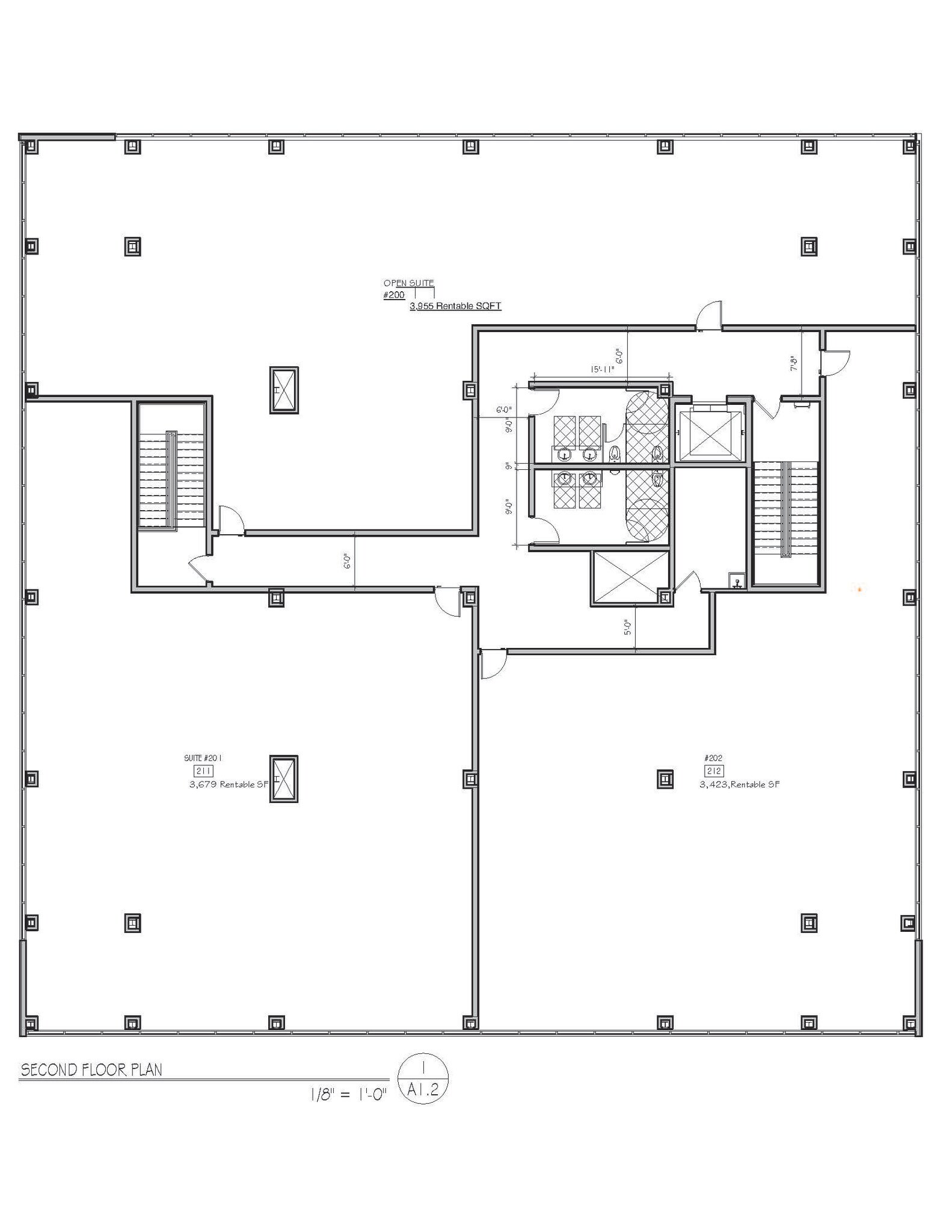
| 2nd Floor | 3,400-11,000 SF | 1-15 Years | $47.96 CAD/SF/YR $4.00 CAD/SF/MO $527,608 CAD/YR $43,967 CAD/MO | Office/Medical | Shell Space | Now |
1st Floor
| Size |
| 4,000-9,450 SF |
| Term |
| 1-15 Years |
| Rental Rate |
| $47.96 CAD/SF/YR $4.00 CAD/SF/MO $453,263 CAD/YR $37,772 CAD/MO |
| Space Use |
| Office/Medical |
| Build-Out |
| Shell Space |
| Available |
| Now |
2nd Floor
| Size |
| 3,400-11,000 SF |
| Term |
| 1-15 Years |
| Rental Rate |
| $47.96 CAD/SF/YR $4.00 CAD/SF/MO $527,608 CAD/YR $43,967 CAD/MO |
| Space Use |
| Office/Medical |
| Build-Out |
| Shell Space |
| Available |
| Now |
1st Floor
| Size | 4,000-9,450 SF |
| Term | 1-15 Years |
| Rental Rate | $47.96 CAD/SF/YR |
| Space Use | Office/Medical |
| Build-Out | Shell Space |
| Available | Now |
Brand new two story office building within the Washington Professional Park. High visibility with frontage directly on heavily trafficked New York State Route 112. Close proximity to three area Hospitals (Stony Brook University Hospital, John T. Mather Hospital and St. Charles Hospital). Divisible from 3400 sqft up to 20,500 sqft contiguous. Shell is ready for interior buildout. occupancy in early 2026. Wide open ready to be customized - Landlord will contribute work letter towards interior buildout
- Lease rate does not include utilities, property expenses or building services
- Can be combined with additional space(s) for up to 20,450 SF of adjacent space
- Central Air Conditioning
- After Hours HVAC Available
- Accent Lighting
- Atrium
- Brand new 2025
2nd Floor
| Size | 3,400-11,000 SF |
| Term | 1-15 Years |
| Rental Rate | $47.96 CAD/SF/YR |
| Space Use | Office/Medical |
| Build-Out | Shell Space |
| Available | Now |
Brand new two story office building within the Washington Professional Park. High visibility with frontage directly on heavily trafficked New York State Route 112. Close proximity to three area Hospitals (Stony Brook University Hospital, John T. Mather Hospital and St. Charles Hospital). Divisible from 3400 sqft up to 20,500 sqft contiguous. Shell is ready for interior buildout. occupancy in early 2026. Landlord is offering a work letter towards interior buildout
- Lease rate does not include utilities, property expenses or building services
- Can be combined with additional space(s) for up to 20,450 SF of adjacent space
- Central Air Conditioning
- Corner Space
- After Hours HVAC Available
- Accent Lighting
- High Visibility, Heavy Traffic Count
- Brand New Building
- Medical Office Park
Property Overview
New 20,450 square foot, two story building, located within in Washington Professional Park. This brand-new construction has high visibility and ample frontage along highly trafficked NYS Route 112 in Port Jefferson Station. The entire 20,450 square foot building is available for a single tenant or can be divided for multi-tenant use with smaller offices starting at 3,400 sqft. The grounds are impeccably maintained and there is an abundance of parking available. The shell is now ready for an interior buildout and occupancy by spring.
- 24 Hour Access
- Property Manager on Site
- Car Charging Station
- Monument Signage
- Air Conditioning
Property Facts
Presented by
Nelin Real Estate Group
1500 Route 112 Building 7 | 1500 Route 112
Hmm, there seems to have been an error sending your message. Please try again.
Thanks! Your message was sent.


