Log In/Sign Up
Your email has been sent.
15009 Lancaster Hwy
Charlotte, NC 28277
Office Property For Lease
·
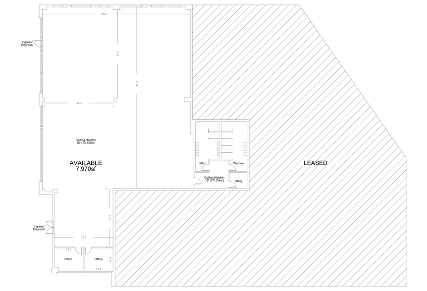
7,970 SF


Highlights
- Ample Parking
- Prominent signage opportunities
Property Overview
Step into a versatile office space that offers a large open layout, perfect for customizing to your business needs. Located in Old Lancaster Town Center and surrounded by a mix of medical practices, dining options and retail services. This prime location provides a seamless blend of professional amenities and everyday conveniences, making it an ideal choice for businesses seeking a dynamic and accessible environment. Elevate your operations in a space designed to inspire productivity and success.
Property Facts
Building Type
Office
Year Built
2006
Building Height
1 Story
Building Size
20,000 SF
Building Class
B
Typical Floor Size
20,000 SF
Unfinished Ceiling Height
15’
Parking
87 Surface Parking Spaces
1 of 10
Videos
Matterport 3D Exterior
Matterport 3D Tour
Photos
Street View
Street
Map
