Log In/Sign Up
Your email has been sent.
15030 Willows 15032 NE 95th St 6,197 SF of Flex Space Available in Redmond, WA 98052



FEATURES
Clear Height
16’
Drive In Bays
1
Exterior Dock Doors
1
Standard Parking Spaces
30
ALL AVAILABLE SPACE(1)
Display Rental Rate as
- SPACE
- SIZE
- TERM
- RENTAL RATE
- SPACE USE
- CONDITION
- AVAILABLE
- Includes 3,652 SF of dedicated office space
| Space | Size | Term | Rental Rate | Space Use | Condition | Available |
| 1st Floor | 6,197 SF | Negotiable | Upon Request Upon Request Upon Request Upon Request | Flex | - | 60 Days |
1st Floor
| Size |
| 6,197 SF |
| Term |
| Negotiable |
| Rental Rate |
| Upon Request Upon Request Upon Request Upon Request |
| Space Use |
| Flex |
| Condition |
| - |
| Available |
| 60 Days |
1 of 1
VIDEOS
MATTERPORT 3D EXTERIOR
MATTERPORT 3D TOUR
PHOTOS
STREET VIEW
STREET
MAP
1st Floor
| Size | 6,197 SF |
| Term | Negotiable |
| Rental Rate | Upon Request |
| Space Use | Flex |
| Condition | - |
| Available | 60 Days |
- Includes 3,652 SF of dedicated office space
PROPERTY OVERVIEW
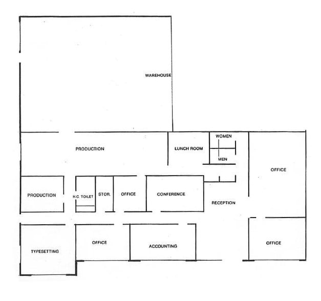
» Available within 60 days from signed lease » Nicely built out office space, reception area, conference room, kitchenette and a good mix of private offices and open space » Grade level loading » 16’ clearance in warehouse » Functional floor plan / space plan attached » Excellent Willows location off of NE 95th with retail services nearby » Good parking surrounding building. Reserved parking in front of space.
PROPERTY FACTS
Building Size
12,264 SF
Lot Size
0.79 AC
Year Built
1987
Construction
Reinforced Concrete
Zoning
MP, Redmond
1 1
Bike Score®
Very Bikeable (81)
1 of 6
VIDEOS
MATTERPORT 3D EXTERIOR
MATTERPORT 3D TOUR
PHOTOS
STREET VIEW
STREET
MAP
1 of 1
Presented by
15030 Willows | 15032 NE 95th St
Already a member? Log In
Hmm, there seems to have been an error sending your message. Please try again.
Thanks! Your message was sent.


