Log In/Sign Up
Your email has been sent.
Highlights
- Professional Park Setting
Features
Drive In Bays
2
Standard Parking Spaces
15
All Available Space(1)
Display Rental Rate as
- Space
- Size
- Term
- Rental Rate
- Space Use
- Build-Out
- Available
- 2 Drive Ins
- Space is in Excellent Condition
| Space | Size | Term | Rental Rate | Space Use | Build-Out | Available |
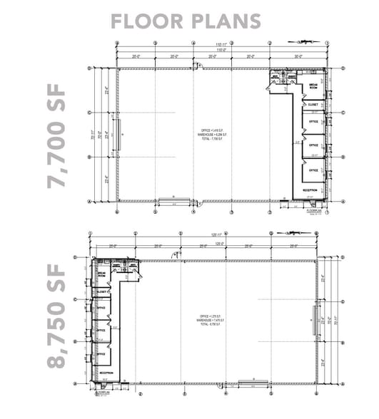
| 1st Floor - A | 9,800 SF | Negotiable | Upon Request Upon Request Upon Request Upon Request | Industrial | Full Build-Out | Now |
1st Floor - A
| Size |
| 9,800 SF |
| Term |
| Negotiable |
| Rental Rate |
| Upon Request Upon Request Upon Request Upon Request |
| Space Use |
| Industrial |
| Build-Out |
| Full Build-Out |
| Available |
| Now |
1st Floor - A
| Size | 9,800 SF |
| Term | Negotiable |
| Rental Rate | Upon Request |
| Space Use | Industrial |
| Build-Out | Full Build-Out |
| Available | Now |
- 2 Drive Ins
- Space is in Excellent Condition
Warehouse Facility Facts
Building Size
9,800 SF
Lot Size
0.34 AC
Year Built
2024
Power Supply
Amps: 400 Volts: 480 Phase: 3
Zoning
N/A - N/A
1 1
Somewhat walkable
20/100
Exceptionally drivable
100/100
Fairly bikeable
40/100
1 of 9
Videos
Matterport 3D Exterior
Matterport 3D Tour
Photos
Street View
Street
Map
1 of 1
Presented by
15046 Boudreaux Rd
Already a member? Log In
Hmm, there seems to have been an error sending your message. Please try again.
Thanks! Your message was sent.



