Your email has been sent.
Highlights
- Heavy foot traffic
Space Availability (1)
Display Rental Rate as
- Space
- Size
- Term
- Rental Rate
- Rent Type
| Space | Size | Term | Rental Rate | Rent Type | ||
| 2nd Floor | 606-5,420 SF | Negotiable | Upon Request Upon Request Upon Request Upon Request | Full Service |
2nd Floor
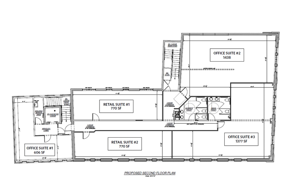
Recently renovated building with 5,420 SF of second floor office or retail space available. Prime location in the town of Purcellville. The space is divisible and has many layout possibilites. Rates- -Office: $26/SF - Full-service net of cleaning -Retail:$25/SF NNN
- Rate includes utilities, building services and property expenses
- Mostly Open Floor Plan Layout
- Space is in Excellent Condition
- Located in-line with other retail
- Prime Location
- Just Renovated
Rent Types
The rent amount and type that the tenant (lessee) will be responsible to pay to the landlord (lessor) throughout the lease term is negotiated prior to both parties signing a lease agreement. The rent type will vary depending upon the services provided. For example, triple net rents are typically lower than full service rents due to additional expenses the tenant is required to pay in addition to the base rent. Contact the listing broker for a full understanding of any associated costs or additional expenses for each rent type.
1. Full Service: A rental rate that includes normal building standard services as provided by the landlord within a base year rental.
2. Double Net (NN): Tenant pays for only two of the building expenses; the landlord and tenant determine the specific expenses prior to signing the lease agreement.
3. Triple Net (NNN): A lease in which the tenant is responsible for all expenses associated with their proportional share of occupancy of the building.
4. Modified Gross: Modified Gross is a general type of lease rate where typically the tenant will be responsible for their proportional share of one or more of the expenses. The landlord will pay the remaining expenses. See the below list of common Modified Gross rental rate structures: 4. Plus All Utilities: A type of Modified Gross Lease where the tenant is responsible for their proportional share of utilities in addition to the rent. 4. Plus Cleaning: A type of Modified Gross Lease where the tenant is responsible for their proportional share of cleaning in addition to the rent. 4. Plus Electric: A type of Modified Gross Lease where the tenant is responsible for their proportional share of the electrical cost in addition to the rent. 4. Plus Electric & Cleaning: A type of Modified Gross Lease where the tenant is responsible for their proportional share of the electrical and cleaning cost in addition to the rent. 4. Plus Utilities and Char: A type of Modified Gross Lease where the tenant is responsible for their proportional share of the utilities and cleaning cost in addition to the rent. 4. Industrial Gross: A type of Modified Gross lease where the tenant pays one or more of the expenses in addition to the rent. The landlord and tenant determine these prior to signing the lease agreement.
5. Tenant Electric: The landlord pays for all services and the tenant is responsible for their usage of lights and electrical outlets in the space they occupy.
6. Negotiable or Upon Request: Used when the leasing contact does not provide the rent or service type.
7. TBD: To be determined; used for buildings for which no rent or service type is known, commonly utilized when the buildings are not yet built.
Property Facts
| Total Space Available | 5,420 SF | Gross Leasable Area | 10,840 SF |
| Min. Divisible | 606 SF | Year Built/Renovated | 1921/2021 |
| Property Type | Retail | Parking Ratio | 1.94/1,000 SF |
| Property Subtype | Storefront Retail/Office |
| Total Space Available | 5,420 SF |
| Min. Divisible | 606 SF |
| Property Type | Retail |
| Property Subtype | Storefront Retail/Office |
| Gross Leasable Area | 10,840 SF |
| Year Built/Renovated | 1921/2021 |
| Parking Ratio | 1.94/1,000 SF |
About the Property
Renovation just complete. Located in the heart of Loudoun County, Purcellville offers the perfect blend of small-town charm and modern business potential. This thriving historic district attracts both locals and visitors, thanks to its walkable downtown, vibrant restaurant scene, and strong sense of community. With steady foot traffic, proximity to Route 7, and a business-friendly environment, it’s an ideal location for office users, boutique retailers, and service providers looking to capitalize on a loyal customer base. Surrounded by wineries, outdoor recreation, and a growing residential market, Purcellville provides a rare opportunity to establish your business in a sought-after destination with both local and regional appeal.
- Signage
- Air Conditioning
Nearby Major Retailers
Presented by
151 W Main St
Hmm, there seems to have been an error sending your message. Please try again.
Thanks! Your message was sent.






