Log In/Sign Up
Your email has been sent.
1514 Progress Dr 59,200 SF Industrial Building Albion, IN 46701 For Sale



Executive Summary
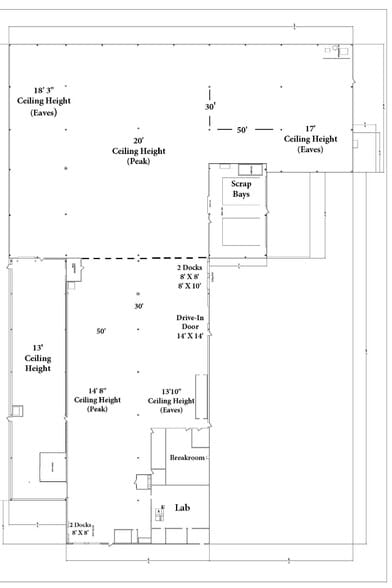
Introducing an exceptional opportunity in Albion, IN! This Industrial Property at 1514 Progress Dr. offers 59,200 Sq. Ft. of space on 5.89 Acres, with features like full air conditioning, ceiling heights of 13' to 20', 1,200 amp electric service, 4 truck docks, and 1 drive-in door. The property, available immediately , is versatile with potential for subdivision. The well-maintained site boasts pre-engineered steel construction, standing seam metal roof, and 6" reinforced concrete floors. Desirable amenities include a generous parking lot with 84 spaces, 13 ground-mounted HVAC units, and energy-efficient LED lighting. Additionally, the property benefits from a strategic location near major roadways like SR 8 and I-69. Don't miss the chance to explore this prime industrial space, ideal for various business ventures. Take advantage of the competitive lease rate of $3.95 /SF/yr (NNN). Contact the listing agents for more information before this opportunity slips away! Sale Price: Ask Broker
Taxes & Operating Expenses (Actual - 2024) Click Here to Access |
Annual (CAD) | Annual Per SF (CAD) |
|---|---|---|
| Taxes |
-
|
-
|
| Operating Expenses |
-
|
-
|
| Total Expenses |
$99,999
|
$9.99
|
Taxes & Operating Expenses (Actual - 2024) Click Here to Access
| Taxes (CAD) | |
|---|---|
| Annual | - |
| Annual Per SF | - |
| Operating Expenses (CAD) | |
|---|---|
| Annual | - |
| Annual Per SF | - |
| Total Expenses (CAD) | |
|---|---|
| Annual | $99,999 |
| Annual Per SF | $9.99 |
Property Facts
| Sale Type | Owner User | No. Stories | 1 |
| Property Type | Industrial | Year Built | 1994 |
| Property Subtype | Manufacturing | Parking Ratio | 0.73/1,000 SF |
| Building Class | C | Clear Ceiling Height | 20’ |
| Lot Size | 6.27 AC | No. Dock-High Doors/Loading | 4 |
| Rentable Building Area | 59,200 SF | No. Drive In / Grade-Level Doors | 1 |
| Zoning | IH - Industrial Light | ||
| Sale Type | Owner User |
| Property Type | Industrial |
| Property Subtype | Manufacturing |
| Building Class | C |
| Lot Size | 6.27 AC |
| Rentable Building Area | 59,200 SF |
| No. Stories | 1 |
| Year Built | 1994 |
| Parking Ratio | 0.73/1,000 SF |
| Clear Ceiling Height | 20’ |
| No. Dock-High Doors/Loading | 4 |
| No. Drive In / Grade-Level Doors | 1 |
| Zoning | IH - Industrial Light |
Amenities
- Air Conditioning
Space Availability
- Space
- Size
- Space Use
- Build-Out
- Available
Fully air conditioned Ceiling height 13' to 20' 1,200 amp electric service Four truck docks & one drive-in door Will consider subdividing Available immediately Lease Rate $3.95/SF/yr (NNN)
| Space | Size | Space Use | Build-Out | Available |
| 1st Floor | 46,700 SF | Industrial | Partial Build-Out | 90 Days |
1st Floor
| Size |
| 46,700 SF |
| Space Use |
| Industrial |
| Build-Out |
| Partial Build-Out |
| Available |
| 90 Days |
1st Floor
| Size | 46,700 SF |
| Space Use | Industrial |
| Build-Out | Partial Build-Out |
| Available | 90 Days |
Fully air conditioned Ceiling height 13' to 20' 1,200 amp electric service Four truck docks & one drive-in door Will consider subdividing Available immediately Lease Rate $3.95/SF/yr (NNN)
1 1
Somewhat walkable
20/100
Exceptionally drivable
100/100
Somewhat bikeable
30/100
Property Taxes
| Parcel Numbers | Improvements Assessment | $1,361,239 CAD (2025) | |
| Land Assessment | $110,231 CAD (2025) | Total Assessment | $1,471,469 CAD (2025) |
Property Taxes
Parcel Numbers
Land Assessment
$110,231 CAD (2025)
Improvements Assessment
$1,361,239 CAD (2025)
Total Assessment
$1,471,469 CAD (2025)
1 of 10
Videos
Matterport 3D Exterior
Matterport 3D Tour
Photos
Street View
Street
Map
1 of 1
Presented by
1514 Progress Dr
Already a member? Log In
Hmm, there seems to have been an error sending your message. Please try again.
Thanks! Your message was sent.
