Log In/Sign Up
Your email has been sent.
LOT Available
Display Rental Rate as
| Rental Rate |
|
Lot Size | 2.00 - 16.00 AC |
| Lease Term | Negotiable |
| Rental Rate | |
| Lease Term | Negotiable |
| Lot Size | 2.00 - 16.00 AC |
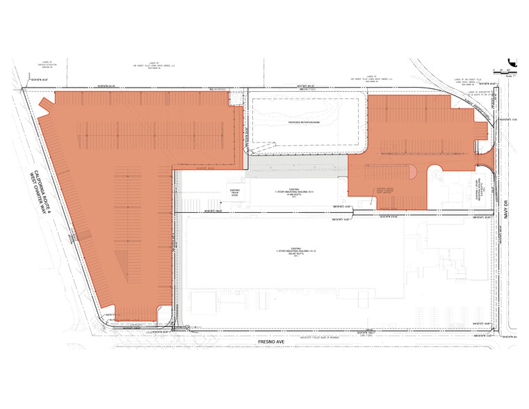
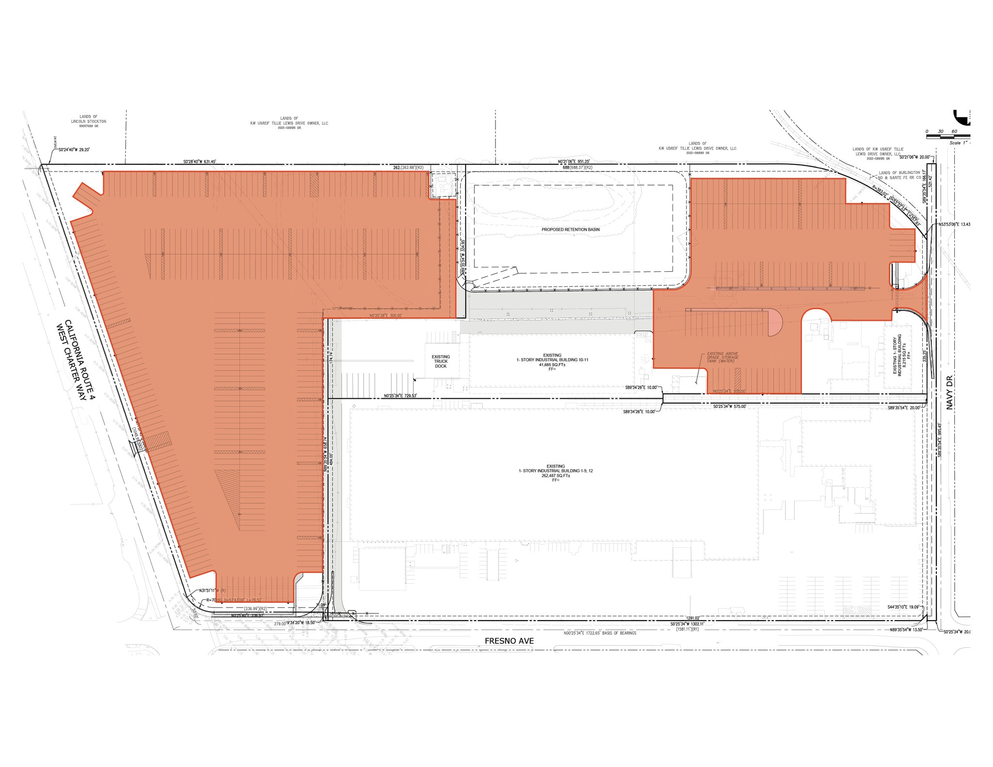
±110 - 407 trailer stall positions available. Ideal for trailer storage, equipment storage or construction material, all subject to City of Stockton approval. Yard will be paved and secured with electronic access gates and site-wide LED lighting.
Property Facts
1 1
1 of 2
Videos
Matterport 3D Exterior
Matterport 3D Tour
Photos
Street View
Street
Map
1 of 1
Presented by
1515 S Fresno Ave
Already a member? Log In
Hmm, there seems to have been an error sending your message. Please try again.
Thanks! Your message was sent.

