Log In/Sign Up
Your email has been sent.
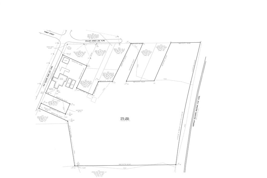
1524 Old Atlanta Rd - IOS Development Opportunity - Griffin, GA 8.14 Acres of Industrial Land in Griffin, GA 30223



Investment Highlights
- +/- 8.14 acres of industrial land with multiple uses — i.e., IOS, laydown yard, redevelopment, salvage/recycling.
- Recent site improvements include a renovated building with a cleared yard.
- The upstairs features the owner's suite with a private bathroom.
- Phase 1 and the survey are available.
- The building's main floor includes three attached garages and a main office space that can be easily divided into two separate rooms
- The property is 28 miles from Hartsfield-Jackson Atlanta International Airport.
Executive Summary
Sands Investment Group is pleased to exclusively offer for sale or for lease the IOS Development Opportunity at 1524 Old Atlanta Rd in Griffin, GA. The offering includes a fully renovated 1,888 SF structure suitable for a variety of uses. Strategically positioned with convenient access to US 19/41, the property is zoned for Planned Industrial Development (PID), making it ideal for future growth and development.
Property Facts
| Sale Type | Investment | Proposed Use | |
| No. Lots | 1 | Total Lot Size | 8.14 AC |
| Property Type | Land | Opportunity Zone |
Yes
|
| Property Subtype | Industrial | ||
| Zoning | PID - Planned Industrial Development (PID) | ||
| Sale Type | Investment |
| No. Lots | 1 |
| Property Type | Land |
| Property Subtype | Industrial |
| Proposed Use | |
| Total Lot Size | 8.14 AC |
| Opportunity Zone |
Yes |
| Zoning | PID - Planned Industrial Development (PID) |
1 Lot Available
Lot
| Lot Size | 8.14 AC |
| Lot Size | 8.14 AC |
Description
The property consists of 8.14 acres of industrial land located at 1524 Old Atlanta Road in Griffin, Georgia. It is zoned for Planned Industrial Development and includes a renovated building with office space and attached garages. The site is positioned near US 19/41, approximately 4 miles from Downtown Griffin and 36 miles from Downtown Atlanta. Hartsfield-Jackson Atlanta International Airport is located about 28 miles from the property.
1 1
Fairly walkable
50/100
Exceptionally drivable
100/100
Fairly bikeable
40/100
Property Taxes
| Parcel Number | 067-05-009 | Improvements Assessment | $198,918 CAD |
| Land Assessment | $88,540 CAD | Total Assessment | $287,458 CAD |
Property Taxes
Parcel Number
067-05-009
Land Assessment
$88,540 CAD
Improvements Assessment
$198,918 CAD
Total Assessment
$287,458 CAD
1 of 7
Videos
Matterport 3D Exterior
Matterport 3D Tour
Photos
Street View
Street
Map
1 of 1
Presented by
1524 Old Atlanta Rd - IOS Development Opportunity - Griffin, GA
Already a member? Log In
Hmm, there seems to have been an error sending your message. Please try again.
Thanks! Your message was sent.
