Your email has been sent.
Dental/ Medical / Salon 15283 Amberly Dr 1,600 SF of Office/Medical Space Available in Tampa, FL 33647



Highlights
- Dental Space in New Tampa for lease
- Tampa office plug n play ready to rent
- Lab
- Tampa Palms Dental build out
- surgery suite
- Sterilization
All Available Space(1)
Display Rental Rate as
- Space
- Size
- Term
- Rental Rate
- Space Use
- Build-Out
- Available
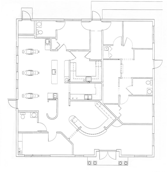
Location is what this offers. conveniently located right in the Heart of Tampa Palms right on Amberly Drive and Bruce b Downs. This office was custom built by the owner as a dental office and has been since it was built. offering 3 bays and another surgical room/ office. it has been all plumbed for medical. The suite offers a large waiting room with a reception area for record keeping check in and ck out. full handicap restroom and a Lab and a sanitization room. The current practicing dentist will be moving out to his new location the end of February and will be taking his equiptment, (chairs, xray, and other tools of the trade) This unit will be ready for you to move in your equiptment and set up by the 1st of March 2026.
- Lease rate does not include utilities, property expenses or building services
- Mostly Open Floor Plan Layout
- 1 Private Office
- Laboratory
- Private Restrooms
- Wheelchair Accessible
- Fully Built-Out as Dental Office Space
- Fits 7 - 13 People
- Space is in Excellent Condition
- Central Air Conditioning
- Open-Plan
- New Tampa Dental office
| Space | Size | Term | Rental Rate | Space Use | Build-Out | Available |
| 1st Floor | 1,600 SF | Negotiable | $32.69 CAD/SF/YR $2.72 CAD/SF/MO $52,307 CAD/YR $4,359 CAD/MO | Office/Medical | Full Build-Out | Now |
1st Floor
| Size |
| 1,600 SF |
| Term |
| Negotiable |
| Rental Rate |
| $32.69 CAD/SF/YR $2.72 CAD/SF/MO $52,307 CAD/YR $4,359 CAD/MO |
| Space Use |
| Office/Medical |
| Build-Out |
| Full Build-Out |
| Available |
| Now |
1st Floor
| Size | 1,600 SF |
| Term | Negotiable |
| Rental Rate | $32.69 CAD/SF/YR |
| Space Use | Office/Medical |
| Build-Out | Full Build-Out |
| Available | Now |
Location is what this offers. conveniently located right in the Heart of Tampa Palms right on Amberly Drive and Bruce b Downs. This office was custom built by the owner as a dental office and has been since it was built. offering 3 bays and another surgical room/ office. it has been all plumbed for medical. The suite offers a large waiting room with a reception area for record keeping check in and ck out. full handicap restroom and a Lab and a sanitization room. The current practicing dentist will be moving out to his new location the end of February and will be taking his equiptment, (chairs, xray, and other tools of the trade) This unit will be ready for you to move in your equiptment and set up by the 1st of March 2026.
- Lease rate does not include utilities, property expenses or building services
- Fully Built-Out as Dental Office Space
- Mostly Open Floor Plan Layout
- Fits 7 - 13 People
- 1 Private Office
- Space is in Excellent Condition
- Laboratory
- Central Air Conditioning
- Private Restrooms
- Open-Plan
- Wheelchair Accessible
- New Tampa Dental office
Property Overview
Location is what this offers. conveniently located right in the Heart of Tampa Palms right on Amberly Drive and Bruce b Downs. This office was custom built by the owner as a dental office and has been since it was built. offering 3 bays and another surgical room/ office. it has been all plumbed for medical. The suite offers a large waiting room with a reception area for record keeping check in and ck out. full handicap restroom and a Lab and a sanitization room. The current practicing dentist will be moving out to his new location the end of February and will be taking his equiptment, (chairs, xray, and other tools of the trade) This unit will be ready for you to move in your equiptment and set up by the 1st of March 2026.
Property Facts
Presented by
Dental/ Medical / Salon | 15283 Amberly Dr
Hmm, there seems to have been an error sending your message. Please try again.
Thanks! Your message was sent.



